Page précédente Table des matières Page suivante


Annexe 12
Evaluations économiques des élevages aquacoles susceptibles d'être développés en Tunisie

par

Ulf N. Wijkström

Remarques sur la méthode d'analyse économique

Pour chaque unité de production, il y a un tableau d'investissement et un tableau de bénéfices, ou de pertes. Les prix unitaires et les quantités utilisés sont indiqués dans ces tableaux. Les prix unitaires sont de récente date (1981/1982).

Le but des analyses a été d'obtenir une idée sur la probabilité qu'une certaine ‘unité de production’ puisse être rentable. L'analyse est assez sommaire et elle se base sur le résultat attendu d'une année type de production.

L'analyse reste sur l'hypothèse d'une inflation zéro, ou d'une inflation qui affectera tous les prix dans la même proportion.

Dans ce cas, l'inflation étant zéro, le taux d'intéret annuel utilise dans le calcul est de 10%. Pour des raisons de calcul, ce taux annuel d'intérêt est appliqué à raison de 5% sur la totalité de l'investissement ou bien de 10% sur la moitié de l'investissement.

1. Elevage de mulets en enclos

1.1 Installations

Un hectare d'enclos divisé en trois unités: chaque unité divisée en trois enclos. Total: 9 enclos par hectare.

1.2 Matériaux

Mètre linéaire de filets:

-une unité:(2 × 100) + (4 × 33) = 332 mètres
-par hectare:(3 × 332 = 996) ou 1 000 mètres

Filet:

• 1,5 mm; 12 mm de côté; prix 0,725 DT/m2

• 2,5 mètres de hauteur pour chaque mètre linéaire;

donc: 2,5 × 1 000 = 2 500 m2 par hectare

Piquets:

• chaque piquet: 4 m (dont un enfoncé dans le sable)

• 4 piquets sur 6 mètres linéaire d'enclos

donc (1 000 : 6 × 4) = 667 piquets

667 × 4 = 2 667 mètres linéaires de piquets

1.3 Opérations

Stockage à partir des alevins capturés. Alimentation avec granulés pour poulets (starter). Capture des poissons à poids marchand (entre 300 et 600 grammes; moyen 500 g) avec filets.

Alevins:

Densité d'élevage

La densité varie selon les taux de production envisagés. Pour une production de 2 000 kg/ha/an et un poids moyen de commercialisation de 500 grammes, il faut sortir d'un étang 4 000 poissons. Si la mortalité est 20% du moment de stockage au moment de capture, il faut mettre 5 000 alevins dans l'enclos (d'une superficie d'un hectare) c'est-à-dire un pour chaque deux mètres carrés. Pour une production de 5 000 kg/ha/an il faut en mettre 12 500. Cela suppose que, étant donné une alimentation supplémentaire, le mulet moyen peut grossir de 10 g jusqu'à 500 grammes en une année (environ 1,3 g d'accroissement/jour moyen).

Aliments

Aliments pour volaille: alternative haute

Aliments de volaille: alternative basse

Tableau 1.2 Bénéfices/pertes par an par “Unité de production”

Unité de production: enclos - mulet (1 ha)

Date de préparation: 10.5.1982

RubriqueUnitéDT par unitéNombre d'unitésAlternative basse
(Valeur DT)
Alternative haute
(Valeur DT)
Alevins1 00030         12,5      375 
 40         12,5        500
Alimentskg0,08012 188   975 
 0,10014 162 1,462
Manutention (enclos)      704   704
Divers% 10         205   267
Coûts: sous-total   2 2592 933
Dépréciation% 10         293   293
Intérêt% 5       296   296
Coûts:Total   2 8483 522
RevenusA kg1 2505 0006 2506 250
B kg1 4005 0007 0007 000
Bénéfices (avant salaires)A   3 4022 728
B   4 1523 478
Hommes - années de travailA       2,8    2,2
à DT 100/moisB       3,4    2,8

1.4 Résultat

Tableau 1.2: indique le résultat prévu pour un élevage de mulets dans une exploitation familiale de 1 hectare d'enclos.

Le revenu est basé sur un prix de vente à la production de DT 1,250/kg.

A ce prix, le bénéfice hors salaires est de l'ordre de DT 2 700 à 3 400/an. Cette marge permet d'embaucher 2 ouvriers à plein temps, ce qui est largement suffisant pour le travail occasionné par cette exploitation.

Tableau 1.1 Investissement par unité de production

Unité de production:enclos - mulet (1 ha)
Date de préparation:10.5.1982

RubriqueUnitéDT par unitéNombre d'unitésValeur totaleDurée de vie (années)Coeff. de dép. variation
(%)
Manutention DT/an
Filetsm20,7252 5001 8123604
Piquets (bois)m.1.0,1502 667   400425100
Main d'oeuvreh/mois   150     3   450   
Divers%     10   266   
Fonds des opérations   3 000   
Total   5 928  704

2. Elevages de mulets en étangs. Cas typique d'exploitation familiale.

2.1 Installations

La ferme familiale comprend 4 bassins d'un demi hectare chacun. La surface totale des étangs est de 2 hectares. Les étangs doivent être construits avec une terre argileuse (pour éviter des fuites par infiltration). Des sites favorables semblent se trouver sur les bords de la lagune de Hergla.

Les étangs seront alimentés en eau par une pompe. La pêche se fait par vidange des étangs. La vidange se fait par gravité.

La ferme a besoin d'un bâtiment pour abriter un stock d'aliments, les matériaux de pêche et pour le gardiennage.

2.2 Opérations

Le poisson principal de l'élevage sera le mulet. Les alevins des mulets seront pêchés dans des lagunes ou dans des embouchures de petites rivières. La pêche sera faite soit par les ouvriers de la ferme, soit par des équipes indépendantes qui vendront les alevins au fermier. L'analyse économique est faite selon cette dernière alternative.

L'élevage sera intensif. Les poissons seront nourris à partir des aliments pour poulets (starter) actuellement produits en Tunisie et mis en vente pour DT 0,066 le kg. Pour être prudent, l'analyse économique se base sur un prix de DT 0,080 le kg.

2.3 Investissement

L'investissement nécessaire est détaillé au tableau 2.1. L'investissement total est d'environ DT 35 000, dont les ⅔ environ représentent la construction des étangs.

2.4 Résultat

Le résultat économique de l'élevage est détaillé au tableau 2.2. Le résultat projeté est très positif.

Le résultat se base sur une production de 5 tonnes/ha/an et un prix de vente ex-ferme de DT 1 250/kg. Ces deux hypothèses paraissent pleinement réalistes.

Tableau 2.1 Investissement par “Unité de Production”

Unité de production:Elevage de mulets en étangs, cas typique d'exploitation familiale
Date de préparation:11.5.1982

RubriqueUnitéDT par unitéNombre d'unitésValeur totaleDurée de vie (années)Coeff. de dép. %Dépréciation DT
Construction d'étangsha10 600  221 200254    848
Pompe (50 1/s)    1  2 500  812,5  312
Bâtimentm25040  2 000205    100
Matériel de pêche        500  333,3  167
Fonds opérations     8 000   
Total   34 200  1 427

Tableau 2.2 Bénéfices/Pertes par cycle et par unité de production

Unité de production:Elevage de mulets en étang, cas typique d'exploitation familiale
Date de préparation:11.05.1982

RubriqueUnitéDT par unitéNombre d'unitésValeur
DT
Alevins 1 00040       251 000
Aliments kg0,08024 3751 950
Diesel pour pompe litre0,090     670     60
Ouvriers/gardes homme/an1 440       22 880
Divers %       10   589
CoûtsSous-total   6 479
Dépréciation    1 427
 Intérêt % an        51 710
CoûtsTotal   9 616
 Revenu kg1 25010 00012 500  
 Bénéfices    2 884

3. Elevage de loup en cages; exploitation familiale pour le marché de Tunis

3.1 Installations

L'unité familiale consiste en 10 cages, une petite embarcation et du matériel pour la manipulation des poissons. Les cages sont du type proposé par la mission pour le centre national de développement de l'aquaculture à Monastir. Chaque cage a un volume de 28 m3.

3.2 Opérations

L'analyse se base sur l'idée que l'entreprise pourra acheter des alevins de loup de 20 à 25 grammes d'une écloserie commerciale (privée ou gouvernementale) et que le prix sera de DT 300 pour mille alevins. Il est prévu que les alevins atteignent une taille de 330 grammes sur une période de 15 mois. L'entreprise aura besoin d'une surveillance constante et de main d'oeuvre pour la distribution des aliments. Les ventes se feront directement au marché de gros à Tunis.

3.3 Investissement

Les investissements sont reportés au tableau 3.1. Le calcul repose sur l'hypothèse que, dans l'élevage en cage, un des facteurs essentiels est la robustesse de la matière utilisée pour la construction des cages car la dépréciation ne représente qu'une infime partie du coût total.

3.4 Résultat

Le tableau “Bénéfices/Pertes” montre que même avec des hypothèses favorables à tout point de vue, une unité familiale d'élevage de loup en cage aura du mal à se défendre économiquement en vendant sa production sur le marché tunisien.

Tableau 3.1 Investissement par "Unité de Production

Unitéde production:élevage de loup en cage, unité familiale
Date de préparation:11.5.1982

RubriqueUnitéDT par unitéNombre d'unitésValeur totale DTDurée de vie (années)Dépréciation annuelle DT
Cage:      
- structure
cage22110  2 21010221
- filets et autres
cage  7810     780  2390
Embarcation 800  1     800  5160
Magasinm210424  2 50020125
Equipement, divers     1 000  3333
Fonds des opérations   10 000  
Total   17 890 1 229   

Tableau 3.2 Bénéfices/Pertes par cycle et par unité de production

Unité de production:élevage de loup en cage, unité familiale
Date de préparation:11.5.1982

RubriqueUnitéDT par unitéNombre d'unitésAlternative basse (valeur DT)Alternative haute (valeur DT)
Alevins 1 000   300       15  4 500  4 500
AlimentsAkg0,24312 190  2 960 
B 0,10012 190   1 219
Divers %        10     750     570
Coûts      sous-total     8 210  6 289
Dépréciation   1 22911,252  1 537  1 537
Intérêt       89411,252  1 120  1 120
Coûtstotal     10 867  8 946
RevenusAkg2 5004 20010 500 
 Bkg3 0004 200 12 600
BénéficesA         (367) 
(avant main d'oeuvre)      
 B      3 654

1 Chiffre annuel
2 Le cycle de production est de 15 mois

4. Elevage de mulets en étangs existants à Monastir

4.1 Installations

La mission a étudié trois hypothèses d'utilisation des bassins existants à Monastir. Suite aux discussions et évaluations des membres de la mission, l'alternative II a été retenue comme la meilleure.

L'aménagement proposé par l'hypothèse II répond au fait que la production des bassins peut être améliorée en assurant une circulation des eaux. Aussi en modifiant les entrées et les sorties d'eau existantes, il sera possible d'isoler les étangs et d'assurer ainsi une pêche plus facile et un meilleur contrôle des eaux.

L'aménagement proposé est indiqué sur la figure 16.1. Les travaux détaillés sont identifiés sur les figures 16.5 et 16.6 (voir annexe 16).

4.2 Opérations

Etant donné les caractéristiques des bassins, il est considéré que l'élevage des mulets en semi-intensif représente l'exploitation la mieux adaptée.

Les alevins du mulet seront acquis à travers la pêche. Ils seront nourris avec des granulés manufacturés pour les poulets (starter) actuellement disponibles en Tunisie.

La circulation des eaux serait assurée à partir des affluents des raceways, canalisés jusqu'aux bassins. En plus les étangs seront munis de circulateurs/oxygénateurs d'eau.

4.3 Investissement

Les coûts des travaux à réaliser ont été chiffrés par la mission au tableau 4.1. Les prix unitaires utilisés par la mission ont été fournis par le centre de réalisation du port de Monastir, Ministère de l'Equipement, Direction des services aériens et maritimes, Sous-Direction des Ports Maritimes.

Les estimations des coûts par la mission ont été contrôlés par la Direction de l'Exploitation des Ports de Pêches du Ministère de l'Agriculture. La direction a révisé en haut les prévisions. Les coûts résultants sont reportés au tableau 4.2. Le coût total pour les travaux augmenteront de DT 158 000 à DT 272 000.

La mission est d'accord sur la possibilité de réaliser les travaux pour DT 158 000 et propose que les prix unitaires soient étudiés plus profondément par le Ministère de l'Agriculture.

L'investissement total pour l'opération des étangs est donné au tableau 4.3.

4.4 Résultat

Le résultat économique attendu est donné au tableau 4.4. Le résultat est présenté sous deux hypothèses: une optimiste et l'autre pessimiste.

L'hypothése optimiste est basée sur les considérations suivantes:

L'hypothèse pessimiste est basée sur les considérations suivantes:

Les revenus prévus dans les deux cas sont basés sur une production de 10 tonnes par an par hectare.

Dans les deux cas, optimiste et pessimiste, les frais courants seront récupérés par la vente de la production à un prix de DT 1 250/kg. Il ne paraît pas invraissemblable que dans le cas optimiste tous les coûts incluant les dépréciations et les intérêts seront récupérés.

Tableau 4.1

Lagune de Monastir Aménagement des bassins existants Alternative II

Estimation du coûtUnitésPrix unitaire1
DT
Prix total
DT
1)Construction des digues et renforcement des digues existantes avec des terres apportées et compactées contenant un minimum de 30% d'argile5 470 m34  21 880
2)Reconstruction des vannes des bassins204 190  83 800
3)Protection des digues3 070 m22,4    7 368
4)Moine11 820    1 820
5)Busage12 520    2 520
Sous-total117 388
6)Ingénierie (5%)      5 872
Sous-total génie civil123 260
7)Pompes diesel mobiles
(200 1/sec. Hauteur de relevage: 3,5 m)
110 000  10 000
Coût total de base133 640
8)Divers et imprévus    24 640
Coût total avec divers et imprévus157 900
arrondi à158 000

1 Source: Centre de réalisation du Port de Monastir,
Ministère de l'Equipement
Direction des Services aériens et maritimes
Sous-Direction des Ports Maritimes

Tableau 4.2

Lagune de Monastir Aménagement des bassins existants Alternative II

Estimation du coûtUnitésPrix unitaire1
DT
Prix total
DT
1)Construction des digues et renforcement des digues existantes avec des terres apportées et compactées contenant un minimum de 30% d'argile5 470 m3         6  32 820
2)Reconstruction des vannes des bassins20  6 285125 700
3)Protection des digues3 070 m2            3.6  11 052
4)Moine1  2 730    2 730
5)Busage1  3 780    3 780
Sous-total176 082
6)Ingénierie (5%)      8 804
 Sous-total génie civil184 886
7)Pompes diesel mobiles
(200 1/sec.; hauteur de relevage: 3,5 m)
   
110 000  10 000
 Coût total de base194 886
8)Installation des chantiers    40 000
9)Divers et imprévus    36 977
 Coût total avec divers et imprévus271 863
 arrondi à272 000

1 Source: Direction de l'Exploitation des Ports de Pêches
Ministère de l'Agriculture
Tunis

Tableau 4.3 Investissement par “Unité de Production”

Unité de production:Monastir: mulet - vieux étangs Alternative II
Date de préparation:4.5.1982

RubriqueUnitéDT par unitéNombre d'unitésValeur totaleDurée de vie (années)Coeff. de dépréciation
%
Dépréciation
DT
Développement étangs
(voir annexe 16)
   145 00025  45 800
Diesel, portable pompe (200 1/s) 10 000  1  10 000  5202 000
Circulateur d'eau      50010    5 000  5201 000
Fonds des opérations     30 000   
Divers       5 000  6201 000
Total   195 000  9 800

Tableau 4.4 Bénéfices/Pertes par cycle et par unité de production

Unité de production:Monastir: mulet - vieux étangs: (10 t/ha/an) - Alternative II
Date de préparation:4.5.1982

RubriqueUnitéDT par unitéNombre d'unitésCalcul optimiste
Valeur DT
Calcul Pessimiste
Valeur DT
Alevins     
 - 1 0003090  2 700 
 - 1 0004090   3 600
Aliments     
 - Qn 2,5 kg0,080  87 750  7 020 
 - Qn 3,0 kg0,100105 300 10 530
Personnel (ONP)     
 - Ing. principalhomme/année5 1701/10     417     417
 - Adj. techniquehomme/année2 820¼       705     705
 - ouvriers/gardienshomme/année1 4004  5 760  5 760
Electricité     
 - kWh0,021      900 
 kWh0,030    1 296
Divers% 10  1 750  2 231
CoûtsSous-total   19 25224 539
Dépréciation     9 80014 100
Intérêt%   5  9 75016 100
CoûtsTotal   38 80254 739
Revenuskg1 25036 00045 00045 000
Bénéfices (Pertes)     6 198 (9 739)

5. Elevage de mulets dans des raceways alimentés à partir d'un forage

5.1 Installations

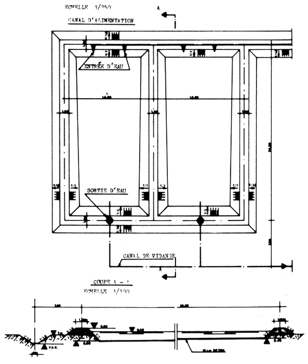
L'unité expérimentale proposée consiste en deux raceways chacun d'une superficie de 300 m2 ayant une profondeur moyenne d'eau de 1,1 mètre. Les digues et le fond seront couverts d'une lame de béton de 10 centimètres de profondeur. Les structures proposées sont identifiées sur la figure 5.1.

5.2 Opérations

Les mulets seront stockés dans les raceways à une densité de 30 alevins de 7 grammes par m3. La croissance, avec une alimentation de granulés pour volaille, devrait être de l'ordre de 1,5 g par jour. La taille commerciale d'environ 400 grammes sera donc atteinte par la majorité après une durée d'environ neuf mois. L'analyse est basée sur l'hypothèse d'un taux de conversion de la nourriture de 3. Le besoin de main d'oeuvre est estimé à un ouvrier de manière permanente et à une main d'oeuvre sur base temporaire pour la récolte, de 3 hommes pendant 8 jours.

5.3 Investissement

L'investissement dans les bassins est chiffré à 31 000 DT (voir tableau 5.1). Ce total comprend l'achat du terrain qui s'élève à 12 500 DT.

5.4 Résultat

Le tableau 5.3 “Bénéfices/Pertes” montre que cet élevage pourrait devenir économiquement intéressant. Le facteur décisif reste l'investissement.

Dans les comptes de l'unité pilote, les frais courants sont de l'ordre de 0,650 à 0,750 DT par kg. Ces frais varient peu avec la taille de l'opération. La clé de la rentabilité réside donc dans les frais fixes liés à des investissements. S'ils peuvent etre maintenus au-dessous d'un certain niveau (disons aux alentours de 0,300 DT par kg produit) l'élevage devient alors économiquement valable.

PLAN - TYPE PISCICULTURE INTENSIVE DANS LES OASIS

FIGURE 12.5.1

FIGURE 12.5.1

Tableau 5.1 Type de pisciculture intensive dans les oasis

Unité de production: 2 raceways de 300 m2 chacun

Profondeur moyenne: 1,10 m. Echange d'eau: 2 fois par jour

Production prévue: 10 kg/m3

Estimation du coût

 UnitéPrix unitaire
DT
Prix total
DT
1.Terrain   
1.1Achat du terrain5 000 m2      2,512 500
2.Terrassements (bassins et canaux)   
2.1Décapage2 500 m2      0,3     750
2.2Creusement des bassins   360 m3      1,5     540
2.3Creusement des canaux   150 m3      1,5     225
2.4Béton protection des bassins      86 m3100  8 600
3.Hydraulique   
3.1Prise d'eauForfait      200
3.2Canal d'alimentation
(débit 20 1/s)
50 ml  20  1 000
3.3Tubes (diamètre 10 cm) alimentation des bassins4  15       60
3.4Sortie des bassins (tuyaux diamètre 20 cm)2  50     100
3.5Montage       150
 Total partiel24 125
4.Ingénierie (5%)    1 275
 Coût total de base25 400
5.Divers et imprévus    5 600
Coût total avec divers et imprévus31 000

Tableau 5.2 Investissement par unité de production

Unité de production: Raceways (660 m3) à partir de forages

Date de préparation: 30.11.1982

RubriqueUnitéDT unitéNombre d'unitésValeur totaleDurée de vie (années)Coeff. de dépréciation %Dépréciation annuelle DTManutention DT/an
%DT
Raceway
(2 bassins)
Chacun14 700114 700156,6  9701147
Terrainm22,55 00012 500502  250--
Fonds de roulement     5 300     
Total   32 500  1 220 147

Tableau 5.3 Bénéfices/Pertes par cycle et par unité de production

Unité de production:Monoculture des mulets Raceways (660 m3) à partir de forages
Date de préparation:30.11.1982

RubriqueUnitéDT par unitéNombre d'unitésAlternative basse (Valeur DT)
Main d'oeuvrehomme/an1 4401,101 580
Alevins1 000     40   20   800
Granulés pour volailles
(Qn 3)
kg0,08019 8001 580
Divers%        10   400
CoûtsSous-total   4 360
Dépréciationannée1 220     0,75   915
Intérêtannée5%     0,751 220
CoûtsTotal   6 495
Revenuskg1 250   6 6008 250
Bénéfices   1 755


Page précédente Début de page Page suivante