The items of processing and packaging equipment, the area required to accommodate them and for storage, together with the costs involved, for the five capacities of milk plant chosen for this study can now be considered. It should be emphasized that this analysis does not include milk reception, raw milk storage and cooling, recombination or other forms of pre-treatment.
The key item of equipment is the packaging machinery, the capacity of which is derived directly from the required daily throughput. The capacity of all other items of equipment (the processing equipment being appropriate to the type of milk to be produced) must be related to this. A more detailed specification of these items is not necessary for the purpose of this analysis.
Different makes of equipment for the same purpose inevitably show differences in capacity, dimensions, cost and other details. It may well be that one make is more suitable than another at one particular plant throughput while a different make has the advantage at some other throughput. It has been necessary, therefore, to make an arbitrary selection to achieve consistency in data comparisons. This may have affected the price or area requirement in some instances but only within the limits of error and in neither case would this affect the general implications or conclusions of this study. The assessments of machinery costs have been based on information available at mid-1977; applying currency exchange values valid at that time. The costs for auxiliary equipment have been approximated as a varying percentage of the costs of the basic machinery, and are all based on prices ex European ports.
In selecting the basic machines it is necessary to consider whether the required capacity should be covered by one machine or by two of a smaller size. One machine of the full capacity required is cheaper in all respects but two of half capacity each is a much safer solution, particularly where spare parts replacement and general maintenance may create problems. Wherever feasible two half-size machines should be preferred to one full-size. The specifications are shown in Tables 5 and 6.
The indicative value of the cost component related to machinery and equipment has been calculated separately for machines owned by the plant and those obtained on lease because some makes of packaging equipment are available only on the latter basis.
The cost component, Z, has been computed for both owned and rented machines by the following equation

where C = value of owned (C1) or annual expenses on rental (C2) for rented machines in US$
a = throughput in thousand litres of liquid milk per day
D = ‘depreciation’ (12.5% of C, for owned machines and 100% of C2 for those on lease)
G = rate of annual maintenance costs (10%)
E = rate of annual expenses on insurance and taxes (2.5%)
The resulting magnitudes are:
- for owned machines Z1 = about 0.001 ![]()
- for machines on lease Z2 = ![]()
It follows that Z = Z1 + Z2
Having estimated the areas required for machinery rooms and stores the layouts have been designed to conform with the internationally agreed structure modules of 12 m span and 6 m centres for structural beams. The application of these module dimensions gives a better comparability of different sizes and types of buildings but this may leave more space than is required for a particular purpose, particularly in plants with smaller throughputs. Although milk packaging and storage do not represent all the milk plant operations the layouts have been prepared as regular rectangles in order to make the sequence of movements more clear to the reader. In assessing the storage area requirements, use was made of the diagrams in Figs 5 to 8 and the related comments. To arrive at comparable cost assessments of buildings the term ‘reduced standard area units’ has been introduced. This is intended to compensate for the different costs of construction in different areas of the milk plant. For instance, constructing unit area of a cold store is more expensive than unit area of processing or packaging rooms since thermal insulation is involved. Non-refrigerated stores, docks, and packaging material stores are cheaper than processing areas. Coefficients have therefore been applied to arrive at proper cost comparisons. These coefficients, the actual areas required and the ‘reduced’ areas are given in Tables 7 and 8. Selected layouts shown in Figs 16–33.
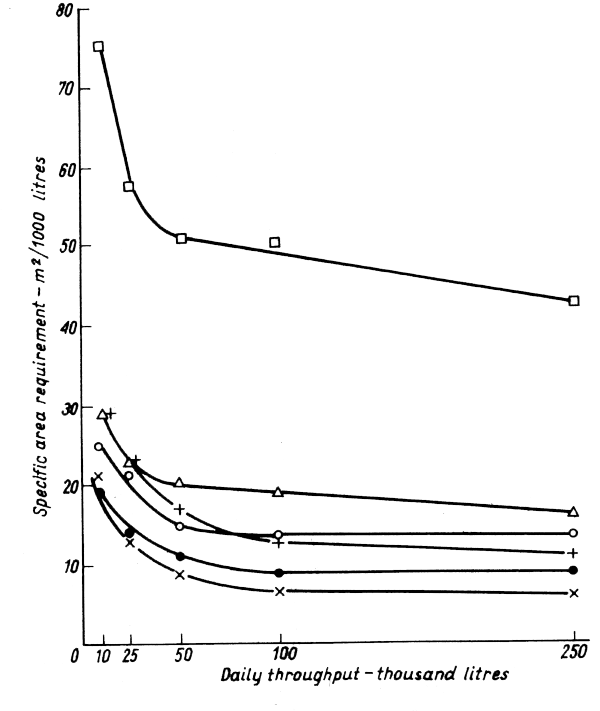
The specific costs given in Tables 5 and 6 are shown graphically in Fig. 34. The specific actual and reduced areas given in Tables 7 and 8 are plotted in Figs 35 and 36.
Table 5 Number of items of basic equipment for processing and packaging milk in bottles and cans
| GLASS BOTTLES - 1/2 LITRE | MILK CANS - 40 LITRES | ||||||||||||||
|---|---|---|---|---|---|---|---|---|---|---|---|---|---|---|---|
| Pasteurized | Sterilized | Pasteurized | |||||||||||||
| Plant throughput, thousand 1/day | 10* | 25* | 50 | 100 | 250 | 10 | 25 | 50 | 100 | 250 | 10 | 25 | 50 | 100 | 250 |
| Bottle washer 2000 b/h | 1 | ||||||||||||||
| 6000 " | 1 | 2 | 1 | 1 | |||||||||||
| 12000 " | 2 | 1 | 2 | ||||||||||||
| 18000 " | 3 | 3 | |||||||||||||
| Bottle filler** 2000/1200 " | 1 | 1 | |||||||||||||
| 7500/ 5000 " | 1 | 2 | 4 | 1 | 1 | 2 | |||||||||
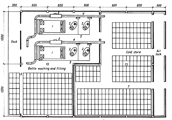
| 13000/ 9000 " | 6 | ||||||||||||||
| 18000/12000 " | 3 | 2 | |||||||||||||
| Crate washer | 1 | 2 | 2 | 3 | 1 | 1 | 1 | 2 | 3 | ||||||
| Bottle conveyor | 1 | 2 | 4 | 3 | 1 | 1 | 2 | 2 | 6 | ||||||
| Crate conveyor | 1 | 2 | 2 | 3 | 1 | 1 | 1 | 2 | 3 | ||||||
| Decrater/Recrater *** | 3 | 3 | |||||||||||||
| Unstacker/Restacker | 3 | 3 | |||||||||||||
| Pasteurizer and homogenizer | 1 | 1 | 1 | 1 | 1 | ||||||||||
| Reheater and tank | 1 | 1 | 1 | 1 | 1 | ||||||||||
| Sterilizer | 1 | 1 | 1 | 1 | 1 | ||||||||||
| Roller conveyor -m | 15 | 33 | |||||||||||||
| Mechanical churn conveyor -m | 120 | 200 | 400 | ||||||||||||
| Churn washer 200–400 cans/h | 1 | 1 | |||||||||||||
| 600 " | 1 | 2 | |||||||||||||
| 900 " | 3 | ||||||||||||||
| Automatic churn filler 6000 1/h | 1 | 2 | |||||||||||||
| 24000 " | 1 | 2 | 5 | ||||||||||||
| Auxiliary equipment (lot)**** | 1 | 1 | 1 | 1 | 1 | 1 | 1 | 1 | 1 | 1 | 1 | 1 | 1 | 1 | 1 |
| Estimated cost (FOB European port) of equipment, expressed in thousand US$ equivalent. Exchange rates and prices valid at mid-1977. | 90 | 200 | 380 | 650 | 1400 | 220 | 400 | 780 | 1150 | 2100 | 25 | 45 | 85 | 170 | 320 |
| Cost components related to inputs on machinery US$/1000 1 | 9.0 | 8.0 | 7.6 | 6.5 | 5.6 | 22.0 | 16.0 | 15.6 | 11.5 | 8.4 | 2.5 | 1.8 | 1.7 | 1.7 | 1.3 |
* Alternatives are shown in layouts Figs 16 and 17
** First figure refers to pasteurized milk, second to sterilized
*** suitable to match output of filling machines
**** not including bottles, crates, cans, etc.
Table 6 Number of items of basic equipment for processing and packaging milk in single-service containers
| CARTONS - 1/2 LITRE | PLASTIC SACHETS - 1/2 LITRE | ||||||||||||||
|---|---|---|---|---|---|---|---|---|---|---|---|---|---|---|---|
| Pasteurized | UHT-aseptic | Pasteurized | |||||||||||||
| in returnable crates | in non-returnable wraps | in returnable crates | |||||||||||||
| Plant throughput, thousand 1/day | 10 | 25 | 50 | 100 | 250 | 10 | 25 | 50 | 100 | 250 | 10 | 25 | 50 | 100 | 250 |
| Filling machine 2500 packs/h | 1 | 2 | |||||||||||||
| 3600 " | 1 | 2 | 3 | 6 | 14 | 1 | 2 | 3 | 6 | 14 | |||||
| 5000 " | 2 | 4 | 10 | ||||||||||||
| Crate washer | 1 | 1 | 2 | 4 | 1 | 1 | 2 | 2 | |||||||
| Crate conveyor | 1 | 1 | 2 | 4 | 1 | 1 | 1 | 2 | 2 | ||||||
| Carton/ sachet conveyor | 1 | 2 | 3 | 6 | 14 | 1 | 1 | 2 | 4 | 10 | |||||
| Shrink wrapper * | 1 | 2 | 3 | 6 | 14 | ||||||||||
| Unstacker | 2 | 2 | |||||||||||||
| Stacker/Restacker | 2 | 2 | |||||||||||||
| Pasteurizer and homogenizer | 1 | 1 | 1 | 1 | 1 | ||||||||||
| UHT- treatment unit | 1 | 1 | 1 | 1 | 1 | ||||||||||
| Auxiliary equipment (lot) ** | 1 | 1 | 1 | 1 | 1 | 1 | 1 | 1 | 1 | 1 | 1 | 1 | 1 | 1 | 1 |
| Estimated cost (FOB European port) of equipment, expressed in thousand US$ equivalent. Exchange rates and prices valid at mid-1977. | 12 | 24 | 48 | 96 | 240 | 130 | 200 | 400 | 500 | 700 | 40 | 90 | 140 | 280 | 700 |
| Annual expenses on rental of machines on lease | 43 | 86 | 122 | 258 | 652 | 205 | 385 | 590 | 1150 | 2700 | |||||
| Cost components related to inputs on machinery US$/1000 1 | 16.2 | 13.0 | 10.0 | 10.0 | 9.4 | 85.0 | 62.0 | 50.0 | 45.0 | 41.0 | 4.0 | 3.6 | 2.8 | 2.8 | 2.8 |
* Suitable to accommodate output of filling machines
** not including packaging material and crates.
Table 7 Areas required for processing, packaging, storing and handling milk in returnable containers
| NOTE: E = A F = 0.8 B H = 0.5 D G = 1.3 C for cold stores G = 0.8 C for non-refrigerated stores | GLASS BOTTLES - 1/2 LITRE | CANS - 40 LITRES | |||||||||||||
|---|---|---|---|---|---|---|---|---|---|---|---|---|---|---|---|
| Pasteurized | Sterilized | Pasteurized | |||||||||||||
| Plant throughput 000 1/day | 10 | 25 | 50 | 100 | 250 | 10 | 25 | 50 | 100 | 250 | 10 | 25 | 50 | 100 | 250 |
| ACTUAL REQUIREMENTS - m2 | |||||||||||||||
| A Machinery rooms | 48 | 72 | 144 | 216 | 864 | 134 | 216 | 288 | 432 | 1152 | 36 | 72 | 108 | 144 | 288 |
| B Empties reception & storage | 24 | 72 | 96 | 180 | 450 | 10 | 72 | 144 | 288 | 720 | 36 | 72 | 108 | 216 | 512 |
| C Product storage and dispatch | 90 | 180 | 270 | 432 | 864 | 72 | 144 | 216 | 432 | 1080 | 72 | 72 | 72 | 72 | 216 |
| D Docks | 18 | 36 | 54 | 72 | 144 | 36 | 72 | 108 | 216 | 540 | 72 | 108 | 144 | 216 | 432 |
| Total required area m2 | 190 | 360 | 564 | 900 | 2322 | 252 | 504 | 756 | 1418 | 3492 | 216 | 324 | 432 | 648 | 1448 |
| Specific area requirement m2/1000 1 | 19.0 | 14.4 | 11.3 | 9.0 | 9.3 | 25.2 | 21.6 | 15.1 | 14.2 | 14.0 | 21.6 | 13.0 | 8.6 | 6.5 | 5.7 |
| REQUIREMENTS REDUCED TO STANDARD AREA UNITS -m2 | |||||||||||||||
| E Machinery rooms | 48 | 72 | 144 | 216 | 864 | 134 | 216 | 288 | 432 | 1152 | 36 | 72 | 108 | 144 | 288 |
| F Empties reception & storing | 19 | 58 | 77 | 144 | 360 | 8 | 58 | 116 | 232 | 576 | 29 | 58 | 87 | 174 | 348 |
| G Product storage and dispatch | 117 | 234 | 351 | 562 | 1123 | 58 | 116 | 172 | 344 | 864 | 94 | 94 | 94 | 94 | 282 |
| H Docks | 9 | 18 | 27 | 36 | 72 | 18 | 36 | 54 | 108 | 270 | 36 | 54 | 72 | 108 | 216 |
| Total reduced area requirement m2 | 193 | 382 | 599 | 958 | 2419 | 218 | 426 | 630 | 1160 | 2862 | 195 | 278 | 361 | 520 | 1134 |
| Specific reduced area requirement m2/1000 1 | 19.3 | 15.3 | 12.0 | 9.6 | 9.7 | 21.8 | 17.0 | 12.6 | 11.6 | 11.3 | 19.5 | 11.1 | 7.2 | 5.2 | 4.5 |
Table 8 Areas required for processing, packaging, storing and handling milk in single-service containers
| NOTE: F = A C = 0.8 B H = 1.3 C for cold stores H = 0.8 C for non-refrigerated stores J = 0.5 D K = 0.5 E | CARTONS - 1/2 LITRE | PLASTIC SACHETS - 1/2 LITRE | |||||||||||||
|---|---|---|---|---|---|---|---|---|---|---|---|---|---|---|---|
| Pasteurized in returnable crates | UHT-aseptic in one-way wraps | Pasteursized in returnable crates | |||||||||||||
| Plant throughput 000 1/day | 10 | 25 | 50 | 100 | 250 | 10 | 25 | 50 | 100 | 250 | 10 | 25 | 50 | 100 | 250 |
| ACTUAL REQUIREMENTS - m2 | |||||||||||||||
| A Machinery rooms | 36 | 72 | 144 | 324 | 815 | 180 | 360 | 504 | 720 | 1800 | 36 | 72 | 72 | 144 | 432 |
| B Empties reception & storing | 36 | 72 | 144 | 324 | 648 | - | - | - | - | - | 36 | 72 | 216 | 216 | 432 |
| C Product storing and dispatch | 72 | 144 | 270 | 540 | 1250 | 360 | 720 | 1440 | 2800 | 7000 | 72 | 144 | 216 | 540 | 1008 |
| D Storing of packaging material | 108 | 216 | 360 | 648 | 1296 | 180 | 288 | 504 | 864 | 2232 | 108 | 216 | 216 | 288 | 864 |
| E Docks | 36 | 72 | 90 | 108 | 216 | 36 | 72 | 108 | 252 | 504 | 36 | 72 | 144 | 108 | 144 |
| Total required area m2 | 288 | 576 | 1008 | 1944 | 4225 | 756 | 1440 | 2556 | 5036 | 10536 | 288 | 576 | 864 | 1296 | 2880 |
| Specific area requirement m2/1000.1 | 28.2 | 23.0 | 20.2 | 19.4 | 16.9 | 75.6 | 57.6 | 51.1 | 50.4 | 42.1 | 28.2 | 23.0 | 17.3 | 13.0 | 11.5 |
| REQUIREMENTS REDUCED TO STANDARD AREA UNITS - m2 | |||||||||||||||
| F Machinery rooms | 36 | 72 | 144 | 324 | 815 | 180 | 360 | 504 | 720 | 1800 | 36 | 72 | 72 | 144 | 432 |
| G Empties reception & storing | 29 | 58 | 117 | 258 | 518 | - | - | - | - | - | 29 | 58 | 172 | 172 | 344 |
| H Product storing and dispatch | 94 | 188 | 351 | 702 | 1625 | 290 | 580 | 1160 | 2250 | 5600 | 94 | 188 | 282 | 702 | 1311 |
| J Storing of packaging material | 54 | 108 | 180 | 324 | 648 | 90 | 144 | 252 | 432 | 1116 | 54 | 108 | 108 | 144 | 432 |
| K Docks | 18 | 36 | 45 | 54 | 108 | 18 | 36 | 54 | 126 | 252 | 18 | 36 | 72 | 54 | 72 |
| Total reduced area requirement m2 | 231 | 462 | 837 | 1162 | 3714 | 578 | 1120 | 1970 | 3528 | 8768 | 231 | 462 | 696 | 1216 | 2591 |
| Specific reduced area requirement m2/1000 1 | 23.1 | 18.5 | 16.7 | 16.6 | 14.9 | 57.8 | 44.8 | 39.4 | 35.3 | 35.1 | 23.1 | 18.5 | 14.0 | 12.2 | 10.4 |

Fig. 16 Layouts for packaging and storage 10 000 litres/day of pasteurized
milk in B 1/2 litre glass bottles - alternatives A and B
1. Bottle washer; 2. Bottle filler; 3. Bottle conveyor; 4. Empty
bottles in crates; 5. Filled bottles in crates

Fig. 17 Layouts for packaging and storage 25 000 litres/day of pasteurized
milk in 1/2 litres glass bottles - alternatives A and B
1. Bottle washer; 2. Bottle filler; 3. Crate washer; 4. Crate conveyor;
5. Bottle conveyor 6. Empty bottles in crates; 7. Filled bottles in
crates

Fig. 18 Layout for packaging and storage 50 000 litres/day of pasteurized milk in
1/2 litre glass bottles
1. Bottle washer; 2. Bottle filler; 3. Crate washer; 4. Crate conveyor;
5. Bottle conveyor; 6. Empty bottles in crates; 7. Filled bottles in crates

Fig. 19 Layout for packaging and storage 100 000 litres/day of pasteurized milk in
1/2 litres glass bottles
1. Bottle washer; 2. Bottle filler; 3. Crate washer; 4. Crate conveyor;
5. Bottle conveyor; 6. Empty bottles in crates; 7. Filled bottles in crates

Fig. 20 Typical layout for a bottling line of 20 000 bottles per hour for pasteurized milk
1. Crate unstacker; 2. Decrater; 3. Bottle washer; 4. Crate washer; 5. Sighting light;
6. Filler-capper; 7. Recrater; 8. Crate stacker

Fig. 21 Layout for packaging, sterilization and storage 10 000 litres/day of sterilized
milk in 1/2 litre glass bottles
1. Bottle washer; 2. Bottle filler; 3. Crate washer; 4. Bottle conveyor;
5. Crate conveyor; 6. Pre-sterilization; 7. Sterilizer; 8. Empty bottles in
crates; 9. Filled bottles in crates

Fig. 22 Layout for packaging, sterilization and storage 25 000 litres/day of sterilized
milk in 1/2 litre glass bottles
1. Bottle washer; 2. Bottle filler; 3. Crate washer; 4. Bottle conveyor;
5. Crate conveyor; 6. Pre-sterilization; 7. Sterilizer; 8. Empty bottles in
crates; 9. Filled bottles in crates

Fig. 23 Layouts for packaging and storage 10 000 litres/day (A) and 25 000 litres/day (B)
of pasteurized milk in 40 litre cans
1. Roller conveyor; 2. Can washer; 3. Can filler; 4. Trolleys with washed
empty cans

Fig. 24 Layout for packaging and storage 50 000 litres/day of pasteurized milk in 40 litre
cans
1. Mechanical can conveyor; 2. Can washer; 3. Can filler; 4. Trolleys with washed
empty cans

Fig. 25 Layout for packaging and storage 100 000 litres/day of pasteurized milk in
40 litre cans
1. Mechanical can conveyor; 2. Can washer; 3. Can filler; 4. Trolleys with
washed empty cans

Fig. 26 Layout for packaging and storage 10 000 litres/day of pasteurized milk in 1/2 litre tetrahedral cartons in returnable crates

Fig. 27 Layout for packaging and storage 25 000 litres/day
of pasteurized milk in 1/2 litre tetrahedral cartons
in returnable crates
1. Packaging machines; 2. Crate washer; 3. Crate conveyor

Fig. 28 Layout for packaging and storage 50 000 litres/day
of pasteurized milk in 1/2 litre tetrahedral cartons
in returnable crates
1. Packaging machines; 2. Crates washer; 3. Crate conveyor

Fig. 29 Layout for packaging and storage 100 000 litre/day of pasteurized milk in
1/2 litre tetrahedral cartons in returnable crates
1. Packaging machines; 2. Crates washer; 3. Crate conveyor

Fig. 30 Example of layout for machinery room for aseptic packaging 100 000 litres/day
of UHT milk in 1/2 litre single-service rectangular cartons in
non-returnable wraps
1. Packaging machines; 2. Package conveyor; 3. Collating and packing on trays;
4. Conveyor; 5. Shrink wrapping

Fig. 31 Layout for packaging and storage 50 000 litres/day of pasteurized
milk in 1/2 litre plastic sachets in returnable crates
1. Crate conveyor; 2. Crate washer; 3. Crate filling; 4. Packaging
machine

Fig. 32 Layout for packaging and storage 100 000 litres/day of pasteurized
milk in 1/2 litre plastic sachets in returnable crates
1. Crate conveyor; 2. Crate washer; 3. Crate filling; 4. Packaging
machine

Fig. 33 Layout for packaging and storage 250 000 litres/day of pasteurized milk
in 1/2 litre plastic sachets in returnable crates
1. Crate conveyor; 2. Unstacker; 3. Crate washer; 4. Crate filling;
5. Packaging machines; 6. Control panel; 7. Restacker

Fig. 34 Estimates of cost components related to inputs on machinery

Fig. 35 Specific area requirements

Fig. 36 Specific reduced area requirements