Farm Improvements:
During the first year of operations (1987) a few old ponds were renovated and converted into breeding and rearing ponds in order to produce sufficient fish seed for the farm's production ponds as well as to supply to private farmers. New inlets were constructed for ponds B5, B6, B7, R8, R13, R14. New monks were constructed in ponds R12, R13, and R14 (Fig. 1).
The duck nursery was remodelled and extended for adopting better management practices and for security reasons.
Other new facilities constructed and commissioned in farm complex are:
Pig sty housing 20 animals,
Two duck houses, each 40 m2,
One duck house, 15 m2,
Building to house duck egg incubators,
Three running water fry preparation tanks, each 3.5 m2
Security lights, and
Improvement of flood protection measures.
The distribution and denomination of ponds were revised as shown in Fig. 1 and summarised below:
| System | Pond No | Area (ares) | (Stocking) (no/yr) | ||
| O. andersonii | B5,6,7 | 71 | 1 400F | 280M | |
| fry | |||||
| fingerlings | R4,8,12,14,15 | 105 | 960 000 | ||
| O. andersonii & | P1 to P16 | 400 | 146 000 | ||
| C. carpio | 14 000 | ||||
Breeding and fry production:
The breeding ponds (B5,6,7) were restocked by the beginning of October 1987. The stock of O. andersonii introduced in Mwekera Fish Farm from Chilanga Farm during 1983–87 had got mixed up with old strains existing in some ponds and therefore it was decided to stock pond P8 with pure O. andersonii from Lusaka. The new transfer consisted of 588 females (40.4 kg) and 220 males (23 kg).
The number of fry and figerlings harvested from the breeding ponds between December 1987 and March 1988 are indicated in next page:
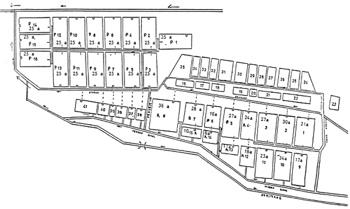
| MWEKERA FISH FARM | 57 PONDS 9.5 HA |
| LAYOUT |

| Ponds utilized by FAO Project | |
| Area | |
| B= Breeding | 71 ares |
| R= Rearing | 105 ares |
| P= Production | 400 ares |
| Total | 576 ares |
| Pond No. | Area (ares) | No. females | No. fry/fingerlings |
| P8 | 25 | 588 | 30 840 |
| B5 | 27 | 750 | 45 149 |
| B6 | 16 | 406 | 17 074 |
| B7 | 28 | 758 | 39 492 |
| Total : | 2 502 | 132 555 |
The fry production rate was not up to expectations and this was found to be due to operational problems. Action was therefore taken to improve the conditions during subsequent breeding seasons.
The fish breeding programme was a failure in 1988–89 season due to unavoidable disasters. Inlet screens were constanly stolen or torn by otters, and all pond stocks got mixed with unwanted species of fish. Brood stock survival was only 30 to 55% after seven months, although no dead fish were ever noticed. One pond was emptied accidentally. The bi-weekly seining programme was not carried out regularly and no valid fry production data were made available by the concerned staff. According to available data, only 80 900 fry were produced during the season. This resulted in inadequate fry for stocking all production ponds in the farm and also for supply to private farmers.
During the 1989–90 breeding season priority was therefore given to fish seed production and 494 000 fry were harvested as indicated below:
| Pond No | Area (ares) | No. females | No. fry/fingerlings | No. fry/female |
| R4 | 26 | 670 | 205 500 | 307 |
| B12 | 18 | 490 | 110 650 | 226 |
| B13 | 12 | 310 | 41 810 | 135 |
| B14 | 8 | 200 | 24 600 | 123 |
| B15 | 12 | 300 | 111 850 | 373 |
| Total | 494 410 |
Limited trials on natural spawning of C. carpio were undertaken in order to maintain the carp population in the farm. During both 1988–89 and 1989–90 seasons mirror carp and scaled carp reproduced in ponds using natural spawning techniques. For this purpose, thirty to forty fish, each over 3 kg, were stocked in 2 000 or 2 600 m2 ponds. Regular manuring was done and the ponds were left undisturbed throughout the rainy season and for a total period of about 6 months. Successful spawning was observed during both seasons and each year app. 500 fingerlings were used for sample retention.
Fingerlings production: During the 1989–90 season, O. andersonii fry were stocked in rearing ponds at densities between 25 and 50 per m2. Five trials have been completed and the fry survival rate ranged between 25 and 62%, with an average of 35.5%. The best survival rates of 57 and 62% were obtained in ponds initially treated with chicken manure and spoiled maize at 6 t/ha, application of a 20% phosphate fertilizer at 100 kg/ha at the time of filling water and daily feeding with chicken manure ( 50 kg/ha) and spoiled maize (100 kg/ha). Fingerlings with 5 g average weight were harvested after 6 weeks.
Market size fish production:
The smooth operation of the production ponds was handicapped by thefts and changes in supservisory staff. Verification of pond stocks in 1988 showed considerable discrepencies. Hence all ponds were drained and restocked with correct numbers and species. Three trials using S. robustus as a predator were completed. The results are summarised in Table 1.
The results of trials conducted using Integrated fish farming systems and conventional feeding systems are summarised in Tables 2 and 3. Earlier trials were vitiated by poor survivals indicating theft. Due to lack of sufficient fry in 1989, some of the production ponds were not adequately stocked. With the successful breeding season in 1989–90 and through closer supervision of stocking, feeding and day to day management, the fish production rates increased to appreciable levels. The trials concluded in 1990 indicated standing biomass of over 4 t/ha, with survival rate of over 90%.
Under optimum temperature and feeding systems mentioned in Figure 3, a mixed sex population of O. andersonii was observed to grow at the rate of 1.05 g/day.
In the case of C. carpio a mean growth rate of 5.1g/day was recorded, at stocking densities of 160 to 2 500/ha. Best growth with mean of 8.4g/day, was observed at stocking density of 500/ha and forming over 20% of the harvested biomass.
In the integrated fish farming trials, the best results were recorded in two experiments having 600 Peking ducks/ha and mixed culture of O. andersonii and C. carpio. The fish production rates obtained were 8.3 and 6.7 t/ha/yr.
The Peking duck breeding and rearing programme at Mwekera Fish Farm has not yet been fully successful due a combination of reasons. It has been unfortunate that some of the staff members assigned to the farm have been prejudiced right from the beginning towards this programme, without properly assessing the advantages of the entire integrated operations. The duck production data obtained from the farm are presented in Table 4. The reasons for low average results are poor hatching and survival, insecticide poisoning, negligence, attacks by rats and red ants.
As far as fish-cum-pig farming is concerned, the first trial was successful. In the second trial, the pigs were apparently given contaminated feeds which resulted in stunted growth. Theft of fish from the ponds also contributed to the less than average returns.
Farm Improvements
A major renovation of the old ponds was undertaken and the area thus built up is 84 ares (12 ponds). These ponds are being used as breeding and rearing ponds. New inlet structures and monks were built in all renovated ponds.
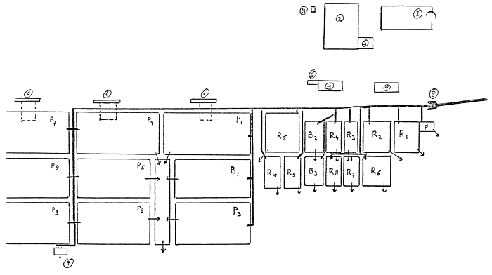
The duck rearing unit was rehabilitated and upgraded. This is now similar to the one in Mwekera farm. Three new duck houses were built on the banks of P1, P4 and P7. Two chicken houses have also been provided (Please see Figure 2). Security lights have been installed on one side of the farm and fencing of the pond area is under way.
A new hatchery has been constructed and is being used for tilapia fingerlings production, semi-artificial propagation of carp and catfish and for conditioning of fry/fingerlings before transport. This facility consists of 2 nursery tanks and 2 broodstock tanks.
Since the area of the old complex of small ponds is not sufficient to produce fish seed required for the new complex and extension purposes, it was decided to use one of the new big ponds as a breeding pond. The distribution and denomination of ponds is as indicated in Figure 2. The three breeding ponds were stocked with O. andersonii as shown below:
| Pond No | Area (ares) | Males | Females |
| B1 | 45 | 276 (263 g av) | 1 158 (223 g av) |
| B2 | 6 | 29 (510 g av) | 147 (126 g av) |
| B3 | 8 | 40 (550 g av) | 208 (135 g av) |
Fish seed production:
The production of fry and fingerlings was affected by scarcity of water between September 1987 and middle of January 1988. The breeding ponds could therefore be seined only towards the end of January 1988, instead of the beginning of November 1987,
Table 5 summarises production data obtained in 1988 and 1989 from nursery ponds. In order to improve the survival rates, the following management actions were implemented:
Stocking of fry not less than 3 g at 2 000/are, fertilization with organic manure at initial dose of 10 kg/are, weekly dose of 4 kg/are and eventual supplementation with triple superphosphate at 0.5 kg/are/2 weeks, and supplementary feeding starting one month after stocking.
Figure 2 Farm lay out Chipata fish farm

*) constructed or rehabilitated during present GCP/ZAM/038/NET
When handling baby fish during cold months the following precautions are taken: careful handling, prophylactic treatment with malachite green at 2ppm for 2 minutes, and reduction of stocking density in order to maintain optimal water quality.
Production of table size fish
During the first year of operation, draught affected the trials from November 1987 to January 1988. The fish production data obtained in 1987 are summarised in Table 6. The performances during subsequent years was quite satisfactory as will be observed from the results summarised in Tables 7 and 8. In the first set of polyculture trials with O. andersonii and C. carpio, the average total net production was app. 4 400 kg/ha/yr of which the former contributed to app. 2 500 kg/ha/yr. In monosex trial (O. andersonii) the net production obtained was 3 400 kg/ha/yr. In the case of fish-cum-duck farming, dthe average rate fell to app. 2 500 kg/ha/yr due to stocking problems and high mortality after stocking.
In Pond P2 discarded soyabeans were applied and the net fish production rate obtained was 5 047 kg/ha yr. Pond P6 was treated with sunflower cake and the net fish production rate obtained was 3 688 kg/ha/yr. The inputs in the other ponds (Table 7) was mill sweepings and duck droppings. The second set of monosex culture trials (Pond P5, Table 8) yielded average production rate of only 2 280 kg/ha/yr due mainly to predation by birds.
Peking duck production:
Data on peking duck production are summarised in Table 9.
Other related studies
One batch of day-old chicken was transported from Lusaka and reared for 8 weeks, to an average weight of 1.6 kg.
A small experiment conducted on the use of silt from fish ponds in agriculture plots indicated that such practice would be attractive for small scale farmers growing maize.
A feasibility study on the introduction of fish-cum-pig culture was conducted and it was concluded that suitable action to avoid African Swine Fever would be necessary.
An experiment conducted to observe the growth and survival of O. andersonii when fed with two differrent feed items indicated no significant differences. Feed I was composed of Blood meal 15%, Maize meal 35%, Sunflower oil cake 47% Di-calcium phosphate 3%, while Feed II had Soyabean meal 27%, Maize bran 70% and Di-calcium phosphate 3%.
Fish seed production
In order to meet the requirements for extension activities particular emphasis was laid on fish seed production and distribution activities. A summary of such activities is presented below:
| 1987 season: | ||
| Pond B1: | 290 738 fry/fingerlings | |
| Pond B2: | 14 106 | |
| Pond B3: | 3 605 | |
| No. supplied to fish farmers: 150 555 | ||
| 1987–88 season: | ||
| Pond B1: | 284 431 fry/fingerlings | |
| Pond SW3: | 14 950 | |
| Pond C3: | 28 890 | |
| No. of fry per female fish: 567 | ||
| No. supplied to fish farmers: 113 120 | ||
| 1988–89 season: | ||
| Pond B1: | 138 976 fry/fingerlings | |
| Pond B2: | 914 | |
| Pond B3: | 4 100 | |
| Pond C3: | 28 882 | |
| No. supplied to fish farmers: 41,820 | ||
| 1989–90 season: | ||
| Pond B1: | 163 243 fry/fingerlings | |
| Pond B2: | 3 395 | |
| Pond B3: | 3 334 | |
| Pond C3: | 48 748 | |
| Pond C5: | 22 083 | |
| No. supplied to fish farmers: 59 880 | ||
Production ponds:
Data obtained from the various production ponds are summarised in Table 10.
Peking duck production:
Data on this activity are summarised in Table 11.
DEMONSTRATION OF INTEGRATED FISH FARMING

INTEGRATED FISH FARMING IN RURAL SECTOR

SHIMUKUNAMI SCHOOL FISH PONDS

SHIMUKUNAMI SCHOOL CHILDREN BUILDING A DAM

2.2.1 Fish Farmers' Training Course in Mwekera. A new syllabus was prepared by the project for this course (Annexure 1). Audio-visual materials prepared by the project have enhanced the effectiveness of this programme.
2.2.2 Assistance in the preparation of a field manual for fish farming production units in schools.
2.2.3 Assistance in the preparation of script for the film strip on fish farming.
2.2.4 Preparation of TV programme on fish farming in Zambia.
2.2.5 Technical assistance to 2 groups of potential fish farmers in West Lusaka. The wards in which group discussions were held and sites surveyed are Namalombwe (24 farmers) and Nymba (25 farmers). Summary reports on this activity are presented in Annexures 2 and 3.
2.2.6 Preparation of the narration for filmstrip on Integrated Fish Farming.
2.2.7 Translantion of the narration for filmstrip on Integrated Fish Farming into 7 local languages.
2.2.8 Preparation of the field manual entitiled Better Fish Farming in Zambia.
2.2.9 Preparation and distribution of circular letters and questionnaires regarding assistance required by potential fish farmers in Eastern and Lusaka Provinces (Annexures 4 and 5).
2.2.10 Contribution of articles in the Agricultural Extension Bulletin UTHENGA. At periodic presentations of the bulletins to the extension staff of Agriculture Department, extension workers from the Fisheries Department have been present to provide detailed explanations.
2.2.11 Contributions in the FISHERIES CORNER radio programmes broadcast by the Department of Fisheries.
2.2.12 Co-operative fish farming efforts in the Copperbelt Province. A co-operative fish culture enterprise is being supported in the village of Simukunami, located about 90 km from Mwekera, where the fish farmers are using a common spring to feed the ponds. A fish scout has been assigned to live in this village and assistance to the farmers has been provided with bicycle, tools, initial fry needed for stocking, and construction and management advice. Please see Annexure 6 for list of interested co-operative societies.
2.2.13 Another co-operative programme has been developed in the village of Kafulafuta, where a dam and 2 ponds have so far been constructed.
2.2.14 Participation in annual agricultural shows held in Lusaka, Kitwe and Chipata. During these shows various handouts prepared by the project have been distributed. In addition, demonstrations, slide shows, exhibits and technical advice have been regular features.
2.2.15 Fish Farmers Day. Practical information and technical advice relating to fish culture were given, using Chipata Fish Farm as the demonstration centre. Field visit to fish ponds constructed by a new emergent farmer was also arranged. This farmer give first hand information on pond construction techniques and current costs. A discussion session was also organised, the topic being How to start a fish farm (Please see Annexure 7.
2.2.16 Distribution of TMC field slide projectors with accessories and extension materials to all provincial fish culture extension staff in the Country. (Please see Annexures 8 and 9 for details).
2.2.17 Collaboration between Fish Culture Extension Service and Agriculture Extension Workers. The Department of Agriculture introduced intensive T and V method of extension service in 1978, which included a systematic and methodical approach to establish a firm contact between the farmers and the extension workers. On the basis of discussions held with Provincial Agriculture Authorities of Eastern, Copperbelt and Lusaka Provinces, it was decided to organize workshops/training courses in fish farming for Agriculture Extension Officers at different levels, along with re-training of fish scouts attached to the fish culture extension programmes. A breakthrough has been achieved in this direction with the successful completion of several training programmes (Details under Training courses). Annexures 10,11,12
On the basis of experience gained during these courses, the following strategy has been worked out:
2.2.18 A typical result and follow-up of the training programme initiated for the Agriculture Extension Officers is the Group fish farming exercise started in the village of Shantumbu, near Chilanga. This area was identified as a potential site for a group development by the Ag. Block Supervisor of Chipapa. During the first phase of operations, six farmers and Shantumbu Primary School constructed fish ponds. Subsequently three more farmers joined in the programme. A few well managed fish ponds have already been developed and some others are expected to get good results shortly. Annexure 13
2.2.19 A strategy to involve more women in the fish farming activities at Shantumbu has also been developed. This involved inclusion of women fish scouts in the extension programme, discussions with men and women extension officers, meetings with the farmer and his wife in order to explain the objectives of the exercise and expectations, providing more opportunities for the wives to get involved, learning about social customs and finding out how fish farming can be fitted in the household to give optimum benefits to the whole family. From the discussions held with the wives of farmers, the following indications have been developed:
The objective of the wives would be to get fish for home consumption, with the possibility of selling any surplus for cash.
Most wives would be interested in joining the fish culture activities, eventhough the control may be by their husbands.
The husbands will normally take all decisions regarding farming activities.
Most wives have their own plots in the village and income from such areas can be kept for themselves, provided the sales are approved by the husbands.
During mornings both husband and wife work in the field. From 11 to 15 hours the man may rest and the wife can prepare lunch. Aftewards, till dusk, the wife can work in her own plot and the husband may go back to the field.
2.2.20 Summary reports on extension activities relating to provision of technical advice, supply of fish seed, site selection etc are presented in Annexures
2.2.21 Following the recommendations of a mini-workshop conducted in Chilanga, a poster for promotion of fish farming in the rural sector has been prepared.
2.2.22 Special importance has been given to the development of fish production units in schools.
2.2.23 Preparation of GUIDELINES FOR AGRICULTURE EXTENSION OFFICERS.
2.2.24 Extension Materials in Use
| 1. | Film strip on Integrated Fish Farming Strip, slides, and English Narration | - | Distributed to all provinces |
| 2. | Translation of above in 7 local languages | - | General |
| 3. | Filmstrip on Farming of Tilapia nilotica and narration | - | Distributed to all provinces |
| 4. | T.M.C. Compact projectors | - | -do- |
| 5. | Manual for fish farming production units in schools | - | -do- |
| 6. | FAO Better Farming Series: How to Begin, Water: Where Water Comes from, The pond, The fish, Further Improvement. | - | -do- |
| 7. | Audio casette- for Film Strip on Integrated Fish Farming | - | General |
| 8. | TV programme (Video casette): Fish Farming Development | - | General |
| 9. | TV programme (Video casette): Copperbelt Extension Programme | - | General |
| 10. | TV programme (Video casette): UN in action- Fisheries in Zambia | - | General |
| 11. | Better Fish Farming in Zambia. Manual | - | Priced |
| 12. | New ZIBA programme for the rural sector in Zambia | - | General |
| 13. | Guidelines for Agriculture Extension Officers | - | For Trainees |
| 14. | Field Extension Manual | - | For Fish Scouts |
| 15. | Questionnaire for farmers | - | For Ext. staff |
| 16. | Hand-outs: Raising Tilapia, Integrated Fish Farming, Fertilizing the water in your pond | - | General |
| 17. | Guidelines for use by extension staff Different types of fish ponds, O. andersonii seed production, Transportation of fish, Raising Peking ducks, Raising pigs next to fish ponds | - | General |
2.3.1 Fish culture section of the Kasaka Fisheries Training Course for Fish Scouts has been handled by the project.
2.3.2 Part-time extension training course for fish scouts attached to Chilanga Fish Farm. February to June 1987. No. of participants: 7.
2.3.3 Assistance to fish farmers training course conducted at Mwekera Fish Farm. 1987; 8 weeks. No. of participants 8, from North Western and Western Provinces.
2.3.4 Workshop on Aquaculture as on Industry in Zambia. 12th to 15th October, Chilanga. No. of participants: 26. Report in Annexure 14.
2.3.5 Assistance to fish farmers training course conducted at Mwekera Fish Farm. 1987–88; 8 weeks. No. of participants: 4.
2.3.6 Lectures on water quality criteria for fish. Course on Water Supply in Rural Areas held at Katopola Agriculture Engineering Institute, Chipata.
2.3.7 Training Course for District Agriculture Officers of Eastern Province. 18th to 22nd April and 9th to 13th May 1988, Chilanga. No. of participants: 9. Annexures 10 and 11
2.3.8 Training Course for Fish Scouts in Eastern Province. 18th to 22nd July and 8th to 12th August 1988, Chipata. No. of participants: 8. Annexure 12
2.3.9 Fish Farmers Training Course. 1988. Mwekera. No. of participants: 14 from Luapula Province.
2.3.10 Training Course for Fish Scouts in Copperbelt Province, 20 th to 22nd September 1988, Mwekera. No. of participants: 16.
2.3.11 National Training Course for Fish Scouts. 3rd to 12th October 1988. No. of participants: 10.
2.3.12 Seminar on Fish Culture Extension. 8th to 10th November 1988, Mwekera. No. of participants: 13. Reports in Annexures 7 and 8.
2.3.13 Seminar for school teachers. 15 th to 17 th November 1988, Chipata. No. of participants: 17. Report in Annexure 17.
2.3.14 Workshop/Training Course for Agriculture Block Supervisors in Eastern Province. 5th to 9th December 1988 and 6th to 10th March 1989, Chipata. No. of participants: 8. Annexures 18 and 19
2.3.15 Workshop/Training Course for Agriculture Block Supervisors of Lusaka Province. 20th to 24th February 1989, Chilanga. No. of participants: 11. Annexure 20.
2.3.16 Workshop/Training Course for Agriculture Block Supervisors in Copperbelt Province. 3rd to 6th April 1989, Mwekera. No. of participants: 27. Annexure 21
2.3.17 Workshop/Training Course for Agriculture Block Supervisors in North Western Province. 18th to 20th April, 1989, Solwezi. No. of participants: 7. Annexure 22.
2.3.18 Practical Training Course for Kasaka Fish Scout Trainees. 26th July to 12 th August, 1989, Mwekea. No. of participants: 26. Annexure 23
2.3.19 Refresher Course for fish scouts in North Western Province. 21 st to 25 th August 1989. No of participants: 11.
2.3.20 Re-training course for fish scouts based in Chilanga, Southern Province and Western Province. 28/th to 31/st August 1989, Chilanga. No. of participants: 15.
2.3.21 Training Course for Luangwa Integrated Resource Development Project. 25 th to 30 th September 1989, Mwekera. No. of participants: 9.
2.3.23 Training Course for Luapula Agriculture Extension Officers. 13 th to 17th November 1989, Mwekera. No. of participants: 9.
2.3.25 Training Course for fish farmers from North Western, Copperbelt and Lusaka Provinces. January 1990, Mwekera. No. of participants: 16.
2.3.22 Training Course for Lusaka Rural Agriculture Extension Officers. 7 th to 10 th November 1989, Chalimbana. No. of participants: 23. Annexure 24
2.3.24 Training Course for Agriculture Extension Staff in Sichili, Western Province. 22 nd to 25 th November 1989, Sichili. No. of participants: 14. Annexure 25
2.3.25 Workshop on Women in Fish Culture - for women Fish Scouts-. 17 th to 20 th April 1990, Chilanga. No. of participants: 7.
2.3.26 Seminar to review extension activities of the project. 12,th and 13 th June 1990, Mwekera. No. of participants: 28. Annexure 26
2.3.27 Mini-workshop for developing fish farming extension posters. 7 th September 1990, Chilanga. No. of partipants: 9
2.3.28. Workshop on fish culture arranged for staff of Land Use and and Planning Section, Agriculture Department. 20th to 22nd September 1990, Chilanga. No. of participants: 11
2.4.1 Two week's visit to Szarvas Fisheries Research Institute (Hungary) for training in carp culture. Mr. E.D. Boma.
2.4.2 Three months' training course in Carp Hatchery Management, at Szarvas Fisheries Research Institute (Hungary). Mr. K.P. Banda.
2.4.3 Training Course in Fish Feeds, Hungary, May–August 1988. Mr. K.N. Kapanda.
2.4.4. Integrated Fish Farming Course at Asian-Pacific Regional Research and Training Centre for Integrated Fish Farming, Wuxi, Peoples Republic of China. 18 th April to 12 th August 1968. Mr. Davies P. Mugala.
2.4.5 Visit to Fish Culture Institutions in India. 1988. Mr. C.T. Maguswi, Biologist and Mr. K.P. Banda, Aquaculturist.
2.4.6 Study tour by Fish Scouts to Fish Culture Stations in Malawi. June, 1990. Mr. A. Namasiku, Mr. F. Zimba and Miss M. Nyankhata.
2.4.7 Study tour to Fish Culture Development Project, Bouake, Ivory coast. 30th January to 7th February 1988. A.J. Rothuis, APO.
2.4.8 Study tour to Aquaculture Research/Development Centre, Szarvas, Hungary, 18th to 31st October 1988. A.J. Rothuis, APO.
2.4.9 Study tour to Thailand. 4th to 13th December 1989, F.G.J. van den Berg, APO.
2.4.10 Study tour to Malawi. 17th to 29th June 1990. F.G.J. van den Berg, APO.
2.4.11 Study tour to Thailand and Bangladesh. 17th June to 10th July 1990. H.J. Keus, APO.
2.5.1 The Second International Symposium on Tilapia in Aquaculture, Bangkok, Thailand, 16th to 20th March 1987. Please see Annexure 27
2.5.2 Symposium on the Development and Management of Fisheries in Small water bodies, Accra, Ghana, 7th to 8th December 1977.
2.5.3 Seventh Session of Committee for Inland Fisheries of Africa, Accra, Ghana, 9th to 11th December 1987.
2.5.4 Second Asian Fisheries Forum, Tokyo, Japan, 17th to 22nd April 1988.
2.5.5 Eleventh meeting of the Policy Organs of the Lusaka based ECA-MULPOC, Harare, Zimbabwe, 1st to 6th March 1989. Please see Annexure 28
2.5.6 ICLARM/GTZ, Malawi Fisheries Department and University of Malawi International Conference on Research for the development of Appropriate Aquaculture Technology for implementation in Rural Africa, Zomba, Malawi, 2nd to 6th April 1990 Annexure 29
2.6.1 B.J. Goedegeburr, Graduate student, Aquaculture, at Agriculture University of Wageningen, the Netherlands, worked at Chipata Fish Farm during November 1988 to April 1989,
2.6.2 David A. Onyango and Zephania O. Wilson of KEN/86/027 visited Chilanga, Chipata and Mwekera farms during 1st to 29th November 1989.
A three months local consultancy was established during February–May 1990 to conduct a base-line study on the involvement of women in the aquaculture development programmes and the nutritional impact of project activities. This study involved a review of the food security and nutritional situation of dthe rural areas where the project operates, identification and quantification of contributions made by women in aquaculture activities and identification of major constraints to the participation of women in such programmes. Summary of report prepared by Ms C.W.Kos is given in Annexure 30.
A study on the status of aquaculture in small reservoirs of Zambia was conducted and the results presented at the CIFA session held in Ghana during 7–11 December 1987. Summary of the paper is given in Annexure 31.
2.9.1 A new ZIBA Fish Farming Programme for the rural sector in Zambia. (V. Gopalakrishnan). (Annexure 32)
2.9.2 Aquaculture development potential in small reservoirs of Zambia. (V. Gopalakrishnan)
2.9.3 Better Fresh Water Fish Farming in Zambia. Manual.
2.9.4 Narration of filmstrip on Integrated Fish Farming. In English and 7 local languages- Nyanja, Lozi, Tonga, Lunda, Kaonde, Luvale and Bemba.
2.9.5 Pond Management - Fish Farming Systems. Workshop paper. (V. Gopalakrishnan)
2.9.6 Role of Tilapia (Oreochromis andersonii) in integrated farming systems in Zambia. (V. Gopalakrishnan)
2.9.7 Fish Farming Extension- Guidelines for Extension Officers. (V. Gopalakrishnan)
2.9.8 Management of Integrated Aquaculture Systems in the Rural Sector. (V. Gopalakrishnan.
2.10.1 Credit for fish farming in Zambia. A report prepared for the Fishculture development project, based on the work of R. Fulconis, Consultant.
2.10.2 Carp hatchery and seed production in Chilanga. A report prepared for the Fishculture development project, based on the work of Andras Woynarovich, Consultant.
2.10.3 Demonstration of the manufacture and use of simple compounded feeds for semi-intensive tilapia culture in Zambia. A report prepared for the Fishculture development project, based on the work of M.B. New.
2.10.4 The integration of fish-farming with small scale farming systems in Zambia. A report prepared for the Fishculture development project, based on the work of N.J. MacPherson.
2.10.5 Raising Tilapia. Handout prepared for extension programme.
2.10.6 Better Fish Farming in Zambia - Fertilizing the water in your pond. Handout prepared for extension programme.
2.10.7 Integrated Fish Farming. Handout prepared for extension programme.
2.10.8 Guidelines for Agriculture Extension Officers.
2.10.9 Manual for fish farming production units in Schools. Prepared by E.D. Muyanga (Local consultant).
2.10.10 Site Survey for Fish Pond Construction. Field Manual Prepared by A.J. Rothuis, APO, Chipata.
2.10.11 Production of catfish (Clarias Gariepinus). Field Manual prepared by A.J. Rothuis, APO, Chipata.
2.10.12 Documents for use by Agriculture Extension Workers:
Systems of Aquaculture by V. Gopalakrishnan
Status of Aquaculture by E.D. Boma
Fish Pond Site Selection by D.J. Campbell
Fish Pond Biology by F.G.J. van den Berg
Fish Pond Construction by F.G.J. van den Berg
Integrated Fish Farming by A.J. Rothuis
Fish Farm Economics and Management by V. Gopalakrishnan
Fish Seed Production by C.T. Maguswi
Fish Pond Management by V. Gopalakrishnan
Pond Sanitation and Fish Health by V. Gopalakrishnan
2.10.13 Contributions in UTHENGA- Ag. Extension Bulletin of Eastern Province:
Fish Farming - Introduction, June 1988
Site selection for a fish pond, July/August 1988
Construction of a fish pond, September 1988
Management of a fish pond, October–December 1988
MAPHUNZIRO ENA, January–March 1989
ULIMI WA NSOMBA (Other lessons- Fish farming)
Cropping of the fish pond, April–June 1989
2.10.14 Field Manual for Fish Culture Extension workers. Prepared by F.G.J. van den Berg.
2.10.15 Technical report on a survey conducted in Western Province for the development of a demonstration-cum-training fish farm, based on work done by D.J. Campbell and F.G.J. van den Berg.
2.10.16 Joint Evaluation Mission by the Government of the Netherlands and the FAO. Report published in June 1989. Summary of report in Annexure 33.
2.10.17 Final report based on the work of E. Cayron-Thomas, Aquaculturist (March 1987–April 1988). Field Document.
2.10.18 Preliminary results on the use of Serranochromis robustus as a predator. Prepared by D.J. Campbell.
A consignment of 250 grass carp (Ctenopharyngadon idella) fingerlings was brought to the Chilanga Fish Farm by the Chief Technical Advisor, after getting necessary clearances and with the courtesy of Fisheries Department of the Government of Mauritius. The fingerlings grew well in one of the rearing ponds at the Farm, but after 4 months most of them disappeared due to unknown causes. However 9 fish were available and they were transferred to the main breeding pond of the Office ponds complex. In this pond the fish grew to between 2.5 and 3.3 kg weight at the age of app. 15 months. The fish were then transferred to different ponds in the C ponds and SW ponds complexes. Preliminary examinations indicated that the males had become sexually mature in September/October 1990, but the females did not show indications of maturity. It is hoped that they will be mature in 1991 season, when attempts could be made to induce the fish to breed.
International
Dr V. Gopalakrishnan, CTA/Project Manager.
Ms E. Cayron-Thomas, Aquaculturist, 3.87 to 4.88.
Mr D.J. Campbell, Aquaculturist, Mwekera.
Mr A.J. Rothuis, APO Aquaculturist, Chipata.
Mr H.J. Keus, APO Aquaculturist, Mwekera.
Mr F.G.J. van den Berg, APO Aquaculturist, Chilanga.
National
Mr E.D. Boma, Co-Manager.
Mr C.T. Maguswi, Biologist, Mwekera.
Mr G.Z. Sinkala, Prov. Fish Culturist, Chipata.
Mr K.P. Banda, Aquaculturist, Chilanga and Mwekera.
Mr K.N. Kapanda, Aquaculturist, Chipata.
Mr V.M. Mulenga, Fisheries Research Officer, Chilanga.
Mr D.P. Mugala, Asst. Fish Culturist, Mwekera.
Annexure 34 indicates the major items of equipment procured and operated.
The CTA, Co-Manager and Biologist participated in the Technical consultation on Aquaculture in Rural Development, held in Lusaka, by ALCOM.
The CTA, Co-Manager and all senior counterpart professional staff attended the Annual Fisheries Department Meetings held in 1988 and 1989.
The CTA, project staff at Chipata and counterpart Biologist attended the ALCOM workshop held at Chipata, in 1989,
The CTA assisted the United Nations Information Services TV crew in filming a UN IN ACTION documentary on Fisheries Development in Zambia.
The CTA worked in the additional capacity of FAO Representative ad interim during periods of absence of FAOR, Zambia, in 1988 and 1989.
The CTA assisted in the work of the Joint Evaluation Mission by the Government of the Netherlands and FAO, June 1989,
The CTA assisted in the work of the Joint Netherlands/FAO Formulation Mission for Fish Culture Development in Zambia, January–February 1990.
A survey conducted in Western Province to determine immediate improvements necessary to start a project centre there. Field visits were arranged during 5th to 9th September 1989. Recommendations to upgrade the Kaoma fish farm and possible farm design options for Kaoma and Shishamba sites have been given.
Assistance given to Lima Bank Limited dto prepare GUIDELINES FOR TECHNICAL EVALUATION OF FISH POND SITE (Please see Appendix 35).
| 1987 | : | Zam.Kwacha | 142 072 |
| 1988 | : | 195 026 | |
| 1989 | : | 483 206 | |
| 1990 | : | 796 444 | |
| (Jan–Oct) | : |
A consultancy was established during 8 to 20 February 1988 in order to:
review and evaluate the performance of the fish feeds now being used in the project farms for tilapia fry, fingerlings and food fish production;
review the information gathered so far on locally available fish feed ingredients and propose suitable feed formulations for fry, fingerlings and food fish (tilapia production);
recommend the necessary equipment to produce fish feeds in the three project farms.
The main findings of the study were:
considering the prevailing conditions in the stockfeed industry in Zambia, it is difficult to recommend the use of compound feeds in aquaculture at present;
despite the difficulty in justifying the use of compound feeds in Zambian commercial aquaculture, there is a good case for demonstrating simple techniques of small-scale fish feed production and the results which can be obtained from the application of feeds made by them on project farms; and
the three project farms, in their feed preparation and feeding trials and demonstrations, utilize the moist extrusion technique.
Feed fomulations have been provided for experimental broodstock, fry, fingerlings and rearing diets for O. andersonii. Several versions of each have been formulated, partly to cover probable temporary shortages of ingredients and partly so that experiments can be conducted to see which gives the most effective result.
A special consultancy was established with the following terms of reference during the period 8 January to 6 February 1990:
review the data available at the project on the culture of Peking ducks and fish, with particular attention to its economic aspects;
review critically the socio-economic implications of the introduction of this system of culture in rural areas for the commercially-oriented small-scale farmers;
prepare a report on the above together with recommendations for future activities concerning fish-cum-duck culture in rural areas.
The study indicated that integrated fish farming can contribute to the expansion of food supplies for small-scale farmers and their communities in Zambia and in a form of production sufficiently flexible to be tailored to the particular needs of small-scale farming systems.
The nature of the current systems of the small-scale sector makes it most likely that only relatively low yield fish production systems can be established. These can nevertheless be viable and sustainable.
The Peking duck-cum-fish production systems developed by the project have been taken up successfully by private commercial farmers. The focus of research and extension should now be directed towards the aim of finding locally adapted, low external input and low level management solutions for small-scale farmers.
A consultant was assigned from 12 April to 15th May 1987 with the following terms of reference:
to study the possibility of establishing a credit programme directed to fish-farmers as well as village bodies, cooperative societies, educational institutions, youth clubs, etc.;
to define the modalities for the credit programme to operate efficiently under Zambian conditions;
to advise the project on the type of document each farmer/organization/institution may need to obtain credit under the programme;
to contact possible local organizations and assist in the establishment of procedures for a revolving fund operation.
The work was completed satisfactoritly and the recommendations made were considered by the Government.
The project management held detailed discussions with Lima Bank officials and they have prepared guidelines for potential fish farmers. Credit for fish farming operations are, at present, being considered by development banks and some commercial banks. (Annexure 35).
The Joint Evaluation Mission held its study and review in Zambia during 2nd and 19th June 1990. The mission recommended an extension of the project by 6 months beyond December 1989. The mission also recommended that the development of an Aquaculture Training Centre would be the logical follow-up of the project GCP/ZAM/038/NET. It was stated that the definition of an aquaculture development plan would require a more important contribution. The need for a project that would coordinate the numerous aquaculture projects and interventions was also emphasized. (Annexure 33).
Among other main findings of the Mission, the following are highlighted:
there is considerable potential in Zambia for expansion of fish farming activities and production utilizing abundant natural resources;
the GCP/ZAM/038/NET “Fish Culture Development in Zambia” project is well managed and the project staff is very competent and highly motivated;
the Chilanga, Chipata and Mwekera fish farms have been developed into viable operational production, demonstration and training centres;
the participation of school children and women in some rural fish farming activities of the project is welcomed;
in each annual fish scout training course women represented about 35% of the participants; and
credit facilities to small-scale fish farmers do not appear to be a major constraint at present.