
Fig. 1. The southern bay of Pulau Perhentian Besar showing the five stations at which hydrographic investigation was made on 31/7/77 to 1/8/77. Broken line being the edge of the outer coral reef

Fig. 2. Drift tracks with position taken at half-hourly intervals on 31/7/77 towards the end of an ebb tide; drift bottles set at 1525 hours

Fig. 3. Drift tracks with positions taken at half-hourly intervals on 1/8/77 during a flood tide; drift bottles released at 0715 hours

Figure 4. Proposed floating net cage with details of design for the Pulau Perhentian Besar site

Fig. 5. Proposed mooring of the floating net cage fot the Pulau Perhentian Besar site

Fig. 6. The five hydrographic stations sampled in Kuala Setiu Lagoon on 6/8/77; Station 5 being directly opposite the Chinese family

Fig. 7. The four mangrove channel stations and the three lagoon stations (I–IV and A-C, respectively) sampled during 7–8/8/77; Station C being Station 5 in Fig. 6

Fig. 8. Proposed floating net cage for the Kuala Setiu Lagoon site


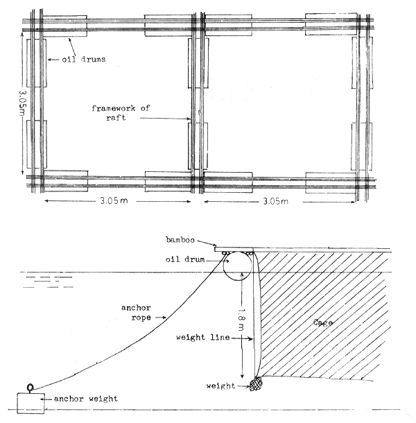
Fig. 10 Concrete weight for raft anchorage

Fig. 11 Fish trap

Fig. 12 Lay out of the fish farm
Fig. 13. Beach seine (drawing NOT to scale)
For South China Sea Fish Farming Programme Besut
47.3 × 5.1 meters

Design: Paisal & Jonasson
FAO/SCSP/Besut
| Floatrope | = | 6 mm Kuralon |
| Headrope | = | 6 mm Kuralon |
| Hang.line | = | 3 mm Nylon |
| Groundrope | = | 6 mm Kuralon |
| Sinkerrope | = | 3 mm Nylon |
| Floatation | = | 2 floats pr/m |
| Buoyance 150 g | ||
| 95 pieses | ||
| Sinkers | = | Leads 100 g/m |
| Total 5.1 kg |

Fig. 14. Sites of seed fish collection
24 July to 20 November 1977
| Date | Activities |
| 24 July | W.L. Chan and J. Ho arrived in Kuala Lumpur (p.m.) |
| 25 July | Met Mr. F. Ossella of UNDP for general briefing on the assignment and making internal travel and other necessary arrangements (a.m.) Met Encik A.B.O. Merican, Deputy Director-General, and his staff at the Fisheries Office for further briefing |
| 26 July | Arrived in Penang. Visited Fisheries Research Institute office and briefed on cage fish culture trial site. |
| 27–28 July | Preparation of field work schedule and planning overall strategy in operation |
| 29 July | Arrived at Kota Bahru, met by Mr. J. McAlister, FAO/UNDP Team Leader |
| 30 July | With Mr. McAlister at the Kuala Besut office. Made plans for operation in Pulau Perhentian Besar. |
| 31 July | Taken to the island by one of Office's fishing survey boats including their counterparts. Water sampling; underwater survey; and staying overnight. |
| 1 August | Continued the same work. Returned to Kuala Besut Office. |
| 2 August | Visited Kuala Besut fish landing site in early morning. Worked up hydrographic data for initial interpretation, discussion, etc. |
| 3 August | As for 2 August |
| 4 August | Visited Kuala Besut fish landing site. Further planning work, review of situations. |
| 5 August | As for 4 August |
| 6 August | Operated in Kuala Setiu Lagoon with Malaysian counterparts. |
| 7–8 August | Another sampling plan implemented; stayed overnight in Lagoon to enable afternoon, midnight and early morning survey with Malaysian counterparts. |
| 9–10 August | Worked up data, review progress, identification of further investigatory work before Chan left Kuala Besut for Kuala Lumpur. |
| 11 August | Chan returned to Kuala Lumpur. Reporting. Ho to Kuala Besut fish landing site with Mr. J. Rosdi. Made enquiry on bamboo raft construction and transported skiff and outboard engine to office. |
| 12 August | Chan met Mr. F. Ossella at UNDP Office with Mr. H.L. Cook. |
| 13 August | Visited Fisheries Office and discussed matters with Mr. T.K. Tan. Wrote preliminary report. Ho to Kuala Setiu with Mr. Rosdi. Met the two participants of this fish farming project. General survey of the lagoon for suitable seed fish collection sites. |
| 14 August | Chan departed Kuala Lumpur (a.m.) for Hong Kong. Ho stayed on to Kuala Besut up to early part of October. Ho to Kg. Buloh with Mr. Rosdi to investigate the supply and quality of bamboo for raft construction. Discussion with Mr. McAlister on financial problems. |
| 15 August | To Kota Bahru for quotations of materials. |
| 16 August | Estimate of expenses submitted to Mr. McAlister. |
| 17 August | To Kuala Setui with Messrs. Hashim and Rosdi. Employing trainees for seed fish collection project. |
| 18 August | To Kota Bahru, buying materials for raft and cage construction. |
| 19 August | Holiday |
| 20 August | Met Mr. McAlister at Kuala Besut Office. |
| 21 August | To Kuala Setiu. Advanced payment for purchasing bamboo. |
| 22 August | To Kuala Trengganu Fisheries Office. Met Mr. Siow, State Fisheries Officer and Mr. Sain. FAO. Ordered 40 empty 44-gallon oil drums for rafts. |
| 23 August | To Kota Bahru, purchasing materials and obtained framework for making weights of raft anchorage. |
| 24 August | To Kuala Trengganu for payment of empty oil drums. |
| 25 August | To Kota Bahru, purchasing materials. |
| 26 August | Holiday |
| 27 August | Transported materials to Kuala Setiu for rafts and cages construction. To Kg. Chelong and ordered 50 pieces of bamboo. |
| 28–30 August | To Kuala Setiu. Cages and weights making. |
| 31 August to | Holidays |
| 2 September | Met Mr. H.G. Angeles, Fish Fry Collection Consultant, FAO/UNDP and Mr. Palanisamy, Fisheries Officer (Penang). |
| 3 September | To Kota Bahru. Repaired outboard engine and bought additional materials for making otter net. Met Mr. Mohammad, Fisheries Adviser, second counterpart of this project. |
| 4–8 September | To Kuala Setiu. Initiated and demonstrated rafts and other net making. |
| 9 September | Holiday |
| 10–14 September | To Kuala Setiu. Rafts moored and cages fixed. Purchasing of trash fish for fish feed arranged. |
| 15–17 September | Holidays. Fish traps making at Rest House. |
| 18–22 September | To Kuala Setiu. Seed fish collection using a beach seine. |
| 23 September | Holiday |
| 24–28 September | To Kuala Setiu. Seed fish collection at various sites in the Lagoon. Met Mr. Low, FAO/HQ Fisheries Department on 24 September and Mr. E. Oswald, SCSP on 28 September. |
| 29 September | To Kota Bahru, Malaysian Airlines Office. |
| 30 September | Holiday |
| 1 October | To Kuala Setiu. Water quality monitoring. |
| 2 October | Kuala Besut Fisheries Office. Discussion with Mr. McAlister and Mr. Hashim. |
| 3–4 October | To Kuala Setiu. Final arrangements and briefing to fish farmers. Submit Activity/Progress Report. |
| 5 October | To Kota Bahru. |
| 6–7 October | Departed Kota Bahru for Kuala Lumpur. To UNDP Office and HQ Fisheries Division. |
| 8 October | Departed Kuala Lumpur for Hong Kong. W. Chan arrived in Kuala Lumpur (p.m.) |
| 9 October | Visited UNDP and Division of Fisheries Offices. |
| 10 October | Waiting for delivery of hydrographic equipment. |
| 11 October | Received hydrographic equipment early a.m. and proceeded to Kuala Trengganu by air. Picked up Mr. Low at Kuala Trengganu Airport and travelled together to Kuala Besut. |
| 12 October | Began hydrographic investigations (Chan, Low and Lam) in the lagoon. |
| 13–16 October | Hydrographic investigations continued. |
| 17 October | By road to Kuala Trengganu. |
| 18 October | Returned to Kuala Lumpur by air. Visited Division of Fisheries. |
| 19 October | Visited Division of Fisheries, conclude discussions. |
| 20 October | Chan returned to Hong Kong (a.m.) |
PUBLICATIONS OF THE
SOUTH CHINA SEA FISHERIES DEVELOPMENT AND COORDINATING PROGRAMME
Working Papers
| SCS/74/WP/1 | Rabanal, H.R. The potentials of aquaculture development in the Indo-Pacific Region. Manila, 1974. 34p. |
| SCS/74/WP/2 | Crutchfield, J.A., D.A. Lawson and G.K. Moore. Malaysia - Legal and institutional aspects of fisheries development. Manila, 1974. 27p. |
| SCS/74/WP/3 | Marr, J.C. Republic of Vietnam - Legal and institutional aspects of fisheries development. Manila, 1974. 20p. |
| SCS/74/WP/4 | Larsson, S.O.R., G.C.A. Van Noort and E.O. Oswald. Malaysia - A report on artisanal fisheries of Peninsular Malaysia with particular reference to Kuala Besut. Manila, 1975. 58p. |
| SCS/75/WP/5 | Rabanal, H.R. Irian Jaya, Indonesia - Survey of possibilities and recommendations for development of brackish water fish production. Manila, 1975. 27p. |
| SCS/75/WP/6 | Tussing, A.R. Fishery development perspectives. Sub- Region V: South China Sea. Manila, 1975. (IPFC/74/ Sym/7). 23p. |
| SCS/75/WP/7 | Murdoch, W.R. and M.A. Myers. Republic of Singapore - An assessment of the Jurong Fishing Harbour complex and expansion site on the east bank of the Jurong River. Manila, 1975. 46p. |
| SCS/75/WP/8 | Peterson, C.L., K.J. Rosenberg and A.C. Simpson. Regional - Trip reports of chartered purse seine vessels Royal Venture and Southward Ho covering voyages I and II. Dec. 1–13, 1974 and Jan. 5 - Feb. 3, 1975. Manila, 1975. 37p. |
| SCS/75/WP/9 | Oswald, E.O. and R.E.K.D. Lee. Regional - A proposal for a live bait pole-and-line tuna fishing survey in the South China Sea and adjacent waters. Manila, 1975. 38p. |
| SCS/75/WP/10 | Rosenberg, K.J. and A.C. Simpson. Regional - Trip reports of chartered purse seine vessels Royal Venture and Southward Ho covering voyage 3. 9 February to 26 March 1975. Manila, 1975. 28p. |
| SCS/75/WP/11 | Peterson, C.L. Regional - Resource survey of larger pelagic fish. Manila, 1975. 32p. |
| SCS/75/WP/12 | Rosenberg, K.J., A.C. Simpson and C.M. Renwick. Regional - Trip reports of chartered purse seine vessels Royal Venture and Southward Ho covering voyage 4. 9 April to 24 May 1975. Manila, 1975. 36p. |
| SCS/75/WP/13 | Baum, G.A. Kuala Besut II - A supplementary report on selected socio-economic aspects and problems in a fisherman's community on the East Coast of Peninsular Malaysia. Manila, 1975. 43p. |
| SCS/75/WP/14 | Cuerden, C. Library services for the South China Sea Fisheries Programme and its participating countries. Manila, 1975. 48p. |
| SCS/75/WP/15 | Lawson, R.M. Malaysia - An interim report on socio-economic aspects of the development of artisanal fisheries on the East Coast of Malaysia. Manila, 1975. 29p. |
| SCS/75/WP/16 | Jamandre, T.J. and H.R. Rabanal. Engineering aspects of brackish water aquaculture in the South China Sea region. Manila, 1975. 96p. |
| SCS/75/WP/17 | Murdoch, W.R. Malaysia - Assessment of the viability and potential of the joint venture, Majuikan Mideast Sdn Bhd, Kuching, Sarawak, as requested by Lembaga Majuikan, Malaysia. Manila, 1975. 16p (Restricted). |
| SCS/75/WP/18 | Cleaver, W.D. Malaysia - A preliminary design and general arrangement for an offshore purse seine vessel for the East Coast of West Malaysia. Manila, 1975. 35p. |
| SCS/75/WP/19 | Pischedda, J.L. Republic of the Philippines - Legal and institutional aspects in the development of the fishing industry. Preliminary observations and identification of the main obstacles. Manila, 1975. 35p. |
| SCS/75/WP/20 | Simpson, A.C. Regional - Acoustic surveys of pelagic resources. Report No. 1. Gulf of Thailand, July 1975. Manila, 1975. 28p. |
| SCS/75/WP/21 | Cintas, D. and C.M. Renwick. Regional - Report of aerial survey for schooling pelagic fish. 1. Philippine waters, 12–29 June 1975. Manila, 1975. 28p. |
| SCS/76/WP/22 | Baum, G.A. and J.A. Maynard. Tobuan/Sual, Pangasinan Province Central Luzon - A socio-economic study on a rural fishing population in Central Luzon in connection with the Municipal Fisheries Pilot Programme. Manila, 1976. 44p. |
| SCS/76/WP/23 | Baum, G.A. Panigayan, Lampinigan, Baluk- Baluk and Manangal, Basilan Province. A socio-economic study on four fishermen's communities affiliated to the Basilan Fishing Association (BFA/Isabela in connection with the Municipal Fisheries Pilot Programme). Manila, 1976. 62p. |
| SCS/76/WP/24 | Barica, J. Nutrient-dynamics in eutrophic inland waters used for aquaculture in some countries bordering the South China Sea, with particular reference to mass fish mortalities: Proposal for monitoring programmes. Philippines, Thailand and Hong Kong. Manila, 1976. 43p. |
| SCS/76/WP/25 | Rosenberg, K.J., A.C. Simpson and J.A. Maynard. Regional- Trip reports of chartered purse seine vessels Royal Venture and Southward Ho covering voyages 5 and 6, 13 June to 10 September 1975. Manila, 1976. 52p. |
| SCS/76/WP/26 | Moore, G.K. Malaysia - Legal and institutional aspects of fisheries development. (2nd working paper) Manila, 1976. 38p. |
| SCS/76/WP/27 | Wheeland, H.A. Malaysia - Preliminary observations and recommendations concerning the fisheries statistics programme of Peninsular Malaysia. Manila, 1976. 22p. |
| SCS/76/WP/28 | Maynard, J.A. Regional - Report of aerial survey for schooling pelagic fish. II. Thailand - 20 November to 1 December 1975. Manila, 1975. 20p. |
| SCS/76/WP/29 | Baum, G.A. and J.A. Maynard. Salay, Misamis Oriental Province - A socio-economic study on the fishing population of the seven coastal barrios of Salay Municipality in connection with the Municipal Fisheries Pilot Programme. Manila, 1976. 47p (country - Philippines) |
| SCS/76/WP/30 | Murdoch, W.R. Hong Kong - A preliminary feasibility study to prosecute offshore pelagic stocks from Hong Kong. Manila, 1976. 27p. |
| SCS/76/WP/31 | Johnson, R.F. Preliminary report on aquatic pollution in the South China Sea Region. Manila, 1976. 34p. |
| SCS/76/WP/32 | Wheeland, H.A. Preliminary observations and recommendations concerning the fisheries statistics programme of Singapore. Manila, 1976. 21p. |
| SCS/76/WP/33 | Baum, G.A. and J.A. Maynard. Coron/Tagumpay - Busuanga Island/Calamianes Group (Palawan Province). A socio- economic study on two rural fishing populations in northern Palawan in connection with the Municipal Fisheries Pilot Programme. Manila, 1976. 112p. |
| SCS/76/WP/34 | Jones, R. Mesh regulations in the demersal fisheries of the South China Sea area. Regional. Manila, 1976. 79p. |
| SCS/76/WP/35 | Simpson, A.C. and S. Chikuni. Progress report on fishing for tuna in Philippine waters by FAO chartered purse seiners. Manila, 1976. 38p. |
| SCS/76/WP/36 | Bonga, O.B. Vessel specifications and drawings for two 10 m multi-purpose fishing vessels for the small-scale fisheries project - Kuala Besut. Manila, 1976. 36p. |
| SCS/76/WP/37 | Shang, Y.C. Economics of various management techniques for pond culture of finfish. Manila, 1976. 36p. |
| SCS/76/WP/38 | Johnson, H.N. Malaysia - A preliminary study of investment opportunities for the development of small-scale fisheries on the East Coast of Peninsular Malaysia. Manila, 1976. 21p. |
| SCS/76/WP/39 | Shang, Y.C. Follow-up programmes on economics of aquaculture in the South China Sea Region. Manila, 1976. 19p. |
| SCS/76/WP/40 | Cook, H.L. Problems in shrimp culture in the South China Sea Region. Manila, 1976. 50p. |
| SCS/76/WP/41 | Johnson, H., J. Dibbs and R. Nasoetion. Indonesia - A preliminary assessment for small-scale fisheries development in Riau, North Sumatra and West Kalimantan Provinces. Manila, 1976. 51p. |
| SCS/76/WP/42 | Baum, G.A. and J.A. Maynard. Bayawan Municipality, Negros Oriental Province/Negros. A socio-economic study on the rural fishing population of Bayawan Municipality in connection with the Municipal Fisheries Pilot Programme. Manila, 1976. 33p. (country - Philippines) |
| SCS/76/WP/43 | Maynard, J.A. Philippines - Report on aerial survey for schooling pelagic fish in waters of the South China Sea and Sulu Sea adjacent to Palawan Island, 9–12 March 1976. Manila, 1976. 17p. |
| SCS/76/WP/44 | Chakraborty, D. Fisheries statistics in the Philippines - A plan for a new and expanded data collection programme. Manila, 1976. 70p. |
| SCS/76/WP/45 | Marr, J.C., G. Campleman and W.R. Murdoch. Thailand - An analysis of the present and recommendations for future fishery development and management policies, programmes and institutional arrangements. Manila, 1976. 185p. (Restricted) |
| SCS/76/WP/46 | Cleaver, W. and O.B. Bonga. Thailand - Preliminary design, general arrangement and lines plans for two pelagic purse-seine/midwater trawl research vessel, 27.5 m and 24 m lengths. Manila, 1976. |
| SCS/76/WP/47 | Cleaver, W. Hong Kong - A preliminary design, general arrangement and specifications for a combination pelagic/ demersal research vessel. Manila, 1976. |
| SCS/76/WP/48 | Simpson, A.C. and W.R. Murdoch. Regional - Trip reports of chartered purse seine vessel Royal Venture - Trips Nos. 7 & 8, 1 October 1975 to February 1976. Area - Moro Gulf, Manila, 1976. 17p. |
| SCS/76/WP/49 | Simpson, A.C. Regional - Trip reports of chartered vessel Southward Ho - Trips 7 & 8. 11 September 1975 to March 1976. Areas - Malaysia and Thailand. Manila, 1976. 33p. |
| SCS/76/WP/50 | Simpson, A.C. Regional - Trip reports of chartered purse seine vessel Royal Venture and Southward Ho - Trip No. 9. Manila, 1976. 22p. |
| SCS/76/WP/51 | Simpson, A.C. Regional - Trip reports of chartered purse seine vessel Southward Ho - Trips Nos. 10 and 11. 15 April to 8 August 1976. Area - East, North and West Coasts Luzon Island, Bohol Sea, Sulu Sea, Moro Gulf. Manila, 1976. 20p. |
| SCS/76/WP/52 | Wheeland, H.A. Statistics for fisheries development. Regional. Manila, 1976. 11p. |
| SCS/76/WP/53 | Christy, L.C. Republic of the Philippines - Legal and institutional aspects of fisheries development. Manila, 1976. 65p. (Restricted) |
| SCS/76/WP/54 | Maynard, J.A. Philippines - Province of Tawi-Tawi project identification and semi-detailed feasibility study relative to improving the status of small-scale fishermen and creating an integrated fishing industry in the Province of Tawi-Tawi. Manila, 1976. 110p. |
| SCS/77/WP/55 | Oswald, E.O. & J.A. Maynard. Thailand - Proposed small- scale fisheries pilot project for Ban Ao Makam Pom, Rayong Province, Manila, 1977. |
| SCS/77/WP/56 | Murdoch, W.R. & P.S. Walczak. Regional - Trip reports of chartered purse seine vessel, Southward Ho covering voyage 12. Area - Waters of the Sulu Sea. Manila, 1977. 11p. |
| SCS/77/WP/57 | Murdoch, W.R. Regional - Trip reports of chartered purse seine vessels Southward Ho and Royal Venture covering voyage 13. Area - mainly Moro Gulf, Philippines. Manila, 1977. 18p. |
| SCS/77/WP/58 | Simpson, A.C., W.R. Murdoch. Regional - Trip reports of chartered purse seine vessel Southward Ho covering voyages Nos. 14 and 15. Area - Moro Gulf. Manila, 1977. 15p. |
| SCS/77/WP/59 | Murdoch, W.R., P.S. Walczak. Regional - Trip reports of chartered purse seine vessel Southward Ho covering voyages Nos. 16 and 17. Area - Waters of the Moro Gulf. Manila, 1977. 23p. |
| SCS/77/WP/60 | Doty, M.S. Seaweed resources and their culture in the countries of the South China Sea region. Manila, 1977. 19p. |
| SCS/77/WP/61 | Rabanal, H.R. et al. Shellfisheries of Thailand: Background and proposal for development. Manila, 1977. 14p. |
| SCS/77/WP/62 | Chakraborty, D. Observations and recommendations concerning the fisheries statistics programme of Hong Kong. Manila, 1977. 14p. |
| SCS/77/WP/63 | Chakraborty, D. Observations and recommendations concerning the inland fisheries statistics programme of Thailand. Manila, 1977. 15p. |
| SCS/77/WP/64 | Hansen, K.A., P. Lovseth and A.C. Simpson. Acoustic surveys of pelagic resources. Report No. 2. Hong Kong, November 1976. Manila, 1977. 24p. |
| SCS/77/WP/65 | Christy, L.C. Republic of the Philippines - Legal and institutional aspects of fisheries development. Manila, 1977. 55p. |
| SCS/77/WP/66 | Murdoch, W.R. et al. A proposal for a small-scale fisheries pilot project in the Pulau Tujuh (Seven Islands) area, Riau Archipelago District, Riau Province, Indonesia. Manila, 1977. 69p. |
| SCS/77/WP/67 | Moore, G. Malaysia - A new fisheries bill. Manila, 1977. 56p. |
| SCS/77/WP/68 | Gedney, R.H. Water supply of the fishery development centre in freshwater aquaculture at Sukabumi, West Java, Indonesia. Manila, 1977. 20p. |
| SCS/77/WP/69 | Chan, W.L. et al. Cage culture of marine fish in East Coast Peninsular Malaysia. Manila, South China Sea Fisheries Programme, 1978. |
| SCS/78/WP/70 | Lee, R.E.K.D. Results of small scale live-bait pole-and- line fishing explorations for tuna in the Philippines. Manila, South China Sea Fisheries Programme, 1978. |
| SCS/78/WP/71 | Moore, G. Legal and institutional aspects of fisheries management and development - A new licensing system (Thailand). South China Sea Fisheries Programme, 1978. |
| SCS/78/WP/72 | Angeles, H.G. Preliminary fish seed resources survey along the coast of Peninsular Malaysia. Manila, South China Sea Fisheries Programme, 1978. |
NOTE: Copies of these papers can be obtained by writing to the Programme in Manila, Philippines.
COORDINATING COMMITTEE REPORTS
| SCSP: | 74/1 | REP | Report of the Ad Hoc Coordinating Committee Meeting of the South China Sea Fisheries Development and Coordinating Programme. Manila, 18–19 June 1974. 27p. |
| SCSP: | 74/2 | REP | Report of the first session of the Coordinating Committee of the South China Sea Fisheries Development and Coordinating Programme. Jakarta, Indonesia, 6 November 1974. Rome, FAO, 1974. 22p. |
| SCSP: | 76/3 | REP | Report of the second session of the Coordinating Committee of the South China Sea Fisheries Development and Coordinating Programme. Manila, 9 April 1976. 16p. |
| SCSP: | 77/4 | REP | Report of the third session of the Coordinating Committee of the South China Sea Fisheries Development and Coordinating Programme. Manila, 24–25 February 1977. 19p. |
| SCSP: | 77/5 | REP | Report of the fourth session of the Coordinating Committee of the South China Sea Fisheries Development and Coordinating Programme. Manila, 11–12 October 1977. 21p. |
WORKSHOP REPORTS
| SCS/GEN/74/1 | Report of the workshop on planning and coordination of resources survey and evaluation in the South China Sea. 28 August to 4 September 1974. Manila, South China Sea Fisheries Programme, 1974. 197p. |
| SCS/GEN/76/2 | Report of the workshop on the fishery resources of the Malacca Strait. Part I. Jakarta, 29 March to 2 April, 1976. Manila, South China Sea Fisheries Programme, 1976. 89p. |
| SCS/GEN/76/3 | Report of workshop on legal and institutional aspects of fishery resources management and development. 5–8 April 1976. Manila, South China Sea Fisheries Programme, 1976. 95p. |
| SCS/GEN/76/4 | Report on the training workshop for field enumerators of the Bureau of Fisheries and Aquatic Resources - Philippines. 22–31 March 1976 by D. Chakraborty and H. Wheeland. Manila, South China Sea Fisheries Programme, 1976. 32p. |
| SCS/GEN/76/5 | UNDP/FAO Training course on the management of small-scale fishery enterprises. Kuala Trengganu, Malaysia. 25 August to 26 September 1975. Rome, FAO, 1976. 14p. |
| SCS/GEN/76/6 | Report of the workshop on the fishery resources of the Malacca Strait - Part II. Jakarta, 29 March to 2 April 1976. South China Sea Fisheries Programme, 1976. 85p. |
| SCS/GEN/76/7 | Report of the BFAR/SCSP workshop on the fishery resources of the Visayan and Sibuyan area. Tigbauan, Iloilo, Philippines. 18–22 October 1976. Manila, South China Sea Fisheries Programme, 1976. 26p. |
| SCS/GEN/76/8 | Philippines - Report seminar on the fisheries statistics survey of the Bureau of Fisheries and Aquatic Resources. 23 July 1976. DNR/BFAR/SCSP, Manila, 1976. 17p. |
| SCS/GEN/76/9 | Report of the consultative group meeting on small-scale fisheries development in the South China Sea region. 13–15 December 1976. Manila, South China Sea Fisheries Programme, 1976. 140p. |
| SCS/GEN/77/10 | Report on the training workshop on fisheries statistics, Malaysia, 12–21 October, 1976. Manila, South China Sea Fisheries Programme, 1977. 27p. |
| SCS/GEN/77/11 | Report on the BFAR/SCSP workshop on fishery resources of the Sulu Sea and Moro Gulf areas, 25–29 April 1977, Cagayan de Oro. Manila, 1977. 58p. |
| SCS/GEN/77/12 | Report of the workshop on the demersal resources, Sunda Shelf. Part I. Nov. 7–11, 1977. Penang, Malaysia. Manila, South China Sea Fisheries Programme, 1978. (in preparation) |
| SCS/GEN/77/13 | Report of the workshop on the demersal resources, Sunda Shelf. Part II. Nov. 7–11, 1977. Penang, Malaysia. Manila, South China Sea Fisheries Programme, 1978. (in preparation) |
| SCS/GEN/77/14 | Joint SCSP/SEAFDEC workshop on aquaculture engineering (with emphasis on small-scale aquaculture projects) Vol. 1- General Report. Manila, South China Sea Fisheries Programme, 1978. |
| SCS/GEN/77/15 | Joint SCSP/SEAFDEC workshop on aquaculture engineering (with emphasis on small-scale aquaculture projects) Vol. 2- Technical Report. Manila, South China Sea Fisheries Programme, 1978. |
| SCS/GEN/77/16 | A layout of standard tables of fishery statistics in the Philippines. Manila, South China Sea Fisheries Programme, 1978. |
SCS MANUALS
| SCS Manuals No. 1 | Handbook on field identification of fishes, crustaceans, molluscs, shells, and important aquatic plants. Manila, South China Sea Fisheries Programme, 1978. 60p. |
PERIODIC PROGRESS REPORTS
| SCS/PR/74/1 | Woodland, A.G. Project progress report of the South China Sea Fisheries Development and Coordinating Programme. 1 July to 31 December 1974. Manila, South China Sea Fisheries Programme, 1974. 19p. |
| SCS/PR/75/2 | Woodland, A.G. Project progress report of the South China Sea Fisheries Development and Coordinating Programme. 1 January to 30 June 1975. Manila, South China Sea Fisheries Programme, 1975. 40p. |
| SCS/PR/75/3 | Woodland, A.G. Project progress report of the South China Sea Fisheries Development and Coordinating Programme. 1 July to 31 December 1975. Manila, South China Sea Fisheries Programme, 1975. 38p. |
| SCS/PR/76/4 | Woodland, A.G. Project progress report of the South China Sea Fisheries Development and Coordinating Programme. 1 January to 31 December 1976. Manila, South China Sea Fisheries Programme, 1976. 47p. |
| SCS/PR/77/5 | Woodland, A.G. Project progress report of the South China Sea Fisheries Development and Coordinating Programme. 1 January to 31 December 1977. Manila, South China Sea Fisheries Programme, 1977. 37p. |
| SCS/PR/77/6 | Woodland, A.G. Project progress report of the South China Sea Fisheries Development and Coordinating Programme. 1 July to 31 December 1977. Manila, South China Sea Fisheries Programme, 1977. 19p. |
FISHERIES TECHNICAL PAPERS
| SCS/DEV/73/1 | Woodland, A.G. et al. The South China Sea Fisheries: a proposal for accelerated development. Rome, FAO, 1974. 162p. |
| SCS/DEV/73/2 | Yamamoto, T. Review of marine fishery statistical systems in countries bordering the South China Sea, and proposals for their improvement. Rome, FAO, 1973. 46p. (Cover title: The South China Fisheries Statistical Systems) |
| SCS/DEV/73/3 | Aoyama, T. The demersal fish stocks and fisheries of the South China Sea. Rome, FAO, 1973. 80p. (Cover title: The South China Sea Fisheries Demersal Resources) |
| SCS/DEV/73/4 | Kume, S. Tuna resources in the South China Sea. Rome, FAO, 1973. 18p. |
| SCS/DEV/73/5 | Ling, S. Status, potential and development of coastal aquaculture in the countries bordering the South China Sea. Rome, FAO, 1973. 51p. (Cover title: The South China Sea Fisheries Aquaculture Development) |
| SCS/DEV/73/6 | Menasveta, D. et al. Pelagic fishery resources of the South China Sea and prospects for their development. Rome, FAO, 1973. 68p. (Cover title: The South China Sea Fisheries Pelagic Resources) |
| SCS/DEV/73/7 | Mistakidis, M.N. The crustacean resources and related fisheries in the countries bordering the South China Sea. (Cover title: The South China Sea Fisheries Crustacean Resources) |
| SCS/DEV/73/8 | Ruckes, E. Fish utilization, marketing and trade in countries bordering the South China Sea - status and programme proposals. Rome, FAO, 1973. 33p. (Cover title: The South China Sea Fisheries Marketing and Trade) |
| SCS/DEV/73/9 | Doucet, F.J. et al. Institutional and legal aspects affecting fishery development in selected countries bordering the South China Sea. Rome, FAO, 1973. 32p. (Cover title: The South China Sea Fisheries Institutional Legal Aspects) |
FAO species identification sheets for fishery purposes. Eastern Indian Ocean (Fishing area 57) and Western Central Pacific (Fishing area 71). Rome, FAO, 1974. 4 vols.
(ADB/FAO Market Studies)
| SCS/DEV/76/11 | Development potential of selected fishery products in the regional member countries of the Asian Development Bank. Manila, South China Sea Fisheries Programme, 1976. 107p. |
| SCS/DEV/76/11 (Appendix 1) | Fishery country profiles. Manila, South China Sea Fisheries Programme, 1976. 173p. |
| SCS/DEV/76/12 | The international market for shrimp. Manila, South China Sea Fisheries Programme, 1976. 105p. |
| SCS/DEV/76/13 | The international market for tuna. Manila, South China Sea Fisheries Programme, 1976. 69p. |
| SCS/DEV/76/14 | The international market for crab. Manila, South China Sea Fisheries Programme, 1976. 49p. |
| SCS/DEV/76/15 | The international market for lobster. Manila, South China Sea Fisheries Programme, 1976. 46p. |
| SCS/DEV/76/16 | The international market for cephalopods. Manila, South China Sea Fisheries Programme, 1976. 95p. |
| SCS/DEV/76/17 | The European canned fish market: Prospects for Rastrelliger spp. Manila, South China Sea Fisheries Programme, 1976. 56p. |
TECHNICAL REPORTS CONTRIBUTED TO SYMPOSIA/MEETINGS, ETC.
Rabanal, H.R. 1975 FAO activities in inland fisheries and aquaculture with particular reference to Asia and the Far East. Manila, South China Sea Fisheries Programme. 17p. (Contributed to the First Fisheries Research Congress, Philippine Council for Agriculture and Resources Research, 7–10 March 1975, Legaspi City, Philippines)
Rabanal, H.R. 1975 Preliminary report on the Macrobrachium fishery in the Indo-Pacific region. Manila, South China Sea Fisheries Programme. 20p. (Contributed to the International Conference on Prawn Farming, Vung Tau, Vietnam, 31 March–4 April 1975)
Rabanal, H.R. Distribution and occurrence of milkfish Chanos chanos (Forskal). Manila, South China Sea Fisheries Programme, 1975. 18p. (Contributed to the National Bangus Symposium. Manila, 25–26 July 1975)
Rabanal, H.R. 1976 Mangrove and their utilization for aquaculture. Manila, South China Sea Fisheries Programme. 20p. (Contributed to the National Workshop on Mangrove Ecology held in Phuket, Thailand, 10–16 January 1976)
Rabanal, H.R. 1976 Report of project identification mission to Bangladesh on inland fisheries and aquaculture. Manila, Asian Development Bank. 56p.
Rabanal, H.R. 1976 Aquaculture 1976: Focus Southeast Asia. Manila, South China Sea Fisheries Programme. 12p. (Talk delivered at the National Convention of the Federation of Fish Producers of the Philippines, Iloilo City, 26 August 1976)
Simpson, A.C. 1976 Some proposals for research related to the understanding of mangrove ecology and the utilization of mangrove areas. Manila, South China Sea Fisheries Programme. 10p. (Contributed to the National Workshop on Mangrove Ecology held in Phuket, Thailand, 10–16 January 1976)
Cook, H.L. 1976. Some aspects of shrimp culture research with particular reference to Philippine species. Manila, South China Sea Fisheries Programme. 7p. (Contributed to the Philippine Council for Agriculture and Resources Research (PCARR) Fisheries Workshop, Subic, Zambales, Philippines, 15–17 January 1976)
Rabanal, H.R. 1976 The resources in inland waters: their utilization and management. Manila, South China Sea Fisheries Programme. 21p. (Talk delivered before the Phi Sigma Biological Society as a contribution to the Deogracias V. Villadolid Memorial lecture series. Manila, Philippines, 26 November 1976)
Rabanal, H.R. 1977. Aquaculture in the Philippines. Manila, South China Sea Programme. 15p. (Talk delivered before the United States Peace Corps Volunteers, Los Banos, Laguna, Philippines - 11 January 1977)
Rabanal, H.R. 1977 Aquaculture in Southeast Asia. Manila, South China Sea Fisheries Programme. 10p. (Paper contributed to the Fifth FAO/ SIDA Workshop on Aquatic Pollution in relation to Protection of Living Resources. Manila, Philippines, 17–27 February 1977)
Simpson, A.C. 1977 Fisheries research and development in the Philippines: Some recommendations with special reference to resource management. Manila, South China Sea Fisheries Programme. 16p.
Rabanal, H.R. 1977. Aquaculture management. Manila, South China Sea Fisheries Programme. 12p. (Contribution to the BFAR/FAO-UNDP Training of Regional Trainors in Aquaculture. Lucena, Quezon, Philippines, 19 September to 27 October 1977)
Rabanal, H.R. 1977 Recent trends in aquaculture. Manila, South China Sea Fisheries Programme. 13p. (Paper contributed to the Seminar/ Workshop for Fishery Schools' Administrators, conducted by the Bureau of Fisheries and Aquatic Resources, Manila, Philippines, 24–28 October 1977)
Rabanal, H.R. 1977 Forest conservation and aquaculture development of mangroves. Manila, South China Sea Fisheries Programme. 15p. (Paper contributed to the International Workshop on Mangrove and Estuarine Area Development for the Indo-Pacific Region. 14–19 November 1977, Manila, Philippines)
