1. INTRODUCTION
Bangladesh has vast fishery potentials in the form of rivers, beels, haors, baors, ponds, dighis, lakes and estuaries. But because of overexploitation and negligence in the past years fish production from these waters has declined and nowadays fish has become scarce. As a matter of fact, most of the production used to come from the natural waters and there has been little advance in aquaculture. At present urgent need has arisen to increase fish production through different methods of culture and management. Therefore, the second five year plan (SFYP) proposed to take all possible measures to maximize utilization of water resources for increasing the production of fish. It also proposes to develop pen culture in an area of approximately 62 000 ha of water and cage culture in an area of approximately 400 ha of water.
1 Deputy Assistant Director and Demonstrator, Directorate of Fisheries, Bangladesh.
2. POTENTIALS FOR AQUACULTURE
According to some estimates the potential area in the coastal belt extends over 628 780 ha of mangroves/tidal flats. The inland waters suitable for aquaculture consists of about 76 518 ha of ponds/tanks, 293 117 ha of ox-bow lakes and about 90 000 ha of Kaptai Lake. Besides, there are about 2 834 008 ha of paddy fields which get inundated during the monsoon season retaining water for 4–5 months and can be utilized for profitable fish culture. Aside from big water bodies like lakes, rivers, haors, baors, and other bodies offer scope for fish culture in pens and cages. It is estimated that the haors, baors and other low lying water masses in the country which are potential areas for fishpen development cover approximately some 260 000 ha. If 5 percent of the estimated area may be allotted for the development of fishpen aquaculture project and assuming further that one acre of fishpen may produce a yield of 15 metric tons of fish per ha per year, this means that the fishpen fishing industry may be able to contribute some 540,000 metric tons of fish annually. Kaptai Lake which covers an area of 90 000 ha can also be utilized for fish cage culture development. In this lake the maximum depth is 46 m. At present the annual catch is about 2 500 metric tons. The lake is capable of supporting additional fish production of about 180 000 metric tons through establishing fish cages. The types of waters having fish production potentials in Bangladesh are:
| Types of water | Water area (hectares) | |
| 1. | Rivers and tributaries | 938 753 |
| 2. | Estuaries | 182 996 |
| 3. | Natural depressions like beels, haors and ox-bow lakes (called baors) | 293 117 |
| 4. | Kaptai Lake | 90 000 |
| 5. | Ponds, tanks and dighis | 76 518 |
| 6. | Inundated paddy fields which remain under water for 4–6 months | 2 834 008 |
| Total | 4 415 392 |
3. PRESENT STATUS
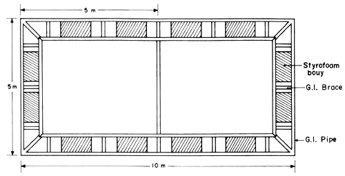
The raising of fish in pens and cages is a new method and system of aquaculture in Bangladesh. It is still in the initial stage of development although in some countries of Southeast Asia, raising of fish in pens and cages is well established. The Directorate of Fisheries, under an approved project, the Bangladesh Aquaculture Development Project (supported by the AsDB) is going to promote fish cage culture development at Kaptai Lake comprising an area of 400 ha and pen culture in the suitable water areas or baors comprising an area of 100 ha in the districts of Dacca, Kushtia and Sylhet. In order to demonstrate the fishpen and cage culture practices, two demonstration fishpens, one in Dhanmondi Lake, Dacca (1/4 ha) and the other in Bahadurpur baor, Jessore (1/2 ha) have been constructed and stocked with Indian major carps and Chinese carps in the month of June 1981. The pen in Dhanmondi Lake have been stocked with 10 000 fry (Catla = 3 000, Rohu = 3 000, mrigal = 3 000 and silver carp = 1 000); Bahadurpur baor has been stocked with 15 000 fry (Catla = 4 000, rohu = 4 000, mrigal = 4 000, silver carp = 1 500 and grass carp = 1 500). The average sizes of fry were 2–3 inches in length. The materials used for the fishpens are bamboo for posts and knotless nylon nets for fencing. The fish will be harvested after six months' period of culture. The fishes are being fed with supplementary feeds (wheat bran and mustard oil cake) at the rate of 5 percent of the total body weight.
Fish cage culture was introduced in early February 1981. Two demonstration fish cages, one fixed and one floating have been constructed at Dhanmondi Lake, Dacca. The size of each of the cagesis 7 × 4 × 4 m. The materials used for the frame are bamboo poles (5 mm dm) and knotless nylon net of mesh size 1/4 inch for the enclosure. In the floating cage, the floating devices are iron drums of 200-liter capacity. In the bottom corners, four iron sinkers (10 kg each) have been tied by nylon rope for sinking the net. The fixed cage has been stocked with Indian major carps, common carp and silver carp fingerlings (Catla = 100, rohu = 100, mrigal = 100, common carp = 100 and silver carp = 100) with average sizes of 2–3 inches. Mustard oil cake and wheat bran are being used as supplementary feeds every morning at the rate of 5 percent of the total body weight. The fish will be harvested after six months of culture. In the floating cage where T. nilotica is being cultured, so far three crops have been harvested in 181 days and gave a production of 87.6 kg. Computation gives a production of 31.29 metric tons per ha in about six months time. Mustard oil cake and wheat bran at the rate of 5 percent of the body weight have been used as feeds once a day.
4. FUTURE DEVELOPMENT PROGRAMME
Culture of fish in pens and cage is a new innovation in Bangladesh. But it is no doubt that the potential for fishpen and cage culture in Bangladesh is high because of the presence of vast inland water resources which could be tapped for fish production. The Second Five Year Plan (SFYP) proposes to develop pen culture in an area of approximately 152 000 ha of water to produce about 740 000 tons of fish. Initially, for the first year of the Second Five Year Plan, the Government has envisaged to develop 100 ha of fishpens comprising about 20 ha in the Dacca Canal, 40 ha in Kustia baors and 40 ha in Sylhet baors. Fish cage development has been proposed to be put up in Kaptai Lake comprising initially some 400 ha to produce an additional 4 800 tons of fish annually. Development, therefore, of the haors, boars and lakes for fishpen and cage aquaculture will most likely ensure a steady supply of fish to meet the local needs of the majority of the population and likewise to improve income capacities of the fishermen and fish farmers which in the long run might be liberated from poverty.
TERMINOLOGY TERMINOLOGY
Pond/tank - A pond is a body of open and standing water with aquatic plants, having shallow depth, occupying a basin and lacking continuity with sea and it does not stratify thermally.
Baors and ox-bow lakes - Baors and ox-bow lakes are parts of one flowing river, either disconnected from the mainflow or gets connected only during the monsoon season through small canals which dry up in summer.
Beels - Land depression in haors and other areas. Areas extend in the monsoon season but shrink in the dry season.
Dighis - Comparatively bigger ponds which are artificial water reservoirs excavated for domestic, social and fish production purposes.
Haors - Extensive low lying areas that go underwater during the monsoon season and reappear during the dry season.
Lake - Any large sheet of standing water occupying a basin is called a lake. It should be without bank and more or less plain to the surrounding ground and may be difficult to control.
Estuary - A body of water in which river water mixes with measurably diluted sea water.
Stream - A uni-directional flow of mass of water with its load moving in a more or less definite pattern and following the course of least resistance towards a lower elevation.
1. INTRODUCTION
Indonesia consists of more than 13 000 big and small islands and many straits and bays among which are potential areas for mariculture. Geographically located between 95° to 140°E and 5°N to 11°S, Indonesia has a tropical climate.
Tropical climate is suitable for many kinds of living aquatic sea resources to grow like seaweed, shellfish and finfish. Marine finfish and shellfish amenable for culture are found in most parts of this region, but until now some of these species such as grouper (Epinephelus sp and Plectropomus spp), rabbitfish (Siganus spp) and green mussel (Mytilus sp) are still exploited from the natural waters along the coast and estuarine area.
According to the study on finfish cage culture and its recent development, finfish and shellfish culture are considered as activities which could be developed in Indonesia. Nowadays, the Government has given emphasis on the development of cage culture for finfish. Pilot projects are underway in Riau Archipelago, West Java and other provinces.
2. PRESENT CONDITION
Fish cage culture for grouper (kerapu merah) has been practised by fishermen at Bintan Island (Riau) since 1980. Wooden cages are constructed under the houses, and netting is placed inside this structure. This activity is an additional source of income for the fishermen.
In its development programme, the Government is conducting an overall survey on mariculture potentials. It is expected that adequate information and data can be obtained through: (a) interview with fishermen/local fishery officers; (b) field observation; and (c) development activities in mariculture.
Fishermen can provide information on fish species that are suitable for culture, their distribution, type of gear(s) and equipment used for capture, season and time of fishing and marketing the production. Information on potential areas, natural conditions and problems confronting the development of cage culture can be obtained from direct field observations.
3. ACTIVITIES AND DEVELOPMENT PROJECTS
The Directorate General of Fisheries has been carrying out a fish cage pilot project near Dompak Island.
The species under cultivation is the grouper, of which fingerlings with initial weight of 100–150 g are raised in cages. The stocking rate is 30 fish/m3. It is expected that the yield will be 600–700 g/fish after culturing for about six months.
The Directorate General of Fisheries also carries out green mussel culture in Banten Bay (West Java). This project will start in March 1982. The first spatfall's season is from April to May and the second season is in September.
The culture methods are: (1) web culture; (2) pole culture; and (3) floating culture.
In formulating such pilot projects especially for the methods and techniques of culture, consultation and through discussions were made with the Marine Fisheries Research Institute and university(ies).
The Central Government has also provided support and assistance to the provincial mariculture projects in the province of Riau for finfish cage culture, and in Jakarta for green mussel culture.
For the development of finfish and shellfish culture in Indonesia, the Directorate General of Fisheries has allocated a budget of Rp 150 000 000 (approximately US$ 250 000) for 1982/1983 fiscal years.
A UNDP-financed seafarming project is now under consideration.
1. INTRODUCTION
The province of East Kalimantan (Indonesia) covers an area of 20 000 km2 with a population density of 4 persons/km2. The temperature range is 15°C to 38°C. Land elevation from sea level varies from 0–1 000 m. The total fish production in 1976 was 60 000 tons, 38 percent of which has been derived from the freshwater capture fishery from lakes and riverine areas. There are three big natural lakes, namely Semayang Lake, Melintang Lake and Jempang Lake with a total area of 40 000 ha. The yearly fluctuation of fish is quite significant. During the rainy season the average depth of the lake is 10 m while in the dry season it comes down to 0.5 m.
Recent introduction and experimentation on fish cage culture has shown that this method is applicable to the region; and all the three lakes are considered suitable for cage culture development. In 1976 soon after its successful introduction, the number of cages reached a total of 1 000 units at the end of the year. This number has increased by 3 600 units totalling to 4 600 units in 1977, and at the end of 1980 there were 10 000 units in operation.
2. FISH CAGE CONSTRUCTION
The materials used for construction of the cages are locally available, and are easily obtained at relatively cheap prices. The cages are very simple in design. A typical one is a box-shaped cage made of hard wood with dimensions of 4 × 2 × 2 m. Round logs are used as floats and bound to the cage with rattan. This construction is expected to last for 10 years.
The construction cost for one cage unit is about Rp 50 000 (US$ 79.40).
1 Staff Member, Fisheries Service of East Kalimantan, Directorate General of Fisheries, Indonesia.
3. FISH PRODUCTION
The species of fish which are usually cultured in East Kalimantan are Ophiocephalus sp and Oxyeleotris marmoratus. As food fish, these two species are preferred by consumers, and the market price is good. Another important application of fish cage culture is the production of ornamental fish for export.
Normally the stocking rate per cage is 1 000 fingerlings. Fish are fed with chopped trash fish at a rate of 5–10 kg/cage/day, given twice a day. After six months of cultivation, fish have grown to marketable size of around 600 g/fish. The average production per cage is estimated at 600 kg with a price of Rp 1 000/kg ($1.50/kg).
| 4. | OPERATIONAL COST | |
| 1 000 fingerlings × Rp 25 | Rp 25 000 | |
| Fish feed | 90 000 | |
| 10 000 | ||
| Depreciation of cage | 2 500 | |
| Labor cost | 180 000 | |
| Others | 10 000 | |
| Total | Rp 317 500 | |
| Profit (based on one cage operation) | ||
| Production (600 kg × Rp 1 000) | Rp 600 000 | |
| Operation cost | -317 500 | |
| Net profit | Rp 282 500 |
5. CONCLUSION
In East Kalimantan, it has been found that cage culture in open water can be an important source of income for fishermen.
1. INTRODUCTION
One of the districts in Riau Province is called the Riau Archipelago. This region consists entirely of islands, 1 254 in all in the Riau Archipelago, extending over a surface of more than 200 000 km2.
Fishery activities, namely catching and marketing operations are predominantly performed in the western part of the district and are notably influenced by neighbouring Singapore. Singapore's market and auction play an important role in establishing and dictating the price of exportable fish from this area. However, in general the price in Singapore is better than in domestic market, especially for grouper and seabass, white pomfret, etc.
In the waters around Bintan Island, the biggest island in the western part of Riau Archipelago, seaweed culture and fish culture in the brackishwater pond has been experimented on, but so far, results have not been encouraging.
Cage culture of grouper and seabass have been introduced and exploited by ten traditional fishermen since 1980 at the south of Bintan Island and at the Senayang sub-district. Profit is obtained by fishermen because of the abundance of fingerlings and the low price of fresh trash fish for food.
For the developments of cage culture in Riau Archipelago, a pilot project financed by the Directorate General of Fisheries and the local government for extension purposes is being undertaken.
In the future it is foreseen that natural stocks can no longer supply local needs. Thus, plans for induced breeding of grouper and seabass will have to be considered.
1 Chief, Fisheries Service of Riau Archipelago District, Riau Province, Indonesia.
2. CAGE CULTURE OF GROUPER AND SEABASS
In the ten sites for cage culture, the fishermen grow mainly the grouper (Epinephelus tauvina and Plectromus leopardus) and seabass (Lates calcarifer). These species have good prices both in Tanjung Pinang and in Singapore. In Tg. Pinang the fishermen can sell E. tauvina at Rp 3 000/kg P. leopardus at Rp 3 950/kg, L. calcarifer at Rp 2 500/kg at fish sizes of 600–700 g.
The fishermen stock 150–200 g fingerlings in cages that are collected by traps. They are bought at Rp 250 each. The fish are harvested after five to six months. The fishes are fed with low grade trash fish. They can be obtained at a price of Rp 150/kg. According to experience, 800 groupers in a cage are fed with 3 000 kg fresh trash fish till harvest.
Usually, cages are surrounded by closely attached wood or palm fronds to discourage poachers and pests. These materials can be obtained in the vicinity of the islands and the net for cages is also available in the local market.
The fishermen spend about Rp 600 000 for one cage with dimensions of 3 × 4 × 6 m. By investing Rp 1 250 000, excluding expenditure for labour, the fishermen can obtain a total income amounting to Rp 1 600 000 with each harvest. The fish mortality is about 25 percent.
3. CONCLUSIONS AND PROSPECT OF DEVELOPMENT
Fingerlings of grouper and seabass can be collected at breeding grounds in the vicinity of the cultivation sites by the fishermen themselves between March to August. If fingerlings are not cultured in cages, they will be sold as fresh fish or low priced fish. Fish cage culture is more profitable than openwater fishing.
Hatchery efforts, however, for the future should be seriously considered to ensure the continuous supply of fingerlings for large-scale cage culture operations.
1. INTRODUCTION
The Riau Archipelago includes a group of islands located southwest of Singapore at the juncture of the Strait of Malacca and the South China Sea. The two largest islands, Bintan (47 × 50 km) and Batam (23 × 30 km) face the Singapore Strait which is less than 20 km wide.
The climate of the Riau Archipelago is uniformly warm with average air temperature of 27°C from October through March and 28°C from April through September. Rainfall is heavier during the north monsoon season from September-March but some rain occurs during the rest of the year. Although winds are moderately strong during the monsoon season, tropical typhoons do not occur in this area.
The Riau group includes many small islands separated by narrow, usually deep channels resulting in an extensive shoreline. Since many islands are high, or covered with large mangroves along the shore, many channels and bays are protected from high winds.
Protected channels 5–15 m deep could well be utilized for culture of fish in floating net cages (pens) or for mollusc culture using rafts. Strong tidal currents occur in most narrow channels because of the relatively high tidal range (1.7 m at Bintan Island) ensuring adequate dissolved oxygen for fish farming.
Several species of groupers and rabbitfish with mariculture potential occur in the Riau Archipelago. Commercially practicable methods have been developed for growing groupers in floating or fixed net pens or cages from seed (100–150 g) to market size (600–900 g) in about six months. Six grouper farms have begun operation in the Riau Islands. The most common species in the cages is Plectropomus leopardus.
Several authors have reported about the mariculture potential in the Riau Archipelago (Chan, 1981; and Glude et al., 1981). Research experience in groupers and rabbitfish cage culture in Indonesia was reported by Ismail, 1976.
1 Sub-Research Institute for Marine Fisheries, Tanjung Pinang, Riau, Indonesia.
2. CAGE CULTURE OF GROUPERS
2.1 Species of groupers
A fish for culture must satisfy a number of basic selection criteria:
Its optimal requirements for survival should be met by the environmental conditions at the sites chosen for its culture.
It must be hardy, capable of withstanding handling and other stresses arising from being impounded.
It must have a relatively high average daily weight increment; and
It should fetch a consistently high market value throughout the year.
Several species of groupers with mariculture potential occur in the Riau islands. Serranids of the genera Epinephelus and Plectropomus are caught by commercial fishermen and are sold in Tanjung Pinang or transported directly to Singapore. These genera are in high demand at high prices.
The species for experiment are Epinephelus tauvina, E. malabaricus, E. merra, Plectropomus maculatus and P. leopardus.
2.2 Experimental procedure
Grouper farming has started in the province but the major problems are supplies of feed and seed. The following projects are needed:
Conduct a resource survey to locate concentrations of juvenile (100–150 g) groupers. This should provide a basis for estimating the availability of seed as a guide for planning the expansion of grouper farming in the Riau Islands.
Develop better methods for capturing juvenile groupers.
Search for smaller juveniles or fry and if found, develop methods for capture and for growing them to juvenile size.
Evaluate the availability of low prices of scrap fish that could be used to feed grouper in cages. Develop methods of capture, handling and perhaps processing into fish silage for storage.
Provide extension services to present grouper farmers in Riau Islands to help them improve culture methods, and facilities and reduce the cost production.
2.3 Location of experiment
Site location considers tidal currents, freshwater inflow, wind and wave direction and intensity during the south monsoon season (April-September) and the north monsoon season (October-March).
The locations are around Bintan Island, Mantang/Siulung Island, Kelong Island, Dompak Island and Bintan Bay (see Fig. 1).
3. CAGE CULTURE OF RABBITFISH
3.1 Species of rabbitfish
Several species of siganids are captured by Riau fishermen using traps and nets. Siganus canaliculatus were sold at Rp 2 000/kg at Tanjung Pinang in July 1981, but S. guttatus, S. javus and S. chrysophilus were sold for Rp 500/kg and S. virgatus as low as Rp 200/kg. During the Chinese New Year holidays in January or February, S. canaliculatus reportedly may bring Rp 7 000/kg in Singapore.
Siganids have been grown in tanks and cages with mixed results. In some places high mortality of large fish have occurred but the causative factors are unknown.
The fish farmer normally buys seed from fishermen and grows them in a nylon mesh enclosure, using boiled rice and other scraps for food, and sells them in Singapore during the Chinese New Year holidays. Even with high mortalities, the farmer have found siganid culture to be profitable.
3.2 Experimental procedure
The major problems for siganld farming in Riau Islands are heavy mortality and availability of suitable feeds. These problems must be evaluated before large-scale efforts are made to develop siganid farming. The following projects are needed:
Monitor growth and mortality of siganids in one or more commercial farms.
Evaluate water quality at siganid farms by periodic measurement of dissolved oxygen, ammonia, pH, temperature, salinity and other parameters.
Record feeds used since the fish may be susceptible to diseases and other adverse conditions because of poor nutrition. Try changes in type and quantity of feed.
3.3 Location of experiment
Site location should consider tidal currents, freshwater inflow, wind and wave direction and intensity during the south monsoon season (April-September) and the north monsoon season (October-March).
The locations are around Bintan Island, Mantang/Siulung Island, Kelong Island, Dompak Island and Bintan Bay (see Fig. 1).
4. REFERENCES
Chan, W.L. 1981 The culture of marine finfishes in floating net cages in Indonesia. Project FAO/UNDP/INS/80/005 report SEP/81/WP/1, Jakarta. 39p.
Glude, J.B., I. Santika and A. Sudradjat. 1981 The potential for seafarming in the Riau Archipelago District of Indonesia. Draft report. 67p.
Ismail, W. 1976 Culture experiment on siganid, Siganus virgatus and groupers, Epinephelus spp in the lagoon of Pari Island, Jakarta Bay, Marine Fisheries Research Report 1 (1976). 1–36p In Indonesian.
| Location | S/B1 | Temperature (°C) | Salinity (ppt) | pH (units) | Dissolved oxygen (ppm) | Nitrogen (mg/l) | Nitrate (mg/l) | Total phosphate (ppm) |
| Bintan Island - Sungai Jang | ||||||||
| At grouper farm | S | 26 | 28 | 6.8 | 5.0 | 0.54 | 2.32 | <0.25 |
| At grouper farm | B | 26 | 28 | 6.8 | 5.0 | 0.42 | 1.81 | <0.25 |
| Middle Selat Dompak | S | 29 | 30 | 7.2 | - | 0.54 | 2.32 | <0.25 |
| Bintan Island - Kawal | ||||||||
| In crab pond | S | 30 | 27 | 7.2 | - | 0.36 | 1.55 | <0.25 |
| Offshore at fish trap | S | 29.5 | 32 | 7.3 | - | 0.20 | 0.86 | <0.25 |
| Bintan Island - off Kijang | ||||||||
| Near Kijang Village | S | - | - | - | - | 0.54 | 2.32 | 0.25 |
| Red buoy - Koyan Island | S | - | - | 7.2 | - | 0.17 | 0.73 | <0.25 |
| Mantang Island - Kekip Is. | ||||||||
| In south grouper pen | B | 30 | 30 | 7.2 | 5.0 | 0.78 | 3.35 | 0.25 |
| In north grouper pen | B | - | - | - | 5.0 | - | - | - |
| At fish trap | S | 30 | 32 | 7.3 | - | 0.46 | 1.98 | <0.25 |
| Bintan Island - Tanjung Pinang | ||||||||
| At shipyard in harbour | S | 29 | 26 | 6.9 | - | 0.40 | 1.72 | <0.25 |
| At mouth of Sungai Tumpat | S | 29.5 | 19 | 6.5 | - | 0.57 | 2.45 | 0.45 |
| Bintan Island - Telok Bintan | ||||||||
| N. of Los Island | S | 30 | 30 | 7.1 | - | 0.40 | 1.72 | <0.25 |
| S. of Ujan Island | S | 30 | 29 | 7.5 | - | 0.17 | 0.73 | 0.45 |
| Channel N. of Ujan Island | S | 30 | 28 | 7.2 | - | 0.24 | 1.03 | <0.25 |
| E. of Los Island | S | 30 | 30 | 7.1 | - | 0.24 | 1.03 | <0.25 |
Source: Glude et. al., 1981

Fig 1 Sites surveyed for seafarming - Binton - Montang area, Kepuluau Riau
1. INTRODUCTION
Aquaculture or the rearing of aquatic organisms is still at an early stage of development in Malaysia. However, in recent years with the declining catch rates from coastal and inland fisheries, especially on the West Coast of the Peninsula, and the technical advances in the field of aquaculture, there has been significant aquaculture expansion and development in the country.
The over-exploitation of coastal fish stock, the uncertainty about economic viability of inadequately known offshore fish resources, and also the very high capital and operating coasts involved in distant water fishing, has also led to a growing expectation of aquaculture as a means of producing more and more of the supplies that will be needed in the coming years.
Cage culture was first introduced into Malaysia in August 1977, when a Pilot Project was set up at Kuala Setiu Lagoon, Besut, Trengganu, which is situated on the east coast of the Peninsula. This project was executed by the Food and Agriculture Organization (FAO) but funded by the Canadian International Development Agency (CIDA), the United Nations Development Programme (UNDP) and the Government of Malaysia.
This Pilot Project was renamed the Integrated Fisheries Development Project in 1979 and since then short courses have been given to fish farmers throughout Malaysia. Presently, this is the only project in Malaysia which is carrying out training of finfish culture in floating cages.
2. CAGE CULTURE OF COASTAL FINFISH IN BRACKISHWATER
Cage culture of coastal finfish as has been stated is a recent development in Malaysia. It is now carried out in a few areas, which are:
Langkawi Island, Kedah;
Kuala Setiu Lagoon, Trengganu;
Penang Island; and
Straits of Johore, Johore.
1 Fisheries Administrative Officer, Department of Fisheries, Ministry of Agriculture, Malaysia.
The major species cultured are:
Ikan Kerapu (grouper, Epinephelus spp)
Ikan Siakap (sea perch, Lates calcarifer)
Ikan Dengkis (rabbitfish, Siganus javus)
Ikan Tanda (fingermark bream, Lutjanus russelli)
As both grouper and sea perch are carnivorous, they are fed with low-grade trash fish; owing to the high price for both grouper and sea perch, the culture operation can be quite profitable. Grouper and sea perch can withstand low salinities, and sea perch can even be raised in freshwater, so they are most suitable for culture in brackishwater cages.
The grouper and sea perch fry are both collected from the wild by using beach seine nets. The fry supply for both of these species is currently inadequate to sustain any large scale culture. Recently, however, the sea perch has been successfully bred in Thailand, so the fry is imported from there to overcome the shortage.
During the months of January to March and September to October on the east coast of Peninsular Malaysia, grouper fry can be collected in grassy muddy bottom areas at river estuaries. The salinity in these areas usually ranges from 21–30 ppt. The occurrence of sea perch fry in the east coast of Peninsular Malysia has no marked peak season; it can be collected in small quantities throughout the year.
The growth rate for grouper and sea perch is 0.6 kg in 10–12 months and 1.3 kg in one year, respectively, if provided with extraneous feeding using trash fish.
3. CAGE CULTURE OF FRESHWATER FINFISH
There are large impoundments of freshwater bodies in the country, where fishpens, enclosures, or net cages can be set up for the culture of various species that are commonly cultured in ponds.
Presently, Chenderoh Lake and Tasik Merah in Perak are the main areas where these culture systems are practiced. There is also small-scale culture being carried out in unused tin mining pools at various states in the west coast of Peninsular Malaysia.
The species that are commonly cultured in freshwater fish cages are:
Bighead carp (Aristichthys nobilis)
Silver carp (Hypophthalmichthys molitrix)
Grass carp (Ctenopharyngodon idellus)
Common carp (Cyprinus carpio)
Tilapia (Tilapia mossambica and Tilapia nilotica)
Ketutu (marble goby, Oxyeleotris marmoratus)
Rohu (Labeo rohita)
Kaluai (Osphronemus goramy)
3.1 Fry supply
The supply of freshwater fry is comparatively easy as breeding techniques have been developed for all the pond cultured fishes, although the fry of some species are still being imported.
Fry of several species, including common carp (Cyprinus carpio), sepat siam (Tricogaster pectoralis), temakang (Helostoma temminckii) and kaluan (Osphronemus goramy) are produced at fish breeding stations operated by the Fisheries Department in different parts of the country; these fry are distributed free to fish farmers.
Fry of the Chinese major carps like bighead (Aristichthys nobilis), grass carp (Ctenopharynodon idellus) and the jelawat (Leptobarbus hoevenii) are generally imported. However, recent successful attempts have been made in the induced spawning of the Chinese major carps at the fish breeding station in Bukit Tinggi, and even more recently at the Freshwater Fisheries Research Station (MARDI) at Batu Berendam, Malacca. The station has also been successful with the induced spawning of the rohu (Labeo rohita) and jelawat (Leptobarbus hoeveii) throughout the year, more or less.
4. CONSTRAINTS IN THE EXPANSION OF CAGE CULTURE
In the freshwater cage culture sector, there are no major constraints being faced presently, however, the immediate and crucial factor governing the expansion of coastal aquaculture is not the availability of suitable sites, but the scarcity of fry. All forms of coastal aquaculture in Malaysia at present depend largely on the availability of naturally occurring fish seeds in our waters.
To overcome the above problem, two fish hatchery stations are planned for Pulau Sayak, Kedah and Tanjong Demong, Besut, Trengganu. The latter one will be under the jurisdiction of the Besut Integrated Fisheries Development Project, and will be staffed by FAO fielded experts (biologist and technician).
Apart from establishing hatchery stations, research stations were also set up to carry out all aspects which relate to brackishwater fish farming. These stations are the Fisheries Research Institute in Glugor, Penang and the Brackishwater Aquaculture Research Station, situated in Gelang Patha, Johore; the latter is specializing in research related to finfish culture in brackishwater ponds and cages.
5. POTENTIAL FOR FUTURE DEVELOPMENT
There is considerable potential for the further expansion and development of aquaculture in Malaysia, and given the necessary input from both government and the private sectors, it is estimated that overall aquacultural production could be doubled within the next ten years.
The increase in aquacultural production would result from:
Improvements in the operation of existing culture systems;
Development of new sites for the existing culture system; and
Advent of fish hatcheries.
5.1 Improving existing culture practices
The production from existing culture operations or sites could be improved by adopting improved techniques; for example, supplementary feeding, control of pests, predators and diseases, and better stocking and manipulation of the stock.
As more fish farmers are trained at the fish culture training centers of the Fisheries Division, and as the culturists gain greater skills, the production from their culture operations will be considerably increased.
5.2 Opening up or developing new areas for aquaculture
Different aquaculture systems of cultured species require different sets of ecological conditions. The availability of suitable sites, free from environmental pollution for aquaculture is the main factor for successful development. In view of many sheltered coastal areas which are suitable for the setting up of rafts for the cage culture of coastal finfish, there is great potential for future development. In Peninsular Malaysia, there are also many unused tin mining pools which are ideally suited for cage culture of freshwater finfish.
5.3 Advent of hatcheries
With the establishment of the previously mentioned hatcheries, future development of aquaculture in Peninsular Malaysia is assured. Coupling this with vigorous training programmes and an effective government extension system, production will steadily increase and should act as an incentive for even more development.
6. CONCLUSION
In the face of diminishing returns from our heavily exploited natural fish resources, aquaculture, if given the necessary technical and financial input from both government and private sectors, can play an important role in the production of protein food, in generating employment opportunities, and in gaining foreign exchange for the country. Therefore, research and extension services, particularly in seed production and training of culturists and provisions for subsidies and credit facilities, need to be stepped up in order to ensure rapid aquaculture development.
1. INTRODUCTION
1.1 Background information
Cage culture of fish which was started in the Far East about a century ago is not an uncommon aspect of aquaculture nowadays. In some countries, the system is in the operational stage, that is, there is either a long traditional practice or the wider development has passed from an experimental stage to the current wide application by the private sector. Other countries are either in the initial stages or planning stages.
By definition, cage culture of fish consists of raising a group of fish from the juvenile stage to the commercial size in a volume of water enclosed on all sides, including the bottom, while permitting the free circulation of water through the “cage” culture. The most commonly reared species in cages include (i) in freshwater - primarily carps, Pangasius sp, Clarias sp, Tilapia, Ictalurus punctutus, Silurus glanis and Ophicephalus sp, (ii) in brackishwater - Salmo sp, Oncorhynchus sp, Seriola quinqueradiata and (iii) in marine species are mainly grouper, seabass, mullets, snapper and Penaeus.
For the cage construction, various materials are being used, ranging from locally available materials like bamboo and wood to manufactured items such as metal frames, styrofoam and plastic floats and netting.
Cage culture offers numerous advantages, especially if one considers that this system of production is practiced without any special arrangement in most water bodies. In water-filled excavation (old mines), in irrigation canals, and in undrainable ponds encumbered by the stumps and invaded by unwanted fish species, cage culture is probably the only practical and economical feasible method for production of fish. Similarly, cage culture can equally be applied other aquatic systems such as rivers, lakes, reservoirs, lagoons and coastal bays.
1 Freshwater Fish Culture Research Station (MARDI), Batu Berendam, Malacca.
1.2 Cage culture in Malaysia
Floating cage culture was first introduced into Malaysia in 1973 for intensive culture of the estuary grouper, Ephinephelus salmoides, in the Straits of Penang. Over these years, the system has proved to be technically feasible and economically viable. A production of 10 tons of grouper per year was achieved using a coastal area of half an acre. The technology has since been passed on to the fishermen through the Fisheries Department and MAJUIKAN (Fisheries Development Authority Malaysia) to culture marine and brackishwater fish species. However, little has so far been reported on cage culture of freshwater species in this country, although species such as the bighead carp, Aristichthys nobilis, silver carp, Hypopthalmichthys molitrix and marble goby, Oxyleotrix marmorata have been suggested as suitable species for cage culture.
Malaysia has about 15 466 ha of natural and artificial freshwater bodies, a large proportion of which is still to be exploited for fish culture. Most of our reservoirs and mining pools for example, are still not fully utilized for fish culture purposes; possibly because their surface areas are often too large or are too deep to be managed under conventional culture practices. However, with the use of floating cage culture, or pen culture as in case of shallower water bodies, the problems of management can be overcomed. Other than providing easier management, in terms of feeding and harvesting, cage culture of filter feeders in reservoirs help utilize, especially plankton which are considered a nuisance in water especially for drinking purposes. Assimilation of these plankton by the fish also help to significantly reduce or totally eliminate the feeding cost, depending on the type of fish cultured.
Being located in large water bodies, the chances of fish mortality due to fluctuations in the physicochemical properties of the water are quite remote as compared to conventional pond culture. As a result, less technology is involved in maintaining the quality of the rearing water.
Being an intensive fish rearing system, involving low technology, freshwater cage culture will no doubt play a significant role in the overall freshwater fish production of Malaysia.
2. PROGRAM OF RESEARCH IN CAGE CULTURE AT THE FRESHWATER FISH CULTURE RESEARCH STATION
2.1 Objectives
The research project on cage culture at the Freshwater Fish Culture Research Station was started in August 1978. The main objectives of this project are:
To conduct limnological studies on some selected lentic and lotic freshwater environments with respect to their suitability for fish cage/pen culture.
To study the viability of freshwater cage culture. Research includes the suitability of species for culture, cage/pen design and construction materials, nutrition and the economics of the system.
2.2 Plan of work and design
This project consists of several experiments that will be carried out in different aquatic systems such as rivers, irrigation canals, lakes, reservoirs, old mining pools and swamp areas. For each aquatic system, experiments will include:
Limnological studies
Physicochemical aspects of water quality
Biological - natural productivity of the water
Feasibility for cage culture
Cage - design and materials
Fish - species and stocking density
Feed - type of supplementary food and intensity of feeding
Diseases, parasites and predators
General maintenance practices
Economics of production
The project will be carried out in several stages as shown in Table 1. Some experiments will involve direct participation of farmers.
| Aquatic system | Year | |||||
| 1980 | 1981 | 1982 | 1983 | 1984 | 1985 | |
| (1) Reservoir | -----→ | -----→ | -----→ | |||
| (2) Irrigation canal | -----→ | -----→ | -----→ | |||
| (3) River | -----→ | -----→ | -----→ | |||
| (4) Old mining pool | -----→ | -----→ | -----→ | |||
| (5) Lake | -----→ | -----→ | -----→ | |||
| (6) Others | -----→ | -----→ | -----→ | |||
2.3 Project area
Cage culture projects were conducted in Durian Tunggal Reservoir Malacca, Tanjong Karang River Selangor and also in the Malacca River. Only the project in Durian Tunggal Reservoir was successful. In Tanjong Karang and the Malacca River, all fishes died after stocking because of poor quality of water.
The Durian Tunggal Reservoir is located in the hilly region of Malacca. It has a surface area of about 500 ha and depths ranging from 1–13 m. This four-year old reservoir was built with the main purpose of storing water for domestic consumption. Thus, the study in this water body was restricted to the culture of species that do not require supplementary feeding.
3. CAGE CULTURE OF BIGHEAD CARP (Aristichthys nobilis)
3.1 Cage design
The cage used for the study consists of a wooden framework 33.5 m long and 11.5 m wide, which is subdivided into twelve compartments by walkways about 0.5 m wide. The whole structure is buoyed up by 39 oil drums. The structure is anchored by six 30-kg concrete anchors. Cage net of 15-ply polyethylene 5 × 5 × 2.5 m, 25.4 mm mesh size was hung from each compartment. The net was made to stay in shape using weights tied to the four corners of the cage bottom. The effective underwater volume of each cage was 50 m3 or 5 × 5 × 2 m.
3.2 Culture methods
In the trial, bighead carp, a plankton feeder, was cultured for eight months at three stocking densities of 6, 12 and 24 fish/m3. Each stocking density was triplicated. In order to maintain free exchange of water into the cages, the nets were frequently cleared of fouling materials.
Monthly sampling of the weight gain by the cultured fish was carried out and analysis of variance was performed to compare differences among stocking densities.
3.3 Limnological study
The physicochemical properties of the water in Durian Tunggal Reservoir were determined using a Hach kit (DR-EL 2) for parameters such as temperature, dissolved oxygen, pH conductivity, alkalinity, hardness, turbidity, magnesium, calcium, sodium, potassium, iron, sulphate, chloride, nitrite, nitrate, ammonia, organic nitrogen and total nitrogen. The monthly water samples were taken from the southwest portion of the reservoir (Site 1) and from the northeast portion of the reservoir (Site 2).
Primary productivity of the reservoir was indirectly measured by determining the quantity of chlorophyll-a spectrophotometrically.
4. RESULTS AND DISCUSSIONS
4.1 Growth performance of the bighead carp in cages
Summary of the performance of the bighead carp cultured for eight months at the three stocking densities is presented in Table 2. Generally, the trial indicated that fish reared at lower stocking densities grew faster than fish cultured at the highest density. The highest average weight-gain obtained from fish stocked at 6, 12 and 24 fish/m3 were 1186.24 g, 741.57 g and 637.58 g, respectively.
4.2 Water quality of Durian Tunggal Reservoir
Results obtained from Sites 1 and 2 are presented as means in Table 3. There were no significant differences (P = 0.05) in terms of time series in all the parameters studied. Similarly, there were no distinct differences in terms of water quality between the southwestern and northeastern portions of the reservoir. Despite the low level in the ionic composition, water of Durian Tunggal Reservoir was found to be within the acceptable range for fish culture.
4.3 Preliminary economic analysis
The cost of constructing a unit of nine 5 × 5 × 2 m floating cages is given in Table 4.
The preliminary economic analysis for the cage culture of the bighead carp in the Durian Tunggal Reservoir is in Table 5.
5. CONCLUSION
Cage culture, especially in freshwater bodies, is a new aspects of aquaculture in Malaysia. Based on initial knowledge obtained from experiments carried out in Durian Tunggal Reservoir, there is no doubt that the system can be successfully applied in this country as those being achieved by other countries like the U.S.A and Japan. However, more research experiences are needed to solve both technical and social problems related to it.
| Stocking rate 1 | Replication | Initial ave. wt (g) | Final2 ave. wt (g) | Wt gain (g/day) | Survival rate (%) | Total production (kg) |
| 1 | 12.06 | 704.41 | 2.88 | 100.00 | 211.32 | |
| 6 fish/m3 (300/cage) | 2 | 12.06 | 1 198.30 | 4.94 | 99.00 | 352.31 |
| 3 | 12.06 | 1 092.85 | 4.50 | 100.00 | 324.24 | |
| (Ave.= 4.10) | (887.87)3 | |||||
| 1 | 12.06 | 435.83 | 1.78 | 81.67 | 213.56 | |
| 12 fish/m3 (600/cage) | 2 | 12.06 | 753.63 | 3.09 | 87.17 | 394.15 |
| 3 | 12.06 | 744.09 | 3.05 | 85.00 | 379.49 | |
| (Ave.= 2.64) | (987.20)3 | |||||
| 1 | 4.96 | 642.54 | 2.66 | 75.33 | 580.86 | |
| 24 fish/m3 (1 200/cage) | 2 | 4.96 | 406.66 | 1.69 | 78.25 | 381.85 |
| 3 | 4.96 | 419.60 | 1.74 | 83.75 | 421.70 | |
| (Ave.= 2.03) | (1 384.41)3 |
1 The productive underwater volume of each cage = 50 m3
2 Weight at 8-month culture period
3 Total production for 150 m3
| Parameter | Site 1 | Site 2 |
| Temp. (°C) - at 0.5 m | 30.99 ± 0.351 | 31.38 ± 0.221 |
| Do (ppm) - at 0.5 m | 8.09 ± 0.26 | 8.44 ± 1.45 |
| pH | 6.88 ± 0.10 | 6.36±0.11 |
| Conductivity (umhos) | 67.80 ± 9.16 | 50.40 ± 0.25 |
| Hardness (ppm CO3) | 5.33 ± 0.73 | 8.39±2.22 |
| Alkalinity (ppm CO3) | 18.08 ± 1.01 | 17.54 ± 1.56 |
| Mg (ppm) | 2.18 ± 0.13 | 4.17 ± 1.01 |
| Ca (ppm) | 2.29 ± 0.14 | 2.46 ± 0.75 |
| Na (ppm) | 1.91 ± 0.27 | 2.90 ± 0.89 |
| K (ppm) | 4.28 ± 0.33 | 4.36 ± 0.75 |
| Fe (ppm) | 0.07 ± 0.03 | 0.08 ± 0.04 |
| SO4 (ppm SiO) | 4.10 ± 0.36 | 9.10 ± 1.09 |
| PO4 (ppm) | 0.07 ± 0.03 | 0.14 ± 0.06 |
| Cl (ppm) | - | 18.52 ± 5.60 |
| NO2 (ppm) | 0.02 ± 0.00 | 0.47 ± 0.31 |
| NO3 (ppm) | 0.04 ± 0.02 | 0.19 ± 0.13 |
| NH3 (ppm) | 0.13 ± 0.03 | 0.42 ± 0.24 |
| Organic N (ppm) | 0.20 ± 0.16 | 0.68 ± 0.28 |
| Total N (ppm) | 0.39 ± 0.17 | 1.84 ± 0.13 |
| Turbidity (ppm SiO) | 24.40 ± 7.42 | 14.00 ± 8.01 |
| Secchi disc (cm) | 148.00 ± 11.17 | 135.20 ± 16.60 |
| Item | Quantity | Price/unit | Total cost | ||
| A. | Frame | ||||
| 1. | Wood 4" × 2" (hard wood ‘resak’) | 380 m | M$ 2.30/m | M$ 874.00 | |
| 2. | Wood 8" × 1" (hard wood ‘resak’) | 150 m | 2.65/m | 397.50 | |
| 3. | Bolt 2 nuts | 200 pcs | 0.70/pc | 140.00 | |
| 4. | Washer | 10 kg | 2.00/kg | 20.00 | |
| 5. | Nails | 6 kg | 1.55/kg | 9.30 | |
| 6. | Hooks 2–1/2" | 3 bxs | |||
| at 144 pcs | 12.00/box | 36.00 | |||
| 1 476.80 | |||||
| B. | Net | ||||
| 1. | Polyethylene 380/15, | 5 rolls | |||
| 1", 300 md | (192 kg) | 18.35/kg | 3 523.20 | ||
| 2. | Plastic rope - 4 mm | 5 rolls | 12.00/roll | 36.00 | |
| 3. | Nylon thread | 2 rolls | 3.50/roll | 7.00 | |
| 3 590.20 | |||||
| C. | Float | ||||
| 1. | Oil drum - 44 gal | 44 pcs | 25.00/pc | 1 100.00 | |
| 2. | Epoxy paint | 4 tins at | |||
| 5 1 | 83.00/tin | 332.00 | |||
| 1 432.00 | |||||
| D. | Anchor | ||||
| 1. | Cement | 3 bags | 11.00/bag | 33.50 | |
| 2. | Sand | 1 cu m | 21.00/cu m | 21.00 | |
| 3. | Stone | 1/2 cu m | 33.00/cu m | 16.50 | |
| 4. | Metal hooks - 25 cm | 4 pcs | 10.00/pc | 40.00 | |
| 5. | Plastic rope - 12 mm | 50 m | 0.35/m | 17.50 | |
| 128.00 | |||||
| E. | Labour | 800.00 | |||
| Grand Total | M$ 7 427.00 | ||||
1 Expected ‘working life’ - 6 years
| Item | Stocking density | ||
| 6 fish/m3 | 12 fish/m3 | 24 fish/m3 | |
| Capital costs | |||
| A unit of nine 5 × 5 × 2 m cages | 825.23 | 825.23 | 825.23 |
| Boat | 40.00 | 40.00 | 40.00 |
| Interest on capital costs | |||
| (8.5% per year) | 441.27 | 441.27 | 441.27 |
| Subtotal | 1 306.50 | 1 306.50 | 1 306.50 |
| Operational costs | |||
| Fry | 810.00 | 1 620.00 | 3 240.00 |
| Labour | 400.00 | 400.00 | 400.00 |
| Maintenance | 50.00 | 50.00 | 50.00 |
| Subtotal | 1 260.00 | 2 070.00 | 3 690.00 |
| Total cost/cycle | 2 566.50 | 3 376.50 | 4 996.50 |
| Gross income - fish (M$2.50/kg) | 6 659.00 | 7 404.00 | 10 383.00 |
| Net income | 4 092.50 | 4 027.50 | 5 386.50 |
| Return on investment | 159.46% | 111.28% | 107.81% |
| Production cost (M$) | 0.96/kg | 1.14/kg | 1.20/kg |
1. INTRODUCTION
The Philippines has vast potentiality for pen and cage culture development in freshwater with its 70 freshwater lakes with a total area of about 200 000 ha. The largest lake is Laguna de Bay with an approximate area of 90 000 ha.
2. PEN CULTURE OF MILKFISH
The fishpen industry in Laguna de Bay started in the early 70's. Tilapia sp. and milkfish (Chanos chanos) are cultured in the fishpens. It is now a priority project of the government in the Biyayang Dagat Programme and the Kilusang Kabuhayan at Kaunlaran or Livelihood Programme which is financed by the national government.
The following should be ensured for the success of fishpens:
Availability of materials for construction at low prices;
Availability of fingerlings at reasonable prices;
It should be in a cove, lagoon, lake, river or reef that is sheltered or protected from strong winds;
Depth should be less than 1 m at lowest tide and 3–4 m at highest tide.
Water current direction should be at the leeward side of the prevaling winds direction with a moderate flow of water;
Turbid and polluted water should be avoided;
Labour should be cheap in the locality;
Substratum should be muddy clay or clayey loam soil; bottoms with high silts and decaying organisms are avoided;
Guardhouse should be constructed to discourage poaching.
The pen design could be circular, rectangular, square or hexagonal. It is constructed of the following materials: polyethylene nets, nylon ties, bamboo poles and nylon ropes. The poles are staked in the mud at a depth of about 2–3 ft depending on the substratum.
The fingerlings to be stocked in the pens are obtained from areas accessible by transportation. The fingerlings are placed in plastic bags with water or in live fish boats. Before stocking, the fingerlings are acclimatized for 24–48 hr to minimize stress and mortality. Transport and stocking are done during fine weather.
The stocking rate in pens is about 25 000–30 000 fingerlings per ha. Mortality rates range from 25–40%.
Supplemental feeding is applied if natural food is inadequate (plankton -phytoplankton and zooplankton). For feeding, the fish farmers use popcorn and fish meals, but they rely mostly on the natural foods present in the lake.
Fishpens are regularly checked to avoid loss of fish that may result from predators or minor destruction caused by floating debris such as water hyacinths.
Cropping could be done once a year or twice a year depending on the availability of fingerlings.
Marketable size fish are harvested during bad weather conditions to attain the high price demand of the market. Seines, cast nets and gill nets are the gears used in harvesting the fish.
3. CAGE CULTURE OF SIGANIDS
Based on preliminary data on growth and survival rates, it appears that the floating cage culture project is feasible both technically and economically. It entails low cost and requires low maintenance for raising a sizeable number of fish to marketable size.
In the year 1977, the BFAR Regional Office No. 7, Cebu City through the personnel in the BFAR District Fishery Office in Sarena, Siquijor experimented on the feasibility of culturing Siganus sp in a floating net cage at Cangalwang, Siquijor, Siquijor.
The project served as a demonstration in the field of extension in the mariculture techniques of cage culturing fish in the region because it is profitable and generates revenues for the economy. It also supplemented the diet of sustenance fishermen.
The floating net cage was modelled after a commercial size cage and was constructed of bamboo poles lashed together to form a square frame raft. The inside poles are lashed to each other extending down into the water to serve as a loose frame for the nets while suspended from the raft. The raft has 3 compartments, the nursery, intermediate and the grow-out. The nursery measures 6 × 3 × 1 m, the intermediate cage is 6 × 1.9 × 2.5 m and 6 × 2.5 × 3.5 m for the grow-out cage. Once the cage is in place in the water, a 6 × 3 m piece of net is attached on the top of the cage as cover to minimize the possibility of the fish jumping out of the cage or predators entering the cage. The raft is anchored to the bottom by means of concrete weights tied to ropes and attached to each of the corners.
The depth of the water is about 0.5 m deeper than the floating cage at lowest tide to avoid the cage from touching the bottom and allowing continuous flow of water.
Fry are caught by means of beach seine nets during the period from February to November. Siganid fry are prevalent during the new moon. Fry are placed in floating containers after capture then transferred to the floating cage in the nursery compartment. After two weeks they are separated by species. Only S. argenteus, S. canaliculatus and S. guttatus are given special attention because of their fast growth and relative abundance. The slow growing species are placed also in another cage for comparative study.
The stocking density for fry varies from 400–500 fry/m3 with sizes of 20–25 mm. The fry are handled gently to reduce mortality and are properly counted so that good estimates on mortality can be determined during harvest.
Feeding is done twice a day, early in the morning and late afternoon, with marine algae Enteromorpha sp and Rhizodonium sp. Three months after, daily supplemental feeding is given by cooking 1 percent dried ipil-ipil leaves (Leucaena leucocephala), 2 percent corn or rice bran, and other foodstuffs.
Daily monitoring and checking of cages are done. Nets are thoroughly cleaned to allow free circulation of water and for the passage of waste through the bottom of the nets. This could be done by rubbing the net against itself or by using a bristle scrub brush to remove fouling organisms that may cause fishkill or diseases. If damage in the net is found, it is immediately repaired.
Weekly or monthly gathering of samples of 25 fish at random is undertaken in each cage. The fish are placed in a container can with approximately 2 inches of water. The weight of the can and the water are subtracted from the final weight of the container with fish to determine the total fish weight. Then the total weight of the fish is divided by the number of fish to get the average weight of the fish.
Proper transferring of fry to the cages is done to prevent stress that may cause high mortality. The mesh size of the cage should correspond to the proper size of fish to be reared.
Hydrobiological data are taken and recorded at regular times of the day. These include temperature, DO, salinity, pH, water turbidity, plankton counts, volume, wind direction and current. Observations on prevalent diseases, predators, competitors, mortality, growth rate and other hydrobiological factors are also recorded. A monthly accomplishment report is prepared during the month and submitted to the Director of BFAR, Planning and Management staff, through the office of the Regional Director.
Marketable size fish (10–12 fish/kg) is preferably harvested during bad weather condition when the demand of fish is high.
1. INTRODUCTION
Cage culture is the method of raising fish from fingerlings to marketable size in a volume of water within a limited and enclosed area where fishes feed intensively. This type of farming can be done in freshwater lakes, bays, coves and rivers in which cage culture is suitable.
In the Philippines cage culture is becoming popular in some regions but in other regions cage farming is not as well developed due to lack of financial support and lack of sufficient data to put up cage culture. In this connection the Seafarming Project of the Southeast Asian Fisheries Development Center for mussel and oyster culture research studies built an experimental floating cage to conduct studies on the different stocking density, growth rate and types of feeds to be used for culturing fish in floating cages. The research studies being conducted are for gathering necessary data for reference in cage farming in the future.
2. CAGE CULTURE PROJECT SITE
The site of the project is located in the Batan River close to the gonadal maturation pen of Penaeus monodon of the department. It is 1 000 m from the SEAFDEC Batan substation and approximately four km from the mouth of the river. Water depth is about 4 m during low tide.
The river bottom is sandy-muddy. Water temperature ranges from 30–32°C except during December and January when the temperature ranges from 26°C– 28°C. Salinity is 15–18 ppt during the rainy season occurring in the months of July and August. The site is free from flood, industrial pollution and is sheltered from strong winds and typhoon.
3. SCOPE OF STUDIES FOR SPECIES OF FISH
Although there are various species of finfish that can be cultured in floating cages, the experimental studies only used two species of fish, namely (1) siganids; and (2) spade fish.
3.1 Description of fish
Siganids - There are various species of siganid in the country but Siganus versiculatus (versiculated pinefeet) locally known as samaral and dangit is preferred for in cage culture. This species of siganid has a deep body with alternating dark brown and pale gray lines. The head is golden in color.
Scatophagus argus - The English name is spade fish and is locally known as kikiro.
3.2 Objectives
To culture siganids from fingerlings to marketable size.
To conduct comparative studies on different stocking densities.
To know the growth rate of siganids every thirty (30) days with regard to stocking density.
To study different types of feeds acceptable to siganids cultured in floating cages.
4. DESIGN AND CONSTRUCTION OF FLOATING CAGES
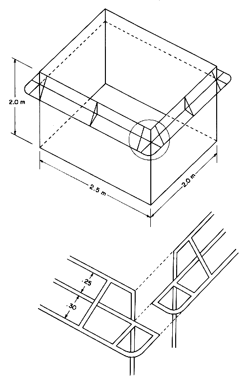
Floating cages in other countries have different designs, methods of construction and materials being used for construction. In the Philippines the most common materials used for raft construction is bamboo without floats at all. This material will not last long in marine waters because of the adverse effect of fouling organisms. Fouling organisms diminish the buoyancy of the bamboos. In SEAFDEC the experimental raft or frame is made of G.I. pipe with a diameter of two inches. This is welded in order to form dimensions of 5 m wide and 10 m long. The frame is divided into two compartments (see Fig. 1).
4.1 Net
Synthetic fibers either knotted or knotless are commonly used in floating cage culture because of their durability and water resistance. The net used in our experimental cage is polyethylene net with 1–1/4" stretch mesh. The net is constructed like an inverted mosquito net. The upper and lower edges of the nets are hung to the hangline made of polyethylene rope with dimensions of 5 × 5 × 2.5 m. The hanging slack is 30–40 percent in order that meshes of the net will form a diamond shape to allow free passage of the water inside the cage. A 0.5 m depth of the net serves as freeboard to prevent fish from escaping. The net is suspended vertically in the water by means of a pole made of G.I. pipe with the bottom part provided with an eye where the pullrope passes through for stretching the net (see Fig. 2).
4.2 Floatation
Styrofoam buoys are used as floats in the SEAFDEC cages. The floats are either circular or rectangular in shape and wrapped with chicken wire firmly, then coated with cement. The purpose of chicken wire is to hold the cement until it can harden. The mixture for ferro-cement is one bag cement to one bag of fine sand and mixed with sahara (white cement) to become waterproof. The thickness of the cement coat is 1/2 or 3/4 of an inch around the styrofoam buoy. The cement is used to protect the styrofoam from any borers and also from fouling organisms.
4.3 Mooring materials
Anchors are necessary for mooring the floating cages especially in rivers when there is current. The anchor used is the traditional type made of G. I. bar with 1–1/4" dm, and weighing 26.5 kls (see Fig. 3). The mooring line used is polyethylene rope attached to the end of the anchor by means of shackle and the free end of the anchor line is tied firmly to the corner of the floating cage for keeping it fixed.
5. STOCKING OF FINGERLINGS
Siganid fry coming from the SEAFDEC hatchery are reared in aquaria for weeks until they become fingerlings. The fingerlings, measuring 2–2.5 cm long, are transported to the Batan Substation from the Tigbauan Research Station. The fingerlings are placed in a plastic bag with oxygen. There are 180 fry for every plastic bag which measures 24 × 36 inches. After packing, the plastic bag is placed inside the styrofoam box and a small amount of ice is put at the top of the plastic bag before closing in order to maintain the water temperature. The styrofoam boxes are loaded on a truck and brought to the Batan Substation. Fingerlings stressed during transport are placed in fiberglass tanks for recovery prior to stocking in the cage. Stocking rate is from 150–200 fish/m3.
6. FEEDS AND FEEDING
Siganid fry reared in the aquarium or fiber glass tank are fed with fish pellet. The fish pellets are ground and fed to the fry at the rate of 5 percent of the body weight. The feeding is done twice a day. In cages, the rate of feeding is the same as in the aquarium but fish pellet is soaked first in the water before feeding to fish. Aside from fish pellets, green algae from fishponds are also given as additional feed for siganids.

Fig. 1 Layout of a cage raft made of G. I. pipe and styrofoam bouy coated with cement

Fig. 2 Floating cage net and its parts

Fig. 3 Anchor used for floating cage
1. INTRODUCTION
The cage system for marine finfish was first introduced in Singapore in 1971. Preliminary studies on cage culture were very encouraging and in 1974 the Aquaculture Unit of the Primary Production Department established the Marine Experimental Fish Farm at Pulau Ubin coastal area to conduct experiments on groupers, snappers and giant sea perch. The cage system has been found to be commercially viable and many unlicensed small-scale farms were established along the eastern and western Johor straits of Singapore. These farms are usually located at depths of 3–6 m and scattered along the coastline.
As a result, the Primary Production Department introduced the fish farming scheme through the Fish Culture Act implemented in March, 1981. The objectives of this farming scheme in coastal areas are:
To licence and control the fish farms.
To increase high value fish production by maximizing and efficiently utilizing the limited coastal areas available for fish farms.
2. FISH FARMING SCHEME IN SINGAPORE
All fish farmers have to obtain the fish culture farm licence from the Department for the establishment of farms in designated areas only. The following areas have been designated by the Department:
S.E. of Pulau Ubin coastal area;
Serangoon coastal area;
Ponggol coastal area;
Lim Chu Kang coastal area;
In the vicinity of Kelongs.
At the moment, the total coastal areas available for establishment of farms is about 200 ha and at a depth of at least 6 m at low tide. The fish farmers are normally allocated an area of 5 000 m2 or (1/2 ha) or a multiple of 5 000 m2. The fish culture farm licence is S$ 500/yr/5 000 m2 or part thereof. In addition to the licence fee, the farmers have to provide a security deposit of S$ 5 000 for one lot of 5 000 m2. Each farm should produce 17 tonnes of finfish per 1/2 ha for the 1st to 3rd year and from the 4th year each farm should produce 34 tonnes per year.
The main types of fish cultured in Singapore are: (a) groupers (Epinephelus tauvina); (b) sea perch (Lates calcarifer); (c) snappers (Lutjanus); and (d) assorted fish.
3. PRESENT STATUS OF FISH FARMS IN SINGAPORE
At the moment, about 34 farm licences have been issued to the fish farmers in designated areas. Total area allocated for establishing the farms is 190 000 m2. The commercial farms are in various stages of development and as such no production statistics are available at this moment.
4. BRIEF DESCRIPTION OF TYPICAL DESIGN AND CONSTRUCTION OF FLOATING RAFTS IN SINGAPORE
Most of the commercial rafts are square or rectangular in shape. The floating rafts normally consist of a wooden framework, floating units, nets and anchorage facilities.
Wooden framework - The cage framework is made from wood of 2" × 3" or 3" × 4" in size and the required lengths are joined either with bolts and nuts or nails. The size varies from 1/4" to 1/2". The size of wooden frame varies from 10 × 10 m to about 40 × 40 m depending on the number of nets and rafts.
Floating units - The floating units are normally made from plastic drums, metal drums, and styrofoams. The size of a floating unit (drum) is about 1 × 0.5 m with 200-liter capacity. The floating units are normally coated with marine anti-fouling paint to prevent fouling by marine organisms.
Nets - The cage net materials are usually made of knotted polyethylene netting and the size of each net varies from 2 × 2 × 2 m to 5 × 5 × 3 m. The mesh size of net is between 1/4" to 1–1/2". The cost of one cage net is about S$ 80 to S$ 200.
Anchorage facilities - The floating rafts are usually anchored in a fixed locality either by cement sinkers about 1/4 ton to 1 ton each depending on the size of floating rafts and by wooden pegs driven into the sea bottom.
5. OPERATION OF FISH CAGE FARM
The commercial cage farmers in Singapore purchase fingerlings from local fishermen and mainly import from overseas (e.g. Thailand and Malaysia). The size of fingerlings bought are about 100 g (3–4"). The cost of fingerlings depending on the size is about S$ 1.20 to S$ 3.00. They are fed with trash fish once a day at about 5 percent to 10 percent fish body weight. The cost of trash fish is about S$ 0.50/kg. The fingerlings of about 3–4" size would attain marketable size of 600–800 g in about 6–8 months. The price of groupers is about S$ 8–12 per 600 g, snappers cost S$ 5–7 per 600 g and sea perch cost about S$ 8–9 per 600 g.
6. PROBLEMS OF CAGE CULTURE
The main problems encountered by farmers in Singapore are as follows:
Shortage of supply and high cost of fingerlings;
The shortage of skilled technicians and high cost of labour; and
High cost of cage materials (e. g. plastic drums, polyethylene netting and wooden frame).
7. CONCLUSION
The cage culture system of rearing fish has shown to be very feasible by the increasing number of commercial farms established or to be established in Singapore. The cage culture technology needs to be improved or modified to suit the local conditions especially with respect to the following:
Cheaper cost of construction materials like wooden frame, floats, nets, etc.;
Effective means to reduce fouling in floats and nets; and
Ensuring a constant, abundant, and cheap supply of fingerlings.
1. INTRODUCTION
Sri Lanka is situated in the Indian Ocean, Southeast of India, between latitudes 6–10° north and longitudes 80–82° east. There are 137 600 ha of inland tanks and reservoirs and 120 000 ha of brackishwater lagoons, estuaries and mangrove swamps available for stocking and harvesting fish. The potential annual yield from these resources depends on the intensity of fish stocking but the harvest could be raised to 50 000 tons. The fisheries sector in Sri Lanka has a relatively high importance in the economy compared to that in most countries. The industry supplied a substantial proportion of the animal protein consumed by the population in 1978.
As far as pen culture is concerned, Sri Lanka has not yet started any programme of work due to lack of experience and training. An experimental pen culture project is proposed in two sites in brackishwater areas, namely, the Koggala lagoon (south coast) and Kalpitiya lagoon (west coast). Species that are to be tried out are Chanos chanos (milkfish) and Tilapia spp. It is hoped that this programme will be extended into freshwater bodies in Sri Lanka to try out T. nilotica and trout in cold waters. The duration of the brackishwater project would be two years. The project is meant to be jointly operated by the Inland Fisheries Division and the newly established National Aquatic Resources Research and Development Agency (NARA).
The cage culture project which was initiated in September 1978, actually commenced into practical operation with the first trials in cage culture sponsored by IDRC which commenced in September 1980. The places selected for this programme were Udawalawe Reservoir (Ratnapura), Parakrama Samudra (Pollonnaruwa), Lake Gregory (Nuwara Eliya) and Munuthawela Reservoir (Hambantota).
2 Research Officer, Ministry of Fisheries, Sri Lanka.
2. CAGE CULTURE TRIALS
T. nilotica and rainbow trout were the main fish species in the cage culture trials.
In the experimental cage culture trials the parameters tested were stocking density and feeding. Due to many technical problems that are usually encountered with new projects, and biological technicalities that had not been resolved previously, the trials did not bring about any satisfactory results. The details of the trials and harvests made at the end of eight months are given below:
| Site | Number of cages | Number of fish/species stocked | Number of cages harvested | No. of fish at harvest | Total quantity (kg) | Average weight/ fish (g) |
| Udawalawe | 12 | 6 800 T. nilotica | 10 | 1 600 | 170 | 150 |
| Polonnaruwa | 12 | 6 800 T. nilotica | 4 | 851 | 143 | 150 |
| Muruthawela | 4 | 2 600 T. nilotica | not | |||
| harvested | ||||||
| N'Eliya | 8 | 1 000 r. trout | 4 | 260 | 100 |
The first trials showed that reservoirs at Udawalawe, Polonnaruwa and Muruthawela are not productive enough to sustain growth of T. nilotica without supplementary feeding.
There was no significant growth of T. nilotica stocked at 600 fish and 400 per cage (dimensions 2.5 × 2.5 × 2.5 m).
Although two feeding regimes (5 percent and 10 percent of feed by body weight) were used, the fish did not take in more than 5 percent of feed by body weight per day.
Effective use of this 5 percent of feed by body weight was made when this was fed to the fish six times a day at two-hour intervals.
Keeping these observations in mind it was decided to repeat the trials in four sites, with a few minor changes. The new trial commenced in 1 July 1981.
The details of the second trial are shown in the next page.
| Site | Cage No. | Size of cage (m3) | Species stocked | Stocking date | Stocking number |
| Udawalawe | 1A | 2.00 | T. nilotica | 1.7.81 | 600 |
| 2A | 2.00 | T. nilotica | 900 | ||
| 3A | 2.00 | 600 | |||
| 4A | 2.00 | 900 | |||
| 1B | 2.00 | T. nilotica | 1.7.81 | 1 500 | |
| 2B | 1 000 | ||||
| 3B | 1 500 | ||||
| 4B | 1 000 | ||||
| Polonnaruwa | 1A | 2.25 | T. nilotica | 12.7.81 | 990 |
| 1B | 2.25 | T. nilotica | 12.7.81 | 660 | |
| 1C | 990 | ||||
| 1D | 660 | ||||
| Muruthawela | 9 | 2.25 | T. nilotica | August | 831 |
| 11 | 2.25 | T. nilotica | 1 000 | ||
| 12 | 1 000 | ||||
| 14 | 1 000 |
The fish in all the cages at the four different sites were fed with 5 percent body weight of pelleted feed spread out six times a day at two-hour intervals. The trials are now in progress. The N'Eliya cages have been stocked with common carp temporarily until the trout fingerlings have attained the correct size for stocking in cages.
2.1 Alternative methods of feeding
After discussions with project officers, it was decided to feed the fish in two cages in Udawalawe, Polonnaruwa and Muruthawela with feed compounded by using available feed ingredients of the area. Therefore, feeds compounded out of rice bran, ipil-ipil leaves, mannihot leaves, coconut residue and fish offal (if available) would be tested on the growth of T. nilotica for comparison with pellet feeds.
2.2 Cage culture trials conducted by the Ministry out of its own funds
Two sites were selected for this purpose. These areas were Wennappuwa and Tabbowa. The details of these trials are given in the next page.
| Site | Number of cages | Number of fish/type stocked | No. of cages harvested | No. of fish at harvest | Total qty. | Average weight/ fish (g) |
| Tabbowa | 12 | 6 000 | 6 | 1 232 | 225 | 175 |
| T. nilotica | ||||||
| Wennappuwa | 10 | 2 000 | 4 | 1 206 | 230 | 175 |
| T. nilotica |
New trials are again in process.
3. RECOMMENDATIONS
The following are the main recommendations for Phase II.
3.1 Continuation of present cage culture trials
Continuation of the cage culture project under Phase I at Polonnaruwa, Muruthawela and N'Eliya. Studies will be continued on different stocking densities ranging from 60–250 fish/m3 and feeding with pellet feeds and feeds compounded out of raw materials available locally in the area. T. nilotica will be used for this purpose.
3.2 Multigrade cage culture system - Udawalawe
The idea is to introduce seven units of net cages, each unit having four net cages in the Udawalawe Reservoir. The dimension of a net cage would be 4 × 4 × 3 m. Stocking of fish could be commenced starting with one unit of cage per month. This will continue up to seven months until all the units are stocked. Harvesting of the first unit of cage would be carried out after seven months. The stocking density will be decided on the results of the new trials now in progress and ending in December 1981. The species to be stocked will be T. nilotica. Fish in half the cages would be fed with pellet feed and the other half with diet compounded out of locally available feed ingredients.
1. INTRODUCTION
Cage culture of fish in Thailand started in the early 1950's. At first, the fishes were raised in bamboo cages which were floated along the rivers or canals. The cages have been changed from bamboo cages to wooden cages because they are easier to make and handle. The number of fish farmers who are raising the fish in cages has increased every year because productivity of cage culture is 10–20 times higher than that of pond culture. Cage culture has faster return of investment. From the records of the Department of Fisheries in 1975, there was an area of 722 ha that had about 345 cages. The annual production was about 227 tons with a value of approximately US$150,000.
2. CULTURED SPECIES
The species of fishes that are raised in cages are catfish (Pangasius sutchi, Clarias macrocephalus), sand goby (Oxyeleotris marmoratus), common carp (Cyprinus carpio), local carp (Puntius gonionotus), Nile tilapia (Tilapia nilotica), and snake head (Ophicephalus striatus). The most popular species which the fish farmers raise in cages is the sand goby.
3. CAGE CULTURE OF SAND GOBY
The sand goby (Oxyeleotris marmoratus) is an economically important fish of Thailand because the price of this fish is about US$ 9 per kg at present. This fish is carnivorous and feed must always be fresh. If the feed is spoiled, the sand goby will not take it. Cage culture of the sand goby started just about 9–10 years ago at Nakorn Sawan province. The fish farmers floated the cages along the Nan river in which there were rich organic matters in the water. It is suitable for raising sand goby in cages because they can have a high growth in this condition.
1 Fisheries Biologist, Nakorn Sawan Fisheries Station, Fisheries Department, Thailand.
4. SIZES, DESIGNS AND COST OF CAGE
In Thailand, fish cages are usually box-shaped and made of wood 0.5 inch thick. The popular sizes of cages are 10–15 m2 and 1.5 m deep. The cost of the cages range from US$ 600–700 and last for about six years before repairs are needed.
5. STOCKING RATE
Fishes are stocked at a rate of 100/m2 and average 100–300 g in size.
6. OPERATION AND MAINTENANCE
Fingerlings are collected from natural sources. The cost of fingerlings, weighing about 100–300 g, is US$ 6–7 per kg.
7. FEEDING
The sand goby is fed with trash fish at about 10 percent of total weight of fishes every two days. The cost of trash fish is about US$0.25 per kg and the food conversion of sand goby is about 5–6. After six to eight months, the fish are harvested and sold at the price of US$9 per kg when the weight of the fish is more than 400 g but less than 1 kg. The fish farmer can make a profit of about US$ 1 500–2 000 per cage per year.
8. PROBLEMS
Lack of fish fry is a problem in the cage culture of the sand goby. Most of the fry are collected from the natural sources year by year. With increasing pollution in these natural sources, the fry supply has decreased rapidly. Although the Department of Fisheries can breed the sand goby by artificial methods, it cannot produce enough fish fry to supply the fish farmers.
9. DISEASES
With many cages being floated along the river, diseased fish upstream contaminate the fishes downstream. This is an important problem which is difficult to prevent and control. The fish diseases usually found are bacterial diseases. To control these diseases, antibiotics are mixed in the feed or are injected.
10. CONCLUSION
Cage culture can be considered as an advanced type of aquaculture. Its productivity is 10–20 times higher than that of pond culture for comparable input and area. Cage culture, however, requires good management and procedures to prevent and control fish diseases, and developing fish feeds of high quality but low cost.
1. INTRODUCTION
In Thailand, cage culture of freshwater fish began in 1950. Marine cage culture, however, started in 1971. There are five marine and brackish fisheries stations that conduct experiments on cage culture. The experiments are on growth rate, stocking density and kind of fish that can be raised in cages and the development of cheaper, durable and easy to transport and handle cages. The main purposes of the studies are to demonstrate to fishermen small-scale projects in fisheries and for artificial breeding of broodstock.
2. LOCATION OF STATIONS FOR MARINE CAGE CULTURE
2.1 Rayong Marine Fisheries Station (RMFS)
This station is in the eastern coast of the Gulf of Thailand. The experimental cages are set up at Samet Island, about 4 km from the station. It is a wide bay sheltered from strong winds ten months of the year. Water depth at low tide is 5 ft. Water current is present along the coast.
2.2 Satul Fisheries Station (SFS)
The station is in the southern part of Thailand. Cages are located in the estuary, about 800 m from the sea. The salinity is 28–32 ppt in summer. In the rainy season, the water is separated into two layers wherein the upper layer's salinity is 10–20 ppt (1 m depth) and the lower layer's salinity is 25–30 ppt.
Water depth at low tide is 3–4 m. The bottom is sandy-mud.
2.3 Aquaculture Demonstration for Small-Scale Fishery Development Projects at Phang Nga Bay
This project, belonging to the UNDP/FAO, is at Phang Nga Bay in the southern part of Thailand. The site of cages in this area is in the channel between the islands and seashore. Water depth is about 6–10 m at low tide. The bottom type is muddy-sand.
3. CONSTRUCTION OF CAGES IN THE DIFFERENT STATIONS
3.1 Rayong Marine Fisheries Station (RMFS)
There are two sizes of cages used in this station. One has dimensions of 1 × 1 × 1 m with galvanized iron pipe frame (1/2 inch Ø), and cage of 0.5 cm nylon net, 1.0 cm nylon net and 1.5 cm wire net. The other one is 2 × 2.5 × 2 m with cage of 2.5 cm nylon net and 3.8 cm wire net and frame made of 3/4 inch Ø galvanized iron pipes.
3.2 Satul Fisheries Station
In this station, only the upper frame of the cage is made of iron pipe with 3/4 inch Ø. The cage sizes are 5 × 5 m and 10 × 5 m with depth of 2 m mesh sizes of the polyethylene net cage vary from 1.5 to 3.8 cm depending on the size of stocks. At the bottom, stones are used as sinkers in each corner. The cages with 1.5 cm mesh size, are used for rearing fingerlings of sea perch and grouper.
3.3 Phang Nga Bay
The cages in this station are made of nylon net with dimensions of 2 × 2 × 2 m and 3 × 3 × 3 m and mesh size of 2.0–4.0 cm. Net cages used for nursing sea perch fry are 1 × 2 × 1 m with 0.1 cm mesh size. The lower frame made of galvanized iron pipe (3/4" Ø) serves as a sinker.
The galvanized iron frame is painted with epoxy paint to prevent corrosion.
Floatation of the cages is provided by cylindrical shaped styrofoam, 30 × 60 cm in diameter and 60–120 cm in length or box-shaped styrofoam (50× 50 × 100 cm). Plastic containers have also been used as floats for demonstration purposes.
The smaller cages in RMFS are attached to rafts (6 cages per raft) with ten styrofoams, while the bigger ones are floated with four styrofoams. The floats are painted with plastic paint and covered with net.
At Phang Nga Bay, rafts (4–6 cages) are constructed of bamboo and wood with plastic containers and styrofoam as floatation devices.
4. SPECIES USED IN CAGE CULTURE
The following species have been cultured in the cages: sea perch (Lates calcarifer), grouper (Epinephelus tauvina, E. spp), snapper (Lutjanus sebae, L. johni, L. russelli) and rabbitfish (Siganus sp).
5. CONCLUSION
At present, there are many cages made by local fishermen that culture marine fish along the coast of Phang Nga Bay, and in the east coast of the Gulf of Thailand. The popular fish cultured are sea perch and grouper. Fingerlings of grouper are collected from the natural sources while fingerlings of sea perch are produced in hatcheries through artificial methods.
Galvanized iron frame work Ø 3/4 inch
Connector (stainless steel)
Styrofoam (Ø 30cm × 60cm, painted with plastic paint and covered with net)
Cage culture demonstrations for the Small-Scale Fisheries Development Project were set up in 1979 at Phang Nga province. This project was assisted by FAO/UNDP/SIDA and was under POBP/SCSP.
The net cage culture of fish programme began by setting up fishermen groups. Then the project started the training course in nursing and rearing sea bass in net cages. The fishermen group cooperated with the project to construct and look after the net cages.
The net cages are made of nylon net with dimensions of 3 × 3 × 3 m in diameter and mesh size of 2–5 cm. The raft is made of bamboo and wood with plastic containers and styrofoam for floatation.
The following species have been cultured in the cages: sea bass (Lates calcarifer), grouper (Epinephelus tauvina), and snapper (Lutjanus seabae and L. johni).
Sea bass fry are produced in the hatchery of the Phuket Fisheries Station. Grouper and snapper fingerlings are collected from natural sources in Phang Nga Bay.
The net cage used for nursing sea bass fry are 1 × 2 × 1 m in dimensions. It is floated in the large net cage. Young sea bass are highly cannibalistic; the larger fry eat the smaller ones. Therefore, they are separated by size and reared in separate net cages until they reach the fingerling stage by which time they are transferred to large net cages.
The stocking rate of sea bass is about 500 fry per m2 and 30 fingerlings per m2.
Trash fish (2–3 Bht/kg) is used as food. They are cut into pieces and given once a day at about 10 percent of total body weight.
Sea bass are harvested after one year of rearing from fry (1.0–1.5 cm in length) and sold at prices of 45–50 Bht/kg.
The cost of grouper fingerlings depends on the size. Fish less than 100 g cost 20 Bht/kg; fish weighing 100–200 g cost 25 Bht/kg. After 5–6 months, the fish are harvested and sold at prices of 40–50 Bht/kg.
1 Fisheries Biologist, Phuket Fisheries Station, Phuket, Thailand.
1. INTRODUCTION
Since the sea bass (Lates calcarifer) has high tolerance to a wide range of salinity and environmental conditions, it could be reared in freshwater, brackishwater and seawater. It is a very popular fish for rearing in cages in many countries like Thailand, Singapore, Malaysia, Taiwan and others. Thailand has developed techniques for the hatchery and nursery of sea bass.
The Satul Fisheries Station in the southern part of Thailand is one of many stations in Thailand that has mass-produced fry and fingerlings of sea bass. The hatching and nursing of sea bass are very important aspects for the production of fingerlings for cage culture.
2. FACILITIES USED FOR HATCHERY
The size of concrete tank for broodstock is 5 × 10 × 2 m.
The size of concrete tank for hatching and nursing is 1.5 × 10 × 1 m.
Circular fiberglass tanks (1 m3) are used for the nursery of fry and fingerlings.
The size of net cage for rearing the fry is 1 × 2 × 0.9 m.
3. BROODSTOCK
The sea bass normally matures in about 3 years or more and natural spawning is practised in this station if the breeders are in good condition. About 22 (one male to one female) of sea bass are placed in a concrete tank of 5 × 10 × 2 m. Trash fish is fed and some physical environment factors are properly controlled.
The spawning season of sea bass occurs in the months of April to September. The spawning of sea bass usually occurs about 4–5 times per month and is usually at night.
1 Fisheries Biologist, Satul Fisheries Station, Fisheries Department, Thailand.
4. HATCHING AND NURSING OF YOUNG
When the broodstock of sea bass spawn in 5 × 10 × 2 m concrete tanks, the eggs were collected by the use of a plankton net. The eggs are 1 mm in diameter and is semi-buoyant. The eggs are transferred to a hatching tank of 1.5 × 10 × 1 m. The depth of water is 0.8 m in the tank, with an ideal temperature of 28–32°C and a salinity of 28–32 ppt. The eggs would normally hatch in 15–18 hours. The feeds of larvae and fry are rotifer, brine shrimp (Artemia salina) and minced trash fish, respectively. The size of fry fish after 1 cm should be graded for the same size in net cage or tank because young sea bass are strongly cannibalistic; the larger fry eat the smaller ones.
At the Satul Fisheries Station there are many methods for nursing 1 cm fry to fingerlings.
4.1 Nursing young sea bass in net cage in concrete tank
The net cage used for this purpose is 1 × 2 × 0.9 m (1 mm mesh size) in dimension. This is floated in a concrete tank of 1.5 × 15 × 1 m filled with water to a depth of 0.85 m (salinity 20–32 ppt). These net cages are very useful in nursing fry of sea bass about 1–15 cm in length. Stock density in a 1 × 2 × 0.9 m tank depends on the size of young fish.
4.2 Nursing young sea bass in net cage in the river
At the Satul Fisheries Station some of young sea bass in net cages are placed in the river (salinity 10–30 ppt). The size of net cage and the method of nursing are similar to those reared in concrete tanks.
4.3 Nursing sea bass in the tank (without net cage)
At the Satul Fisheries Station the sea bass are usually reared and nursed in the concrete tank (1.5 × 10 × 1 m) after they reach 1 cm in length. Rearing and nursing is done in 1 m3 round fiberglass tanks. Stock density depends on the size of young fish.
From hatching, 2–3 months are necessary for nursing the fry to fingerlings which could be reared in the large net cage.