The model used in this case study is based on the experience of a small-scale fish marketing cooperative in the Indo-Pacific region.
The cooperative has 330 members of whom 300 are artisanal fishermen and the rest are small-scale fish processors (dried-salted, smoked and fermented fish). The marketing of fresh fish and fishery products is one of the main problems facing this fishing community. The cooperative's target is to improve the welfare of its members through improved fishing, fish marketing and processing of their fishery products.
After an initial training programme on cooperatives and continuous efforts to encourage membership throughout the fishing communities in the area, a cooperative marketing development plan was implemented by the cooperative's members. The main objectives of this marketing development plan were to:
enter into collective fish marketing in order to minimize drastic price fluctuations and operational/marketing costs; maintain regular deliveries to meet the market demand and obtain favourable prices;
implement the change-over from fish trading by volume (at village level) to trading by weight; be able to market superior quality fish by improved fish handling practices;
strengthen cooperative's membership by providing adequate credit, extension and training as well as regular supplies of production inputs at reasonable prices and establish alternative sources of credit and supplies at village level;
implement a fish marketing information system to help in the day-to-day planning of marketing operations.
The cooperative encouraged its members to participate in a fish collection programme. Fish catches were collected daily from member-fishermen in remote villages by a collecting vessel. Fish collection centres were established in major villages, consisting of a shed with cemented floor, a weighing scale, insulated fish boxes, ice boxes and a washing/ sorting table.
Each fish collection centre purchased fresh fish from members or non-members by weight, payment was on cash basis. Fish was then sorted, washed, chilled and boxed in insulated containers for loading on the collecting boat. The collecting boat stopped at each collection centre daily and supplied only member-fishermen with fuel, ice and materials for fishing on a daily credit basis. Iced, fresh, fish was then received from the fishermen. At the main cooperative's landing centre, the marketing officer, according to the market demand, allocated part (about 50%) of the collected fish to the local markets and fish processors and the rest was delivered to the capital city's wholesale markets and institutional market outlets.
At the cooperative's main landing centre, fast chilling of non-iced fish and storage under chilled conditions was attempted and successfully implemented by constructing and operating a simple chilled seawater (CSW) tank. This CSW storage facility was used mainly for fish of high market value such as groupers, fusiliers, pomfrets, shrimps and small-size yellow-fin tuna. The CSW-tank which had a storage capacity of 850 kg of fish was developed on the principle of chilling the fish with a mixture of clean seawater and ice. The mixture was recirculated by means of a simple manual water pump. The fish was stored 2 to 3 days, enough to collect a truckload for transport to the capital city's wholesale market. The advantage to the small-scale fishermen of the cooperative of using this CSW-tank were:
faster chilling rate of the fish than with ice alone
reduced damage of fish due to pressure
reduced labour requirements for chilling fish
minimized shrinkage losses.
The fish collection programme and the improved fish handling, marketing and distribution practices have enabled the cooperative to deliver better-quality fish to consumers and to obtain higher prices for their fish products. This trial, to improve small-scale fisheries marketing shortcomings, was part of a long-term national marketing development programme (see Figures 25–29).

Figure 25 Fish landing centre for a Southeast Asia small-scale fishing village

Figure 26 Layout of a Southeast Asia fish collection centre

Figure 27 Cross-section of the Southeast Asia fish collection centre

Figure 28 Side view of a fish collection centre

Figure 29 Fish washing/sorting table used by a fish collection centre. It was locally constructed in stainless steel
The project for Small-Scale Fisheries Development, Bayawan, in Negros Oriental, operational since March, 1982, focuses its activities on the Bayawan artisanal fishing communities situated in the southern province of Negros Oriental, Philippines. The long-term goal of the project is to reduce the cost of fish collection and sales, upgrade the socio-economic status of small-scale fishing communities by demonstrating the operational capabilities of fishermen's cooperatives, and the establishment of an integrated fish marketing system able to supply good quality fish through the provision of basic fishery infrastructure.
In 1980, the population of the Bayawan Municipality was 71 113 inhabitants; there were about 12 695 households, of which 304 were fishermen's households. Bayawan is linked to Dumaguete City, the capital of the province of Negros Oriental, by a 102 km long all weather road. Electricity supplies are available 24 h/day and artesian wells are the most common source of water supplies for fishing communities.
The Bayawan Fishermen's Marketing Cooperative (BFMC) which is composed of 8 samahang nayons (pre-cooperatives), has 212 registered members. The overall management and day-to-day operations are carried out by the general manager under the guidance of a board of directors comprising 13 members. Pre-membership education programmes have been carried out as well as handling/marketing and management technical training courses to upgrade local fishermen's skills.
The estimated average annual production by member fishermen and potential member fishermen in the project area is around 415 t of fish. Hook and line operators contributing 81% of the catch, gillnetters 14% and others 5%. Motorized outrigger canoes fish 148 days a year with an average catch of 33.5 kg/fishing unit/day; non-motorized outrigger canoes fish 186 days a year and show an average catch of 8.9 kg/fishing unit/day. However, it is assumed (Hotta, 1984) that, in the initial stages, the annual supply of fish to the project will be 270 t/year.
The fish is collected daily from member fishermen at Bayawan Fish Handling Complex (BFHC) and its collection stations which are planned to be set up in 5 fishing villages. The collection stations will be equipped with weighing scales, plastic boxes and ice.
Fish is sorted, weighed by species and packed in ice. Payment is done on a cash basis, 50% down payment of the estimated value, and full payment made after the fish is sold when 5% of the gross sales price is deducted as commission plus further variable amount for marketing expenses. Also a further 2% of the gross sales of fish is deducted to increase the pre-cooperative's fund. Fish is regularly picked up from the collection stations and delivered to BFHC by the BFHC's insulated van.
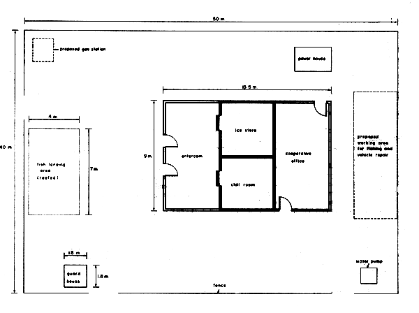
Two fish handling facilities have been established, one in Bayawan and another in Dumaguete. The Bayawan fish handling complex (BFHC), located adjacent to the municipal fishing port, is designed to be able to handle about 600 t of fresh fish per year. The BFHC include the following components:
Fish landing, reception hall and ante-room
A seawall type wharf along the Bayawan River facilitates berthing of the fishing fleet, unloading of the catch and provision of fuel, freshwater and ice. The covered reception hall, (28 m2), is equiped with a platform scale (500 kg capacity), water supply and lighting. The ante-room, (405 m2), provides space for washing, sorting, packing fish with ice and other marketing operations (bidding sales).
Ice plant, ice storage and chill room
The BFHC is equiped with a 2.5 t flake ice plant, 6.4 t ice storage capacity and a chill room of 25 m3 (6.25 t of iced fish in boxes).
Insulated van
An insulated van (2.8 t capacity) is used to transport fish from BFHC to Dumaguete chill storage and also to deliver consignments to wholesale and retail markets in the project area.
Cooperative store
The project also operates a cooperative store providing basic food commodities as well as fishing supplies to fishermen, thus minimizing borrowings from middlemen and money lenders.
Fuel and oil station
The project operates a gasoline and diesel service station at Bayawan Fishermen's Complex, providing supplies on a cash or credit basis to cooperative members while to non-members, the sales are on a cash basis (see Figure 30).

Figure 30 Layout of Bayawan fisheries complex
This installation is designed to complement those in Bayawan and includes a 2.5 t ice-plant, a 6.4 t ice storage room and a chill room of about 25 m3 (6.25 t of iced fish in boxes). An ante-room, (40.5 m2), provides space for sorting, receiving and packing fish for shipment, as well as for other marketing operations (ice sales, bidding) (See Figure 31).

Figure 31 Layout of Dumaguete fish handling facilities
Both BFCS and DFCS work in close coordination in respect to their fish marketing activities and it is estimated that about 4.5 t of chilled fish/week are received by the DFCS from Bayawan Fish Handling Complex (BFCS). The DFCS also provides services for fish storage and sales of flake ice to local fish dealers.