The Barbados fisheries sector is mainly small-scale fisheries in nature consisting of about 1 050 full-time fishermen, 250 fish vendors and 200 non-active fishing boat owners.
The pelagic fishery provides the bulk of the annual catch, and the main species landed are flying-fish (Hirundichtys sp) 50–60%, dolphin fish (Coryphaena hippurus) 25%, and billfish, kingfish, tuna and shark together, account for 25%. Landings of all pelagic fish are markedly seasonal, and they are caught by gillnetting, trolling and hand lines during the main fishing season which extends from December to June. In order to improve the fishery infrastructure, the Barbados Government constructed the Oistins fishing complex which started operations in March 1983. Financing was provided by the European Development Fund (EDF) and the Caribbean Development Facility (CDF), and the total cost of construction was US$ 2.8 million. Estimated fish landings in Barbados and in Oistins are given in Figures 32 and 33.

Figure 32 Estimated yearly fish landings by species in Barbados (average for 1971–81)

Figure 33 Estimated fish landings at Oistins in 1983
The local demand for fish is met by the small-scale fishermen during seven months of the year (December to June), but, from July to November, fish is in short supply and this shortage is partially filled with reef fish, other demersal fish and imports. Estimates of domestic fish consumption in Barbados show an average per capita consumption of 30.5 kg/ year (ranging from 26.5 kg/year to 34.5 kg/year).
In general, the bulk of the catch landed is marketed as fresh fish and is sold to consumers in the vicinity of the landing sites and in the densely populated areas. The consumer is accustomed to purchase fresh fish from the afternoon landings and it is retailed as wholefish, steaks or fillets (deboned flying fish). There is a growing demand from consumers for ready to cook flying-fish fillets.
Due to the improved fishery infrastructure in Oistins, increased amounts of better quality fish are available. This allows fish vendors to expand their fish distribution along the coastal areas. However, the inland areas are not yet regularly supplied with fresh fish. A fish marketing development plan is being considered to tackle this problem and thus contribute to increasing the availability of local fish supplies.
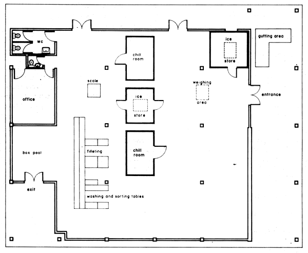
This complex consists of (see Figure 34):
Landing jetty, 145 m long and 4 m wide, designed to simultaneously serve five vessels for unloading and a further two for bunkering. This provides capacity to unload 70 vessels over a period of 4–5 hours when two 12 m LOA vessels and three of lesser length unload simultaneously. To facilitate unloading operations two landing platforms are provided at each berth, (1.2 m above m.s.1.) with rubber fenders for cushioning the impact of vessels on the jetty.
Fish terminal, (490 m2) where the landed fish is received, weighed and auctioned (133 m2), washed, sorted and filleted if necessary (flying fish is deboned), boxed, iced and the surplus chill stored in the afternoon to be sold the next day. There are two chill rooms each of 5 t capacity of boxed iced fish and two flake ice machines (2 t/24 h capacity each) mounted on top of the ice storage rooms which, together, can store 13 t of ice. In addition, outside the terminal, a 12 t/24 h capacity flake ice machine, with two reefer type containers for ice storage of 24 t capacity provides ice supplies to the vessels. The fish terminal was designed to be able to handle a supply of 6.4 t of fish/day.
Six fish retail market stalls, can accommodate 36 fish vendors with ample space for filleting and washing fish. The stalls are constructed of reinforced concrete and working surfaces are covered with tiles. There are also similar retail stalls within the complex area for vegetable marketing, two bar/groceries stalls and a fishermen's canteen.
Boat repair yard, with a large area for haul-up and maintenance of fishing boats, including a 5 m wide haul-out slipway designed to accommodate vessels up to 12 m long, and a winch, mechanical workshop, vessel service area, fishing gear shop and chandlery. However, this boat repair yard is not yet fully operational due to lack of adequate boat haul-out equipment.
Basic ancillary facilities, including fuel storage tanks system, electrical outlets, fresh water supply for boats and public toilets.
A commission sales system is carried out in Oistins complex, through which an agent takes the whole catch of a boat and disposes of it through open bargaining (bidding), at the highest possible price prevailing in the market. Presently, only licensed fish vendors and wholesalers are authorized to participate in the marketing transactions with the agents. During December, 1984, the Fish Vendors Licence fee was BA$ 0.75/day1. The landing fees charged to fishermen were as follows:
1 Rate of exchange US$ 1 = BA$ 1.98

Figure 34 Oistins fisheries terminal complex
| Species | Landing fee (BA$/kg) |
|---|---|
| Kingfish | 0.10/kg |
| Flying fish | 0.04/kg |
| Other species | 0.06/kg |
The chill storage fees were 10 cents/kg/7 days. Ice was sold wholesale to fishermen at US$ 88/ton and retailed at US$ 132/ton. A permanent staff of 21 employees operate the Oistins complex year-round, with two qualified fish market supervisors in charge of the overall administration and operation of the fishing complex, keepers, fork lift operators, refrigeration machinery operators and general service staff.
Fresh fish landed in the Oistins complex is channeled either to nearby fresh fish markets or sold through the six retail market stalls within the complex. Also, a considerable amount of the catch is used for further processing (frozen whole or filleted) in the nearby fish processing plants. Fish is transported in 1 to 2 t pick-up trucks, either in bulk or in plastic boxes. Retailers and small-scale fish dealers usually make use of second-hand plastic buckets for the transport of flying fish.
one fork lift truck of 2.5 t capacity and a lifting height of 2.7 m;
two hand-operated pallet trucks of 2 250 kg capacity;
three weighing platform scales;
four HD-polyethylene insulated containers (750 litres approx.):
eleven HD-polyethylene insulated containers (675 litres approx.);
sixteen HD-polyethylene insulated containers (200 litre capacity);
one hundred HD-polyethylene returnable fish boxes (42 litre capacity);
four aluminium shovels for ice handling (see Figures 35 and 36).
Average prices of fresh fish during May, 1983:
| Species | Wholesale (US$/kg) | Retail (US$/kg) |
|---|---|---|
| Flying fish (whole) | 0.57 | 0.75 |
| Dolphin fish (whole) | 2.08 | 2.84 |
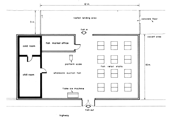
The wholesale/retail fish market of San Fernando town is located about forty five minutes drive south from Port of Spain. It consists of a roofed, fish landing concrete slab (3 × 12 m), a small wholesale auction hall (approximately 40 m2), a flake ice machine (300 kg/24 h), a chilled 0–2°C room (6.8 t capacity) and a cold store (-3.5 to -5°C) with a capacity of 2.2 t of fish.
In 1983, 319 t of fish were landed by the artisanal fishing fleet based in San Fernando area; however from nearby beaches surplus catch is also often sent by road to San Fernando Fish Market for auctioning.
The San Fernando wholesale/retail fish market, which handles around 1 000 t/year, is considered to be the second largest wholesale fish market in Trinidad. During the fishing season around 3 t of fish are auctioned daily. The fish is displayed in small lots and six auctioneers normally conduct the sales. Fish is unloaded from the boats in wicker baskets or plastic buckets, sorted and weighed on a platform scale in the auctioning hall. Middlemen purchase the fish by open auction and it is distributed to the nearby retail markets, to itinerant vendors or transported to Port of Spain, packed with ice in old chest freezer bodies, in HD-polyethylene insulated containers (recently introduced to the local fish distribution system) or in expanded polystyrene boxes, which are mounted on open type vans.
Figure 35 Layout of fisheries terminal at Oistins
Figure 36 Layout of fish retail stalls at Oistins
The fish retailing area is located on the right side of the building. Fishmongers in the retail area use (1.2 × 1 m) concrete fish stalls partially covered with white tiles. The fish stalls are equipped with water supply, drainage and basic working equipment. The market provides space for about 24 fishmongers (see Figure 37).
Figure 37 Layout of San Fernando wholesale/retail fish market
A simple fish landing shed is used for receiving shrimp and fish from small-scale fishermen in Otaheite village. Around 27 fishing boats (pirogues using mainly small trawl nets), all motorized with outboard engines (7 boats) or inboard diesel engines (20 boats), presently land their catch here. Fish handling on board is limited to keeping the catch moist and protected from direct sunshine, no ice is used on the fishing boats.
Tide variations affect the landing operations of the small-scale fishing fleet and at low tide the water recedes around 200–300 m. The main species landed are shrimp (Penaeus sp.) carite (Scomberomorus maculatus), kingfish (Scomberomorus cavalla) and salmon (Cynoscion sp.); it is estimated that 1 t/day of fish is landed during the fishing season. The catch is unloaded in wicker baskets and two push carts are used to transport it to a shed, as well as to carry outboard engines.
The catch is sorted and washed in two concrete tanks with fresh water (a flexible hose connected to a water supply pipe), after which it is displayed on elevated concrete tables for wholesale. Several itinerant fish dealers and middlemen purchase fish by weight, and shrimp according to size. If it is to be transported to Port of Spain or distant retail markets the fish is normally boxed and iced (shrimp/ice ratio 1:1). Presently, expanded polystyrene boxes, old chestfreezer bodies and HD-polyethylene containers are often used as containers for handling chilled fish and shrimp. Open pick-up trucks transport the catch either to San Fernando wholesale market or to Port of Spain fish market.
Other facilities for small-scale fishermen: A shed for the repair and storage of fishing nets and a small boat yard are available for the needs of local fishermen. The village is regularly supplied with fresh water from the main public supply as well as with electricity. An asphalted road links Otaheite village with other coastal villages such as San Fernando, Orange Valley and Port of Spain (see Figures 38,39,40).
Figure 38 Layout of Otaheite fish landing shed
Figure 39 Frontview of fish landing shed at Otaheite
Figure 40 Concrete fish wholesale/retail sales table at Otaheite