The fishing communities in the area (Kwale district) are mainly composed of small-scale fishermen whose fishing activities are concentrated within an area of 10 m from the shore. The majority of the fishermen use such fishing gear as traditional wire traps, hand lines, castnets and/or beach seines. Fishing for lobsters, crabs and molluscs is carried out by diving and collecting by hand. There are around 2 400 small-scale fishermen, of whom 58% are full-time fishermen operating a total of 920 fishing craft, mainly dug-out canoes propelled by sail and paddle. During the mid-S.E. monsoon period (May to August), fishing is restricted to sheltered waters due to gale-force winds of 30 to 50 m.p.h. which although they only blow for less than 2% of the time, result in a lower fishing effort. In 1984, a total of about 715 t of fish and shellfish were landed by small-scale fishermen in the south-coast area.
In 1984 the catch composition was as follows:
| Species | Percentage (%) |
|---|---|
| Demersals | 63.5 |
| Pelagics | 18.7 |
| Crustacea (lobsters, prawns and crabs) | 7.1 |
| Bêche-de-mer, octopus, squid | 1.9 |
| Others, (sharks, mixed fish) | 8.8 |
About 44% of the total annual catch (1984) was consumed locally and 56% was transported to Mombasa and then to Nairobi fish markets. 90% of the crustacea was consumed in the tourist resorts all along the coast. Fishermen's cooperative societies on the southcoast have long-term agreements with fish traders and fish is sold at pre-arranged prices, which are periodically adjusted. Fish landed are either consumed fresh (mainly high value species), salted and sun-dried, fire-dried or fried. The fresh fish trade is carried-out by private fish dealers who provide ice, fish boxes and transportation.
About 131 km from Mombasa there is a fish receiving station administered by the Vanga fishermen's cooperative. It is estimated that around 249 small-scale fishermen operate from Vanga (of whom 187 are cooperative members) using about 99 fishing craft.
| Fishing craft in the area | |
|---|---|
| Dug-out canoes | 67 |
| Nga lowas (with outriggers) | 19 |
| Sail dhows | 4 |
| Mechanized dhows | 9 |
It is estimated that around 0.8 t of fish and shellfish are landed daily in Vanga of which only 20% is marketed through the fishermen's cooperative society.
The fish receiving station covers a total area of 80 m2 and includes a marketing hall of 33.8 m2, with a reinforced concrete fish display table (0.95 × 5.4 m), six fish storage tanks (0.9 × 0.9 × 0.90 m), of which four are insulated with expanded polystyrene (50 mm thick) lined with 30 gauge galvanized iron sheeting, and, also, a concrete table (0.95 × 2.25 m) for sorting and display of live crabs.
The cooperative charges the fish dealers around 16% as commission. The cooperative purchases the catch directly from member fishermen at a fixed price. Fish is stored with ice in insulated tanks for at least one day and ice is generally supplied in block form by the fish traders. Every two days, the fish traders collect the catch and transport it to Mombasa in locally made insulated containers mounted on open type lorries (see Figures 41,42,43,44).
Figure 41 Layout of fish receiving station at Vanga
Figure 42 Insulated concreate tanks for fresh fish at Vanga

Figure 43 Fish receiving station at Vanga
Figure 44 Insulated tank for fresh fish at Vanga
Total recorded fish production in Vanga area for 1984 (*)
| Month | Weight (kg) |
|---|---|
| January | 26 704 |
| February | 15 187.5 |
| March | 28 028 |
| April | 22 352.5 |
| May | 23 673.5 |
| June | 17 073.5 |
| July | 17 033 |
| August | 23 632.5 |
| September | 20 744 |
| October | 21 831 |
| November | 25 803 |
| December | 18 945 |
| Total | 261 007.5 |
(*) Fish, crustacea and bêche-de-mer
Fish prices at Vanga (as of May 1985)
| Species | Paid to fishermen (K. shs) | Prices paid by dealers (K. shs) | |
|---|---|---|---|
| 1) | Mixed large (rock cod, snappers) | 10/kg | 11.90/kg |
| 2) | Small fish (any less than 6 in long) | 5.5/kg | 6.6/kg |
| 3) | Prawn type I (jumbo and queen size) | 30/kg | 35.65/kg |
| 4) | King-fish type I | 14/kg | 16.65/kg |
| 5) | King-fish type II | 12/kg | 14.25/kg |
| 6) | Crabs | 11/kg | 13.10/kg |
| 7) | Squid | 10/kg | 11.9/kg |
| 8) | Lobster type I (more than 1 kg) | 75/kg | 89.0/kg |
| 9) | Lobster type II (below 1 kg) | 55/kg | 65.25/kg |
This fish receiving station covers about 69.4 m2 and is administered by the Msambweni Fishermen Cooperative Society Ltd, which has 189 registered members. The market hall covers 41.0 m2 and includes elevated concrete slab for weighing operations, two concrete display tables, four non-insulated fish storage tanks and one non-fixed insulated wooden container (1 × 1.4 × 0.9 m) (see Figures 45 and 46).

Figure 45 Layout of fish receiving station at Msambweni

Figure 46 Fish receiving station at Msambweni
In 1984 the Msambweni Cooperative handled about 107.3 t of fish and shellfish for its members.
Lake Victoria is a large, shallow, lake shared between Tanzania, Kenya and Uganda; it has a surface area of about 68 800 km2 and a shoreline of 3 440 km. There are estimated to be around 54 000 small-scale fishermen on the lake of whom Kenyan fishermen number about 25 000 (Committee for Inland Fisheries of Africa, 1983). In 1983 (Kenya, Ministry of Tourism and Wildlife, 1984), the annual total catch caught by the Kenyan fishermen using dug out or planked canoes (around 5 000) was 77 327 t. The average catch composition in Kenyan waters (1982–83) was as follows:
| Species | % |
|---|---|
| Nile perch (Lates sp.) | 61.0% |
| Anchovies (Engraulicypris sp.) | 19.2% |
| Tilapias sp. | 6.4% |
| Haplochromis sp. | 2.5% |
| Others | 10.9% |
Fishing gear used in the area consists of gillnets (mostly used), long lines, hand lines and beach seines. Ice is presently very little used for local fish distribution and marketing. Only fresh Nile perch for the frozen fillets trade, intended to be sold in Kisumu, or in long distant markets (Nairobi), is iced. This amounts to 15% of the total Nile perch landings.
| Wholesale price paid by dealers for Nile perch (May, 1985) | |
|---|---|
| Kendu | 2.25 K Shs/kg |
| Kaloka | 2.0 K Shs/kg |
| Retail prices of tilapia in Kisumu | 16.35 K Shs/kg |
Catch by area and utilization (1983)
(tons)
| Utilisation/Sites | Luanda Naya | Kendu Bay | Kaloka |
|---|---|---|---|
| Fresh | 177 (8.4%) | 441 (96.7%) | 461 (58%) |
| Processed | 1 929 (91.6%) | 15 (3.3%) | 334 (42%) |
| Total | 2 106 (100%) | 456 (100%) | 795 (100%) |
The purchase of fish is carried out by open bargaining, but, in many cooperatives, agreements with wholesale traders (mainly from the fish filleting trade) have been established and these traders purchase mainly Nile perch on a pre-arranged prices basis, collect and ice the catch and transport it in insulated trucks. However, a considerable share of the catch is sold locally by women and bicycle traders. The unsold catch (about 50% of the total) is sun dried, or smoked in traditional mud-walled ovens or smoke pits, or fried in open fired frying pans, and distributed to nearby markets or to rural markets in western Kenya. There is strong demand for fresh tilapia and, due to the increasing supply of Nile perch, there are several marketing problems as this latter species is not a locally popular food fish. Containers used for fish handling on board and for distribution are mainly perforated wicker baskets and sack-cloth.
The access roads to the landing sites around the lake are, in general, non-asphalted (except for the main road network) and, during the rainy season, present the major obstacle to fish products transportation.
Small-scale fishermen in this area are organized in a cooperative society named the Buynala Fishermen's Cooperative. There are 820 registered members of whom 300 are active. The cooperative society administers the fish receiving station.
The estimated number of fishing canoes in the area (11 beaches) is as follows:
| Canoes | Members | Non-members |
|---|---|---|
| Mechanized | 50 | 0 |
| Non-mechanized | 200 | 1 290 |
| Total | 250 | 1 290 |
The fish receiving station is located near the shore of Lake Victoria and lies 50 km from Siaya Town. It covers a total area of 876 m2 and includes a fish market hall (58.5 m2), with concrete slab flooring and corrugated iron roofing, supported by a wooden truss; it has concrete display tables (4.55 m2 each) which are used for the fish marketing operations. A cooperative office (15 m2) and an insulated room (10.88 m2) are included in the building. The design and construction of this fish receiving station was carried out by the Kenya Fisheries Department.
The fish caught by small-scale fishermen is landed at the fish receiving station, weighed on a hanging type scale and displayed for sale on the concrete tables. After purchase, the catch is distributed by fish dealers on foot, on bicycles or in open vans to the nearby markets. Ice is not available or is in poor supply. The unsold catch is smoked-dried or fried in the village. It is estimated that about 1.3 t of fish is landed daily in Port Victoria Fish receiving station. The cooperative society collects 10% commission from fishermen from the total sales. Of this amount, part is used for maintenance of the fish receiving station, part to pay the collectors and part to cover administrative expenses. At the end of a year a bonus is paid to fishermen according to the amount of fish landed at the station. However, the cooperative is not in a position to directly market fish due to the lack of proper support from members, marketing expertise, equipment, transportation facilities and working capital (see Figures 47,48,49).

Figure 47 Layout of fish receiving station at Port Victoria

Figure 48 Display concrete slab table at Port Victoria

Figure 49 Fish receiving station at Port Victoria
The small-scale fishermen of Kaloka have been organized into a cooperative society since 1963 and, presently, they have 108 members of whom 41 are active fishermen operating about 15 non-mechanized canoes.
This cooperative has been very active in hardware, fishing gear and general merchandise wholesale and retailing. It operates three stores at Kisumu, Bondo and Kombewa. The cooperative received a small pick-up van from the Kenya Freedom From Hunger Council in 1983 which is used to transport supplies to the stores.
The cooperative offers members preferential prices for all the items sold and provides loans for fishing materials (in kind) of up to K Shs 10 000. Up to now, there has been good response from members to the activities of the cooperative and repayments of loans are regularly collected by the fish receiving station.
The fish receiving station is located close to Kaloka village (30 km from Kisumu) and covers 78 m2. It consists of a shed with reinforced concrete slab flooring and a galvanized iron roof over a wooden truss. It is estimated that around 0.6 t of fish are received daily. It is equipped with five portable fish display tables (stainless steel tops) and a hanging type scale. Fresh fish including filleted Nile prech, is sold here to fish dealers, transported to Kisumu in chest freezers and subsequently sold both locally and in other urban centres such as Nairobi and Mombasa. Water supplies to the village are provided by a windmill connected to a water pump. No electricity is available in the village (the nearest electricity main is 15 km distant). The station is administered by a manager, two recorders and two general employees (see Figures 50,51,52,53).
Small-scale fishermen in this area are estimated to number around 320, of whom 180 are active members of the Wichlum Cooperative Society. They operate, in total, 90 non-mechanized canoes, of which 40 are operated by members of the cooperative. The fish receiving station, covering 89.6 m2, is an open type shed with reinforced concrete flooring and galvanized iron roofing over a wooden truss.
The Wichlum Fishermen's Cooperative Society administers this fish receiving station, and employs three controllers on the beach to collect the commission from the fishermen, two recorders and one manager. The station is equipped with two portable fish display tables (stainless steel tops) and a hanging type scale. It is estimated that small-scale fishermen are landing about 0.8 t/day at this station (see Figures 54 and 55).

Figure 50 Layout of fish receiving station at Kaloka, Lake Victoria

Figure 51 Side view of fish receiving station at Kaloka, Lake Victoria

Figure 52 Portable display table. In fish receiving stations at Kaloka and Wichlum

Figure 53 Fish receiving station at Kaloka

Figure 54 Layout of fish receiving station at Wichlum

Figure 55 Hanging scale
The small-scale fishermen in this area are organized in a fishermen cooperative society, with 160 active members, operating 128 non-mechanized planked canoes. There is a small cooperative office and retail shop in which fishing gear is offered for sale to members. The staff of the cooperative is composed of a manager, four recorders, one store keeper and one watchman. The fish receiving station is of similar design to the one in Port Victoria. This cooperative has established an agreement with Nairobi-based fish traders who collect the catch (mainly Nile perch) on a regular basis, using insulated trucks and ice, the proportion of fish intended for fresh consumption is, therefore, quite high (see Figure 56).

Figure 56 Insulated truck at Kendu Bay fish receiving station
The Senegalese Government, assisted by a bilateral development agency, is engaged in a project called CAPAS (Centre d'Assistance à la Pêche Artisanale Sénégalaise). The main objectives of the project are to establish basic fish landing facilities and thus provide the small-scale fisheries with a more efficient fish marketing system and consumers with better quality fish. Fishing activities are conducted throughout most of the year with a peak during the dry season (January, March, April and May).
The small-scale fishing fleet in Kayar is mainly composed of motorized pirogues (one day trips) which use hand lines, gillnets or traps (448 fishing units); purse seiners (97); and non-motorized pirogues (34). Of the total fleet, 78% is migratory in nature. It is estimated that about 2 350 small-scale fishermen are active during the main fishing season. Seventy percent of them are migrant and come to Kayar fishing grounds during the peak season from other fishing villages. The main species landed are small pelagics (81% of the total), such as sardinella, jack mackerel, Decapterus sp. and Euthynnus sp., and, to a lesser extent, demersals such as Pagellus bellottii, Sparus sp., Pseudotolithus sp., etc. In 1983, a total annual production of 13 707 t was recorded, with an average of 74 t of fish per day during peak season (January to May).
Kayar village is located in the northern region of Thies-Nord. A well asphalted road links it with Dakar. The car journey to Dakar takes 60 minutes. Fish is marketed by volume; the measure is the basket (private traders) or the box (in the fish market centre); fish is landed on the open beach and strong surf often makes the landing of pirogues difficult.
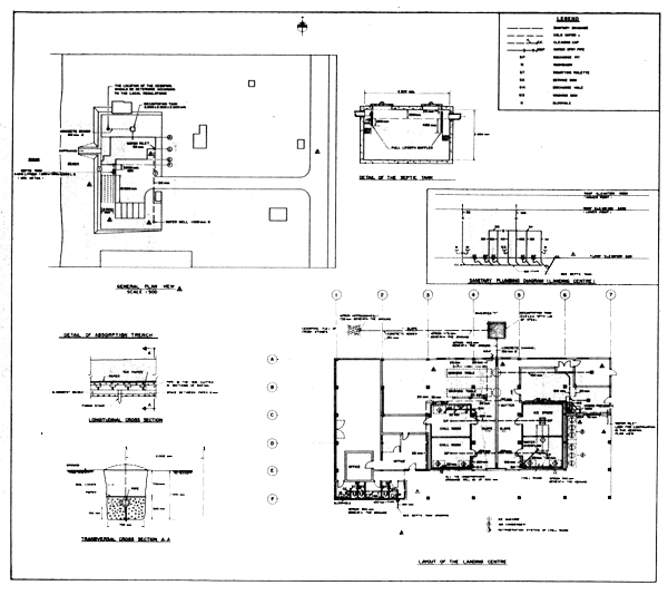
The catch is unloaded in wicker baskets, transported to the fish marketing centre, transferred to plastic boxes and washed prior to icing. The catch is bought by the market's administration in the centre, on a cash basis directly from fishermen. Stainless steel washing tables and ice bins are used for the washing/sorting/icing operations in the centre.
The centre is equipped with three chill rooms (0–1°C) each holding 12.5 t of iced fish in boxes, one plate ice machine of 20 t/24 h maximum capacity and an ice storage room (15.4 t capacity). The centre has a total area of 3 650 m2 out of which the fish terminal occupies 536.5 m2. There is a covered fish receiving area of 492 m2 and an area for weighing and washing/icing the catch of 88m2. The floor of the fish terminal is constructed of concrete covered by tiles and has a central drainage trench covered with a metal grid.
Fish traders operating outside of the Kayar fish marketing center use non-insulated lorries to transport the catch. These traders either buy ice from the centre or bring ice blocks, which are stored, in sawdust, in thirteen small concrete containers on the beach. Fresh water supply comes from a deep well with a pumping station located at the entrance to the centre. Kayar village is supplied with fresh water from shallow artesean wells, and buckets are used for lifting the water.
Electricity is supplied by the national grid through high voltage transmission lines. A transformer station is located in the centre where there is also an emergency diesel generator. Fuel is supplied regularly by tanker trucks to four fuel service stations along the beach.
The Kayar fish marketing centre uses HD-polyethylene fish boxes (35 kg of iced fish/ box) and about 1 300 boxes can be stocked in the fish box pool. There is also an insulated truck with a carrying capacity of 7 t which distributes the fish to the inland fish markets. Unfortunately, no data was available regarding shipments, volumes and prices (see Figures 57,58,59,60,61).
Lekki village which is located 75 km east of Lagos City in Lagos state. It can be reached from Lagos City by an asphalted road (Lagos to Epe) followed by a 45 min boat trip through the Lekki lagoon by motorized boat. Epe is the main collection center in the fish distribution system for the area and lies about 69 km distant from Lagos city.
In the village of Lekki, there are estimated to be 16 fishing canoes (wooden craft) and around 25–30 full time fishermen. Fishing is carried out mainly for bonga (Ethmalosa fimbriata), sardinella and to a lesser extent, demersal species. The Bonga fishing season takes place from October to February, and demersals such as sea catfish, sole, sharks and croakers are caught throughout the year. The estimated average daily catch of one boat is 32 kg; an average of 500 kg is landed daily in Lekki. Of this total, 30–40% is acceptable to consumers as fresh fish and about 70% is processed into smoke-dried fish. The fishing gear most commonly used are gillnets which are set in the late afternoon and lifted in the early morning. During the bonga fishing season the practice is to set the gillnets during the morning and to lift them in the afternoon. There are also some small-scale fishermen who normally operate in open waters but who come to the lagoon during the rainy season (June to September), when adverse sea conditions restrict their fishing operations.
As part of a development programme, a rural community fishing centre was set up at Lekki village. It comprises a fishing gear and an engine workshop, staff housing facilities, a general storage area and a fish landing shed.
The fish landing shed covers an area of 580 m2, with cemented floors sloping towards the sides and reinforced concrete pillars supporting the roof which consists of a wooden truss and corrugated galvanized iron roof sheeting. The fish market hall, which covers 362 m2, is equipped with a chill room of 7.5 t capacity (iced fish in boxes), a 300 kg/24 h capacity flake ice machine, two chest freezers (275 litres capacity each), one platform scale (140 kg × 500 g) and one spring type scale (50 kg × 50 g). During the visit the chill room and flake ice machine were being repaired.

Figure 57 Layout of the landing centre at Kayar

Figure 58 Icing fish for transport

Figure 59 Fish receiving station at Kayar

Figure 60 Pelagic and demersal fish landings at Kayar, 1983

Figure 61 Total fish landings at Kayar in 1982 and 1983
Fish is unloaded from the canoes in baskets. Fish dealers, who are mainly women, purchase the catch which is displayed on the concrete slab tables. The fish is then washed in a wheel barrow and weighed. If the administration purchases fresh fish to be shipped to Epe Fish Collecting Centre, it has to be gutted and iced in boxes or frozen in the chest freezers. In general, the marketing is fairly efficient. However, during the peak bonga fishing season, gluts in the market are common and, due to the problem of fish spoiling rapidly in these tropical climatic conditions, about 90% of the catch is preserved by smoke-drying. This method of preservation allows for a shelf life from a few days to four weeks, (salting or brining is not used). The marketing of smoke-dried bonga is carried out by local women and, to lesser extent, by outside traders. The fishing centre also purchases smoke-dried bonga which is transported in 50 kg wicker baskets to the Epe Fish Collecting Center, where it is sorted and packed in about 450 g capacity plastic bags (approximately 15 to 20 bonga/bag). From Epe Fish Collecting Centre the smoke-dried fish is marketed in Lagos city or Ogun state.
Fresh water supplies for the fishing centre are obtained from a bore well. The sewage system consists of a septic tank and percolation trenches. Electricity is provided to the fishing centre by a diesel generator (see Figures 62,63,64,65).

Figure 62 Layout of fish receiving station at Lekki

Figure 63 Side view of fish receiving station at Lekki

Figure 64 Display table for wholesale fish marketing at Lekki

Figure 65 Insulated fish boxes at Lekki