6.1 Introducción
6.2 Proyecto
6.3 Apoyo de la estructura
6.4 Construcción de la quilla, la quilla vertical y la roda
6.5 Construcción de las cuadernas, vagras y varengas
6.6 Colocación de las cuadernas
6.7 Arrufo o regala
6.8 Codillo
6.9 Alineación de las cuadernas
6.10 Construcción de los durmientes
6.11 Refuerzo del casco
6.12 Tubos interiores de la estructura de popa y el mecanismo del timón
6.13 Soporte de chumaceras
6.14 Construcción de la bancada del motor
6.15 Quillas de balance
6.16 Requisitos para incorporar una tobera
6.17 Labor preparatoria antes del moldeo
6.18 Procedimiento de moldeo
6.19 Curación del casco
6.20 Prueba de estanquidad y acabado
La técnica de construcción ilustrada en el presente libro se basa en el método utilizado por la FAO en la India, donde se construyeron tres modelos distintos de embarcaciones de pesca en el Instituto central de capacitación para la pesca, ciencias náuticas e ingeniería, de Conchin, Karala.
En los cursos de capacitación se utilizó un método avalado por la experiencia ya que ofrecía la mejor manera de impartir enseñanzas a los participantes que no tenían experiencia en la utilización del ferrocemento para la construcción de embarcaciones y a los que no tenían experiencia en la construcción en general. Sin embargo, el Instituto cuenta con un pequeño grupo de constructores experimentados en la construcción de embarcaciones pesqueras de madera.
La decisión de construir los cascos en ferrocemento, incluidos las varengas, vagras, bancada del motor y durmientes, no vino motivada por las propiedades del material, sino que se estimó justificada debido al breve tiempo disponible para la capacitación y la construcción. De haberse dispuesto de más tiempo por lo menos las cubiertas, los mamparos y todas las brazolas se habrían construido también en ferrocemento, lo que habría redundado en importantes economías tanto monetarias como en el uso de la madera. La decisión de construir el resto de la embarcación en madera pone de manifiesto que el ferrocemento puede combinarse fácilmente con otros materiales.
Todos los constructores y arquitectos navales que utilizan el ferrocemento como material de construcción deben saber que dicho material tiene características propias y que, por lo tanto, deben ser aprovechadas al máximo en un proyecto nuevo o modificado.
Deberá tenerse plenamente en cuenta que seguramente aumentará el peso del casco, especialmente para las embarcaciones pequeñas, si bien la cuantía del aumento se reduce considerablemente al aumentar el tamaño del barco.
Habrá que conocer necesariamente los pesos reales de los escantillones que van a utilizarse (lo que exigirá tal vez algunos ensayos locales) para poder calcular la estabilidad, además de modificar algunas áreas del proyecto en comparación con las utilizadas normalmente.
Por ejemplo, la roda y el espejo deben tener unos bordes bien redondeados. Hay que reducir al mínimo las superficies planas para aprovechar mejor la resistencia del material que proporcionan las curvas.
Abundando en el proyecto, habrá que examinar los elementos de refuerzo longitudinales y transversales, las varengas, la bancada del motor, los mamparos y los apoyos del equipo, aparte de las exigencias de la cubierta y superestructura, para tener en cuenta los requisitos del material, así como el proyecto en general. En la etapa de armamento se dará una protección adicional a las zonas vulnerables para compensar los posibles daños por colisión en, por ejemplo, puertas y haladores de redes, y tracas de defensa. El alma de los mamparos deberán protegerse en las zonas de trabajo de la cubierta.
Como se indicó anteriormente (véase la página ) con respecto a las vigas de celosía del techo del taller, es conveniente afirmar bien a las mismas viguetas de acero laminado (VAL) de 150 mm x 75 mm (o dimensiones parecidas) en puntos alineados con el eje longitudinal del casco. Ello contribuirá a prestar parte del apoyo para el casco necesario para mantener firme el refuerzo durante las operaciones de construcción, moldeo y curado, si bien la cama de la quilla y el suelo soportarán el peso real de la construcción.
En esta etapa conviene marcar claramente a los lados de las VAL el punto de proa, el punto de popa y todos los centros de las secciones y cuadernas. Ello será de utilidad en la etapa de colocación de las cuadernas que se describe más adelante, así como para colocar la cama de la quilla.
Como toda estructura de ferrocemento debe permanecer inmóvil durante el moldeo, es preciso prever los apoyos que se necesitarán en todas las etapas de la construcción. El grado de apuntalamiento necesario variará naturalmente con el tamaño de la embarcación que se construye y los gastos adicionales que pueda suponer.
La quilla
La quilla es en realidad una larga estructura reforzada parecida a una viga y exige una cama adecuada cuyas medidas deben ajustarse a la anchura de la quilla y que descansa sobre caballetes que tengan la debida resistencia para soportar no solamente el peso final de la embarcación (en el caso de que se mantenga en la cama para el armamento) sino también para ofrecer un margen de seguridad satisfactorio.
La anchura nominal de la quilla para una embarcación de 12-15 m será de 150 mm y su declive y distancia desde la flotación de proyecto puede tomarse de los planos de formas y la cartilla de trazado. Sabiendo que es mejor mantener la construcción del casco a una distancia cómoda para el trabajo y que la distancia total de las vigetas del techo hasta el suelo, así como la altura final de la embarcación en el caso de que el armamento se lleve a cabo mientras se encuentra en la cama, es posible entonces determinar la altura a la que ésta debe disponerse con respecto al suelo y, por ende, la altura necesaria de sus elementos de apoyo.
En la figura 9 puede observarse que la cama está formada por un perfil en "U" invertido de acero dulce de 150 x 75 x 6 y que los caballetes de la quilla están hechos con un angular de acero dulce de 50 x 50 x 6 y con reforzadores de 40 x 40 x 3.
La figura 9 muestra también que al construir la cama se han dispuesto secciones que pueden retirarse para el traslado posterior del casco y la retirada final de la cama de la quilla.
Cuadernas
Cada cuaderna exigirá el pertinente arriostramiento transversal, vertical y diagonal que si se dispone debidamente no sólo confiere apoyo a las cuadernas y al casco en general, sino que también ofrece una plataforma para los operarios durante la construcción y el moldeo. Los detalles de la figura 10 indican que para el refuerzo se ha utilizado tubería negra de agua de 20 mm de diámetro interior.
Figura 9 Ejemplo de cama de construcción de la quilla
4. Conjunto de cama de la quilla
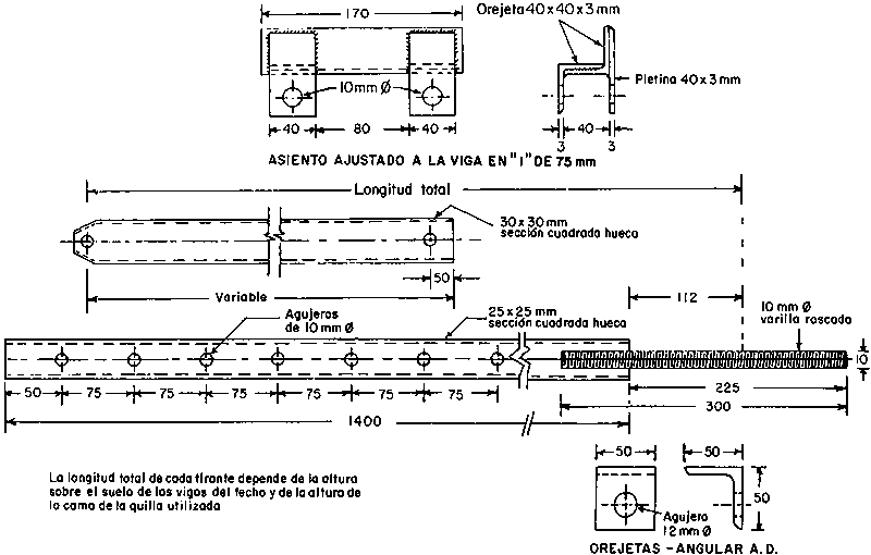
Entre las VAL del techo y el arriostramiento superior de las cuadernas se disponen tirantes ajustables para que sirvan de apoyo y armonizar las posiciones (véase la figura 11). Por ello es importante que el elemento del que cuelgan los tirantes no se deforme posteriormente durante la construcción del buque.
Será necesario, por lo tanto, conocer la altura de la viga de celosía del techo con relación al arriostramiento de cada cuaderna para poder calcular la longitud de los tirantes ajustables.
Por la figura 11 se observará que se ha elegido un perfil hueco rectangular de forma que la menor dimensión exterior, se ajuste a la dimensión interior del perfil mayor. Los tirantes se han taladrado previamente para facilitar su ajuste (y por lo tanto pueden utilizarse para otras embarcaciones) y en los extremos inferiores están provistos de varilla roscada para facilitar la armonía precisa.
Figura 10 Varillas de refuerzo del casco y cuadernas

Figura 11 Conjunto de tirante ajustable
La proa y la popa
La roda y el espejo, por tratarse de elementos en voladizo, exigen el apoyo suficiente para mantenerlos en su lugar mientras avanza el montaje y como soporte complementario durante el moldeo. Sin embargo, deben colocarse de forma que interfieran lo menos posible durante el moldeo.
El apoyo lo proporciona por lo común un arbotante hecho normalmente con angular de hierro dulce. Su tamaño será proporcional a su altura. Los más largos suelen medir 50 x 50 x 6 y los más cortos 40 x 40 x 3.
En la construcción de estos elementos no se utiliza tubo de agua de acero dulce o similar en ninguna parte de la estructura excepto para el arriostramiento.
Anteriormente se venía utilizando tubo en muchos tipos de embarcaciones pero su empleo no se recomienda actualmente a menos que esté provisto rellenar con lechada el interior del tubo.
Esta operación tal vez no sea fácil de realizar por falta del equipo correspondiente y la dificultad de ganar acceso a todos los tubos después y aún antes de moldear el casco. A no ser que se realice este relleno es casi seguro que se producirá una corrosión bastante rápida de las paredes del tubo debido a la presencia de aire y a la condensación.
Como existe una gran diversidad de quillas y rodas entre los distintos tipos de embarcaciones pesqueras construidas en todo el mundo, hay que tener en cuenta los factores siguientes antes de tomar una decisión sobre la construcción de la roda: i) longitud y altura del casco ii) anchura de la quilla y la roda iii) tipo de la vista en planta y del perfil de la roda necesario iv) accesibilidad, para conseguir la entrada mientras se moldea v) tipo de accesorio que se instalará después de moldear, por ejemplo un caperol
Construcción de la quilla
La experiencia ha demostrado que para los buques de 10 a 15 m el diámetro de las varillas se sitúa entre 12 y 16 mm, según el tipo de embarcación. En el caso de una embarcación de pesca, cuyas condiciones de navegación constituyen un factor incierto, se utiliza varilla de 16 mm de diámetro en centros estrechamente espaciados en la base de la quilla.
Dada una anchura de quilla de 150 mm, por ejemplo, se verá que con una separación prudente de 5 varillas de 16 mm de diámetro que dejen un espacio de 14 mm entre sí (véase la figura 12) queda espacio suficiente para que penetre el mortero utilizando un vibrador cuando se moldea la zona de la quilla.
Habiéndose dispuesto la cama de la quilla en el lugar indicado y debidamente equilibrada y según el ángulo correcto, los centros de las secciones/cuadernas deben marcarse claramente a cada lado del perfil en "U" que discurre a lo largo de la parte superior de la cama.
Será necesario disponer tirantes provisionales para emplazar los refuerzos de la quilla, así como para sujetar los refuerzos correctamente en el momento de llevar a cabo el montaje de las cuadernas.
Los tirantes se pueden hacer con varilla cuadrada o de 10 mm de diámetro, con los extremos roscados, y colocados de forma que puedan pasar entre las dos varillas exteriores de 16 mm de diámetro del refuerzo de la quilla y a través de la parte superior de cama. Conviene colocar dichos tirantes junto a la base de la quilla y pie de las cuadernas, aunque sin obstaculizarlas, y dejando espacio suficiente para la penetración de la mezcla para los que queden en posición durante el moldeo.
Después de taladrar la parte superior de la cama de la quilla atendiendo a la posición y anchura de los tirantes de refuerzo, cabe colocar las cinco varillas de 16 mm de diámetro utilizando un posicionador adecuado (véase la figura 13). Ahora se pueden colocar y apretar los tirantes provisionales con el fin de sujetar las varillas en el lugar debido. Cabe entonces iniciar el trabajo para la fabricación de la red de varillas del fondo necesaria en la zona de la coz del timón. Al mismo tiempo deben escalonarse, prepararse y soldarse todas la uniones de las varillas debidamente.
A continuación se pondrá cuidado en la forma en que las varillas de la quilla en el extremo proel se conectan con la roda. La varilla central empalmará con la varilla central de la roda y, por lo tanto, puede cortarse a unos 150 mm a proa del emplazamiento de una cuaderna al principio de la parte recta de la quilla. El par exterior de varillas de la quilla puede doblarse previamente para seguir el pie de la roda y enlazar con ésta en un punto que tenga en cuenta la anchura proyectada de la roda. El par interior de varillas seguirá una línea paralela al eje longitudinal y se doblará de acuerdo con la curva del pie de la quilla, cortándose para tener en cuenta la intersección con el par exterior de varillas.
Ahora puede ya soldarse por puntos la varilla de 8 mm a intervalos correspondientes al punto medio entre cuadernas, a lo largo de la parte superior de las varillas de la quilla para que queden en su posición definitiva. En esta etapa será útil marcar los centros de las cuadernas cuidadosamente a lo largo del extremo superior de las varillas de la quilla para los trabajos de construcción ulteriores. Pueden retirarse ahora los tirantes roscados provisionales y quitar de la cama las varillas de la quilla y colocarlos sobre caballetes adecuados.
La malla de alambre que va a utilizarse para el casco, en este caso malla soldada de alambre galvanizado de 13 mm por 13 mm y del calibre 19, puede ya colocarse en el piso del taller según la longitud requerida. Se grapan suavemente las tres capas permitiendo que se solapen tres cuadrados - 40 mm - por el extremo largo de cada capa.
Se centra ahora la longitud de la malla preparada sobre la parte inferior de las varillas de refuerzo de la quilla con las que se unen utilizando grapas o alambre de enlace del calibre 16. Hay que procurar que las grapas no coincidan con la ubicación de las cuadernas y los tirantes provisionales, pero al mismo tiempo deben estar lo bastante próximas, más o menos a 125 mm entre centros, para que la malla quede firmemente sujeta y plana con respecto a las varillas de la quilla.
Terminada esta operación, puede ponerse de nuevo el conjunto sobre la cama de la quilla, centrado y colocado con precisión en los centros de las cuadernas sobre espaciadores de madera (teca) o de plástico reforzado con fibra de vidrio (PRFV) de 10 mm, de forma que no coincidan con la posición de las cuadernas y los tirantes provisionales pero lo bastante cerca de las posiciones de aquéllas a fin de no entorpecer la penetración del mortero. Estos espaciadores pueden viselarse para que queden sujetos al aplicar el mortero o bien retirarse después del moldeo llenando los huecos con resina epoxídica.
Una vez apretados los tirantes metálicos provisionales, la malla que sobresale puede doblarse suavemente por el lado del soporte de la quilla para que estorbe lo menos posible en la realización del trabajo.
Figura 12 Refuerzo típico de la quilla

Figura 13 Herramientas útiles

5. Refuerzo de la quilla sobre la cama
La resistencia de la quilla puede aumentarse todavía más instalando unas varillas después de la colocación de las cuadernas. Dichas varillas deben colocarse en la línea del alefriz o bien puede agregarse un longitudinal en el eje geométrico de la quilla. La necesidad de uno u otro sistema vendrá impuesta por la longitud y profundidad de la estructura de la quilla. Se observará que una vez terminado el forro de la quilla una viga tubular totalmente reforzada es el elemento que permite a la quilla conferir una gran resistencia al casco.
Construcción de la quilla vertical
A continuación se dobla una varilla de 16 mm de diámetro siguiendo el plano de perfil del proyecto, utilizando la plantilla hecha anteriormente (véase el párrafo 2.10) desde el canto del espejo en crujía hasta superar el extremo popel de la quilla de hierro. Déjese espacio para marcar el eje geométrico del eje del timón, el eje longitudinal y las marcas de las secciones, así como las riostras provisionales que serán necesarias. En este tipo de construcción debe dejarse un margen de 12 mm para el refuerzo del casco y el recubrimiento de mortero fuera de la varilla de la quilla vertical. Después de instalar el tubo interior de la bocina se seguirá reforzando la varilla de la quilla vertical.
Figura 14 Construcción típica de la roda

Construcción de la roda
La primera varilla de la roda, de 16 mm de diámetro, se doblará según la plantilla preparada anteriormente (véase el párrafo 2.10) dejando un margen de 12 mm para el forro exterior. En este caso el canto del alefriz se prolonga a lo largo de toda la roda (en oposición a la línea imaginaria seguida a veces por los proyectistas). Se dobla una varilla de 16 mm de acuerdo con el alefriz marcada en la plantilla, dejando también un margen de 12 mm por el interior del alefriz. Las dos varillas tendrán lugar necesario para la inserción de tubo de acero en la zona del caperol de la roda para elementos de sujeción cuyo tamaño habrá sido indicado normalmente por el proyectista. El diámetro interior del tubo debe ser algo superior al diámetro del perno de sujeción más el revestimiento galvanizado. El caperol de la roda se afirmará con pernos galvanizados de 16 mm, por lo que el diámetro interior del tubo debe ser de 18 - 20 mm.
Se sujetan provisionalmente con clavos dos varillas de 16 mm a la plantilla, soldándose otra varilla de 6 mm en puntos distanciados unos 115 mm aproximadamente en la varilla de la roda y del alefriz alternativamente (véase la figura 14). Una vez montada esta armadura, y antes de sacarla de la plantilla, se marcan con precisión el extremo de la roda, la línea de cubierta y la flotación de proyecto junto con las secciones de las cuadernas (preferiblemente utilizando una pintura de emulsión blanca a cada lado de la marca antes de utilizar una hoja de sierra).
Los elementos de la roda deben arriostrarse provisionalmente antes de retirarlos de la plantilla y así permanecerán hasta que se acoplen los soportes en pirámide apoyados en el piso. De esta forma hay pocas posibilidades de distorsión.
6. Refuerzo entre la roda y la quilla
Para montar la roda en la posición correcta, 12 mm a popa del punto proel, se utiliza una plomada. Trabajando hacia la flotación de proyecto, puede enlazarse la roda hasta la posición de las cuadernas y cortar la varilla de la roda para que se ajuste a la posición final de la varilla central en la quilla.
La varilla del alefriz se empalmará en un punto a media distancia entre las cuadernas a una varilla continua de 16 mm situada en el eje longitudinal a 12 mm por debajo del alefriz que discurre a todo lo largo de la quilla y que se conecta con la quilla vertical. Se colocará en su posición una vez montadas las cuadernas.
Se doblan dos varillas de 16 mm más según el alefriz dejando un margen de 12 mm para tener en cuenta el espesor del forro a cada lado de la roda. Estas dos varillas se juntan por medio de VEFS de 6 mm (varillas estiradas en frío semibrillantes) y arrancan del extremo superior de la roda y espaciadas a 350 mm. Después de colocar las cuadernas, se sueldan transversalmente a las varillas del alefriz varillas de 6 mm espaciadas a 50 mm por la cara interior de la roda. Las dos varillas exteriores del alefriz se cortarán por el lado proel de la cuaderna más próxima al extremo de la parte recta de la quilla cuando ésta se haya colocado.
Más adelante, la cara interior de la roda se cubre con malla que se grapa después de haber practicado agujeros de acceso para los extremos del vibrador a través de la varilla central del alefriz para lograr un "relleno" completo cuando se someta la roda a vibración durante el moldeo.
En su lugar, el alefriz se ha proyectado como una raya espectral y es necesario que la roda tenga más resistencia, ello puede conseguirse creando un vagra a lo largo de la roda o bien haciendo una superficie interior artificial para crear una sección triangular reforzada.
Varillas de las cuadernas
Las cuadernas se construyen directamente a partir de las plantillas del plano del cuerpo. Como las cuadernas serán probablemente bastante pesadas y difíciles de manipular una vez terminadas, conviene colocar las plantillas en una superficie plana y construirlas en el taller contiguo al casco que va a construirse. La primera consideración que debe tenerse en cuenta al construir las cuadernas es decidir el mejor método para doblar las varillas. La conformación de varillas por métodos mecánicos no suele resultar práctica debido a la variación de curvas necesarias, muchas veces atípicas.
La experiencia me ha indicado que la mejor manera de conseguir el contorno adecuado de la varilla es con un equipo "de fabricación casera" disponiendo verticalmente un tubo de acero dulce de 65 - 75 mm en el extremo de la zona de construcción de las cuadernas, fijado en el suelo y a la estructura del techo.
A este tubo, y a una altura que resulte cómoda para el operario, se fijan medias secciones de tubo de 25 mm de largo cuyo diámetro interior coincida con el exterior de la varilla. Pares de medios tubos se descentran entre sí y del tubo principal y se afirman lo suficiente para resistir los esfuerzos de flexión de la cuaderna. Los mismos soportes serán necesarios en la base del tubo vertical o cerca de ella de forma que si se realizan dobles curvas y la varilla es demasiado larga ésta pueda ajustarse.
Cada par de varillas, en este caso de 16 mm de diámetro, debe doblarse 12 mm por el interior de la forma de cuaderna y mantenerse recta en un plano vertical (estos 12 mm suponen un margen para el espesor del forro fuera de la varilla). Ello puede conseguirse empezando por la línea del arrufo, dejando un exceso de longitud de 10 mm y trabajando de forma gradual, valiéndose de yeso para marcar la combadura adicional deseada, hasta que se ha llegado al contorno completo. Una vez terminada la combadura, el par de varillas se clava provisionalmente en el tablero de la cuaderna a 12 mm hacia el interior de la línea de cuaderna. La base de cada varilla cortada en su intersección con la pata de la quilla y las dos varillas de la cuaderna se unen con un trozo de varilla de 16 mm de diámetro paralelo a la quilla.
Construcción de las vagras y varengas
A continuación, utilizando los datos obtenidos de la cartilla de trazado y el dibujo que indica los detalles de los refuerzos (véase la figura 19 y el dibujo IND 101 p4 a,b,c) se observará que las varengas y vagras deben tener un espesor de 25 mm una vez acabadas. A fin de crear el canto necesario para que los enlucidores puedan trabajar y como guía para el espesor deseado, se utiliza pletina de 25 x 3 mm por la cara interior de las vagras y angular de 25 x 25 x 3 mm en el borde superior de las varengas. Tanto la pletina como el angular se taladran para poder insertar pernos hexagonales de 8 mm a una distancia de 225 mm entre centros de forma que el canto de metal pueda retirarse una vez terminado el moldeo. Para dejar un rebaje encima de la tuerca en el canto de la cuaderna se colocan una o dos (dos es mejor) arandelas elásticas de 8 mm. Ese rebaje, al retirar los pernos y arandelas, se llena con resina epoxídica cuando el casco está seco y listo para el armamento del buque.
Al escoger los pernos de 8 mm es aconsejable prever una tuerca de seguridad por encima del metal, para que ninguno de los pernos se afloje durante el resto de la construcción. Este trabajo es necesario para conseguir un dispositivo metálico de cantear que pueda retirarse de manera que una vez curado el cemento quepa retirarlo y queden unos cantos de mortero bien acabados en las vagras y varengas.
Para cada cuaderna, las dimensiones de la altura de las varengas, profundidad de lasvagras, requisitos de las groeras y demás detalles que afectan a la construcción de las cuadernas, pueden encontrarse en los dibujos de las secciones del casco y las cuadernas facilitados por el proyectista. Utilizando la información aportada, puede situarse y cortar a la longitud requerida el angular de las varengas, aflojarse la pletina de las cuadernas o doblarla previamente para que se ajuste al borde interior de la vagras, clavándose provisionalmente ambos elementos a la plantilla. Después de comprobar de nuevo su posición y dimensiones pueden unirse la pletina y el angular.
Se introduce una VEFS de 8 mm de diámetro (para mayor resistencia y control), curvándola en caso necesario, por el extremo superior de la vagras hasta que llegue a la cara superior del refuerzo de las varengas. A continuación se suelda por puntos al centro de la varilla de las cuadernas y al centro de cada tuerca de la pletina de las vagras, procurando no soldar los pernos al mismo tiempo.
Si la cartilla de trazado prevé que las varengas tengan en todas las cuadernas dos capas de varillas de 6 mm para que cada lado quede enrasado para el enlucido se suelda otra varilla de 12 mm por el centro a las tuercas del angular de cantear de las varengas. La colocación de las varillas en el centro del borde de las cuadernas y las varillas de las cuadernas puede conseguirse juntándolas fuera de la plantilla de construcción de cuadernas antes de iniciar el trabajo de soldadura por puntos.
7. Varillas de cuadernas y vagras
Se construye la vagra colocando en zigzag VEFS de 6 mm situadas a unos 115 mm entre centros soldadas por puntos alternativamente al centro de la varilla de 8 mm sobre el canto de las vagras y el centro de la varilla de las cuadernas. Si se precisa una groera a nivel de cubierta, ésta debe hacerse con una pletina de 25 x 3 mm doblada en forma de "U" invertida de 50 x 50 mm en cuyo centro se pondrá un perno de 8 mm. El lugar y forma de la groera vendrán determinados por la brusca en la cuaderna correspondiente. La brusca puede determinarse juntando la plantilla al eje central de la cuaderna y haciendo coincidir la cara alta de aquélla a cada lado de la cuaderna con la marca de la cara alta de la cubierta en la plantilla de la cuaderna.
Ahora puede procederse ya a colocar el refuerzo de las varengas pero antes de ello deberá comprobarse el plano de secciones de cuadernas para ver y se indican más datos, como a la bancada del motor, la línea de ejes, etc. Por ejemplo, si en esta etapa se conoce ya el tipo de bancada del motor será posible incluir varillas verticales de 12 mm en la estructura de las cuadernas para enlazar más tarde con el refuerzo longitudinal de dichas bancadas, así como con las almas y refuerzos longitudinales del casco si lo exige el proyecto.
Disponiendo ya de la información sobre la bancada del motor, la línea de ejes y otros datos pertinentes, pueden colocarse las varillas verticales de 12 mm en las varengas desde el eje central de las cuadernas y dichos polines teniendo debidamente en cuenta el espesor del forro exterior de los mismos. Es posible que el proyecto no exija un refuerzo longitudinal complementario ya que éste lo proporciona la longitud de la bancada. Obsérvese que los lados popel y proel de la bancada pueden afinarse para convertirlos en refuerzos del casco, con la consiguiente reducción del espacio entre los pares de varillas verticales de 12 mm en las cuadernas correspondientes.
Para mantener el espesor de las varengas a 25 mm y utilizando dos capas de varillas de 6 mm será necesario cortar estas últimas a fin de que empalmen con las de 12 mm, tanto vertical como horizontalmente. Con ello el refuerzo quedará a paño y dejará unos 6,5 mm a cada lado para la malla y el mortero.
Las varillas de 6 mm de diámetro que se indican en el dibujo sobre el refuerzo del ferrocemento están espaciadas a 50 mm. Este espaciamiento, caso de que estén de acuerdo el proyectista o la sociedad de clasificación, puede aumentarse a 75 mm para las varillas verticales y a 50 mm para las transversales, o bien 75 mm en ambas direcciones.
Antes de seguir con el procedimiento de colocación de las varillas, por el dibujo de la cuaderna 10 se ve, por ejemplo (véase el diagrama del anexo IND 101 004b), que las varengas tienen una entrada para dejar paso al eje de la hélice y es necesario practicar agujeros para la tubería de sentina, así como imbornales a cada lado de la bancada del motor y en el eje longitudinal. La entrada para el eje puede tener forma semicircular según el tamaño requerido formado, con una pletina de acero dulce de 25 x 3, soldada al angular de las varengas después de haber practicado agujeros y de poner pernos de 8 mm. La varilla transversal de 12 mm deberá seguir esta forma por lo que es más práctico montar el refuerzo de la entrada para el eje antes de soldar la varilla superior transversal de 12 mm, que ahora estará formada por dos piezas.
Los orificios para el tubo de sentina pueden realizarse mediante un anillo galvanizado de un diámetro ligeramente superior al diámetro exterior del tubo que vaya a utilizarse, y se practicarán en las varengas en las posiciones correctas.
Las groeras restantes pueden realizarse de la misma forma que las de la cubierta, es decir, de 50 x 50 mm con una pletina de 25 x 3 mm, situadas como es debido y sujetándolas con clavos a la plantilla.
La primera varilla de 6 mm que debe soldarse por puntos en su lugar debe colocarse paralela a las varillas de 12 mm que corren a través de la parte superior de las varengas e inmediatamente debajo para dejar espacio para el grapado posterior de la malla. Ello ahorrará el empleo de alambre de enlace alrededor de la varilla superior de 12 mm ya que el engrapado es más rápido.
A continuación pueden soldarse por puntos las restantes varillas de 6 mm. Una vez realizada la operación, compruébese que todos los elementos que exige el proyecto han quedado incluidos.
Arriostramiento de las cuadernas
La etapa siguiente consiste en arriostrar las cuadernas. Las riostras, que podrán utilizarse posteriormente, consistirán en tubo de agua negro ordinario de 20 mm de diámetro interior de acero dulce, como indica la figura 10. El arriostramiento transversal se fijará a una altura que abarque todas las cuadernas posibles, ya que los tubos se utilizarán para soportar los tablones del andamio en el trabajo que se realizará posteriormente. La posición en un casco de 12,8 m, por ejemplo (véase el gráfico del anexo IND 101 P2a), discurrirá paralelamente a la línea de agua LL1000. En este proyecto todos los tubos transversales pueden fijarse en esta posición hasta la cuaderna 3, a partir de la cual el tubo deberá elevarse para las cuadernas 2, 1 y 0 a fin de proporcionar el arriostramiento debido.
Se dispone un tubo verticalmente desplazado a un lado del eje longitudinal para poder trabajar cómodamente en la alineación del eje de la hélice y del longitudinal a lo largo del casco. Hay que recordar que el tubo debe estar desplazado siempre hacia el mismo lado en toda su longitud.
Se suelda el tubo vertical al tubo horizontal y al angular de las varengas. Igualmente se suelda por puntos el tubo horizontal a la cara interna de la pletina de las vagras. Se disponen en la parte superior dos tubos más, uno a babor y otro estribor, que partiendo del tubo en crujía discurren diagonalmente por la parte superior hasta un punto, ya en la cara interior de la bulárcama o el angular de varenga que divide la cuaderna en secciones aproximadamente iguales.
Como al proceder al montaje se conectarán unos tirantes al tubo transversal situado en el extremo superior de la cuaderna, habrá que proveer arriostramiento complementario cerca de los extremos del tubo a cada lado. Ello se consigue soldando diagonalmente pequeños trozos de varilla de 12 mm en los extremos superior e inferior del tubo transversal hasta la cara interior de la vagras. Ello evitará que el arriostramiento y la cuaderna se deformen al montarse y colocarse con precisión en el lugar que le corresponde.
La última operación antes de separar la cuaderna del tablero de construcción consiste en hacer un marca con sierra sobre pintura blanca que indique el número de cuaderna, la línea de arrufo, la flotación de proyecto, el durmiente, la línea de cubierta y otras líneas de agua que puedan se útiles, así como el eje longitudinal.
A continuación puede ya colocarse la cuaderna sobre un caballete para aplicar la malla. Las soldaduras que tengan que duplicarse pueden realizarse en esta etapa comprobando la corrección por lo menos del arriostramiento tubular y las juntas de la varilla de cuadernas así como todas las demás soldaduras de dicha varilla.
Colocación de la malla en las vagras y varengas
De acuerdo con la cartilla de trazado, las varengas y las vagras de la estructura deben tener tres capas de malla de 13 mm x 13 mm de alambre del calibre 19 a cada lado de la varillas. El grapado debe realizarse ordenadamente, dejando entre cada una unos 125 mm, si bien esta separación puede ser menor en los bordes para que la malla quede tirante.
9. Colocación de la malla en las cuadernas
Se corta la malla paralelamente al borde de la pletina y el angular. Insertando una pletina de 3 mm entre el borde la malla y el angular se crea un espacio de manera que no queden flecos de la malla que se oxidarían al retirar los elementos amovibles de cantear las cuadernas después de curar el casco.
En la capa superior de la malla y a cada lado de las cuadernas se deja un solape de 40 mm que se dobla alrededor del refuerzo para que no estorbe durante el trabajo. Más adelante este solape se enrollará alrededor de las varillas del refuerzo del casco. Puede ocurrir que la sociedad de clasificación o el proyectista exijan que las tres capas penetren en el casco pero, según la experiencia, ello resulta innecesario y porque frecuentemente formará una concentración de capas adicionales de malla en esta zona y dificultará la penetración del mortero en el momento de moldeo.
Cuadernas maestras
El método seguido en la colocación de las cuadernas utilizando la técnica del casco en posición vertical en esta forma de construcción con ferrocemento es casi el mismo que el empleado en la construcción con madera.
Normalmente se iniciará la colocación mientras prosigue el proceso de construcción de las cuadernas. Será necesario, por lo tanto, decidir las cuadernas que se quiere colocar en primer lugar.
La primera condición consistirá en examinar el proyecto del casco y decidir cuántas cuadernas maestras se utilizarán como control en el procedimiento de colocación. Para embarcaciones de 12-17 m, normalmente se utilizan dos cuadernas maestras, las cuales ofrecen un buen control del 25-30% de los extremos popel y proel del casco.
Al mismo tiempo, la roda y la estructura básica de la quilla vertical se habrán ya construido, dado que ello es posible en cualquier momento después de terminadas las plantillas.
Las cuadernas maestras se llaman así porque una vez montadas descansarán provisionalmente y en la debida posición sobre soportes en pirámide y unas riostras complementarias las mantendrán verticales y niveladas, y además alineadas con la totalidad de la estructura de arriba abajo. En esta etapa se ha colocado ya la quilla, la cama, la malla del fondo y el refuerzo . Una vez fabricadas, las VAL y un juego completo de tirantes se han instalado en el techo del edificio y se han terminado ya las cuadernas maestras y están dispuestas para el montaje.
Para colocar las cuadernas maestras en su lugar es necesario disponer de algún mecanismo elevador que las ice a la altura aproximada por encima de la quilla y lo más próximas posibles a su posición definitiva a proa y a popa.
Ello puede conseguirse utilizando un fuerte aparejo de ojo y gancho montado junto al apoyo del tirante (véase la figura 11) sobre la VAL. Dicho aparejo se fabrica de forma que el centro del ojo penda por debajo y en el centro de la VAL y de él se cuelga un cuadernal de cuatro roldanas por las que pasa un cabo trenzado de nilón de 5 mm provisto de mordazas de gancho que pueden pasar fácilmente varilla de 10 mm de diámetro. El extremo inferior de las roldanas lleva también esas mordazas y puede doblarse una varilla de 8 - 10 mm en forma de "U" para la elevación de la riostra tubular transversal de la cuaderna a cada lado del eje longitudinal.
Para mover con facilidad el cuadernal de una posición a otra de la VAL basta con un tubo de pequeño diámetro y longitud suficiente que enlaza con una varilla corta de 12 mm soldada al aparejo antedicho y que apunta al suelo a un pequeño ángulo.
En el momento de construcción de la cuaderna se le podían haber acoplado patas de quilla pero es tan fácil curvarlas previamente y ajustar la curvatura al ángulo de la varilla de cuaderna que penetra en el casco. Este método exigirá una gran precisión para evitar modificaciones en una etapa posterior a fin de asegurar la concordancia entre el contorno y la forma.
En la vertical del caso se fijan varillas de 12 mm de las cuadernas a cada lado de la quilla dejando un margen de 12 mm para tener en cuenta el espesor del forro. Se agregan varillas de 8 mm, precurvadas según la forma necesaria, a los lados proel y popel de la varilla de las cuadernas y a la pata de quilla en una sola operación después de haber montado las cuadernas, procurando que estén bien alineadas.
Se iza ahora la cuaderna maestra hasta la altura aproximada y se mantiene provisionalmente con el centro sobre el eje longitudinal de la quilla. Se colocan a continuación los tirantes y se ajustan de forma que el talón inferior pueda soldarse a la riostra tubular transversal superior en la cuaderna. Cuando sea posible, la varilla roscada debe mantenerse alejada del alma para evitar interferencias cuando se proceda al enlucido del casco, manteniendo al mismo tiempo la brazadera del tirante alejada de crujía todo lo posible. Se ajusta el tirante manteniendo nivelada la cuaderna de forma que la brazadera soldada a la riostra tubular se encuentre en el centro de la rosca, para permitir el reajuste de la cuaderna por ambos lados.
10. Montaje de cuaderna maestra
Manteniendo la cuaderna sobre el eje longitudinal se deja ahora que su peso sea sostenido por los tirantes. Se realiza una comprobación inicial para ver que la cuaderna se encuentra a la altura correcta desde la parte superior de la quilla a la de flotación de proyecto.
Se comprueban ahora las marcas de la flotación de proyecto y de las líneas de agua realizadas a cada lado de la cuaderna y en el arriostramiento del eje longitudinal ya sea con un nivel corriente o un nivel de agua.
El nivel de agua puede consistir en un tubo de CPV de pequeño diámetro con un tapón a cada extremo. Antes de utilizar el tubo se sacan los tapones y las burbujas que pueda haber en el mismo y se llena el tubo con la cantidad de agua que haga falta.
De existir alguna discrepancia en cuanto al nivel, la cuaderna puede ajustarse con precisión en los extremos roscados de los tirantes y utilizando la contratuerca provista a cada lado de los cartabones angulares de los tirantes se sujeta la cuaderna nivelada. Se comprueba de nuevo a continuación la posición correcta del eje longitudinal con respecto a la quilla mediante una plomada.
Se examina la cuaderna para comprobar si está en un plano vertical y si el centro de la varilla está centrado con la marca previamente hecha en la cama y el refuerzo. Puede emplearse arriostramiento provisional para mantener la cuaderna en posición con respecto a proa y a popa. A continuación pueden cortarse en la longitud desea e insertarse las varillas verticales de la quilla de 12 mm. Tras una comprobación final, se sueldan las patas al lado inferior de la varilla de la cuaderna y a la parte superior de la varilla exterior a cada lado de la quilla (véase la figura 12).
11. Soporte de cuaderna maestra
La cuaderna parecerá que está a escuadra con la quilla pero es probable que no esté, y, por lo tanto, para comprobar que está a escuadra con el eje longitudinal de la embarcación cabe usar un listón largo y con un extremo puntiagudo o un cordel. Se sujeta el listón en el eje longitudinal de la quilla en un punto determinado (tal vez otra marca de cuaderna más proel) y se desplaza diagonalmente hasta la marca de arrufo en la cuaderna. Se hace una marca en el listón y se repite la operación por el otro lado. La diferencia obtenida se divide por dos y se utiliza arriostramiento provisional para fijar la cuaderna en su nueva posición.
Mientras se realiza la operación debe mantenerse el eje longitudinal de la cuaderna a popa y proa y ésta debe mantenerse también perfectamente recta entre una varilla y otra en la posición del arrufo.
Dada la altura de estas cuadernas, pueden construirse soportes en pirámide con angular de acero dulce de 50 x 50 x 6 para ajustar su posición 100 mm por debajo de la marca de arrufo y colocarse también en la curva de pantoque. Los soportes no se sueldan directamente a la cuaderna sino que se insertan unas clavijas de varilla de acero entre el soporte y la varilla de cuaderna, que pueden soldarse ahora.
Se realiza una comprobación final en cuanto a la perpendicularidad de la cuaderna con respecto al eje longitudinal de la embarcación. Una vez comprobada aquélla puede fijarse la base del soporte en pirámide al suelo del taller. La misma operación se realiza con las demás cuadernas maestras.
Antes de dejar de lado las cuadernas maestras conviene comprobarlas nuevamente ya que todo error puede multiplicarse al seguir colocando las demás cuadernas.
Es fácil en esta etapa tender un cabo por encima del arriostramiento de la cuaderna en el eje longitudinal entre los puntos popel y proel y comprobar que corta el eje longitudinal de cada cuaderna, con lo que se consigue la precisión con respecto al eje longitudinal. También cabe verificar con exactitud la distancia entre los centros de las cuadernas maestras, no solamente sobre el eje longitudinal sino paralelamente al mismo y lo más cerca posible del arrufo.
Pueden disponerse plomadas desde la línea de arrufo en cada lado de la cuaderna para comprobar que ésta no se ha "ondulado" de arriba abajo . Ello podría ocurrir si el doblado de las varillas no se ha realizado debidamente. Es mucho más fácil llevar a cabo estas comprobaciones en esta etapa que no encontrarse con errores más adelante.
Cuadernas del cuerpo principal
Una vez colocadas satisfactoriamente las cuadernas maestras, puede ya pensarse en la construcción de las cuadernas intermedias. En la construcción de embarcaciones de ferrocemento las cuadernas del cuerpo principal están dispuestas a intervalos regulares, que en muchos casos serán de 600 mm. De ello se desprende que para apoyar provisionalmente las cuadernas adicionales conforme al espaciamiento requerido será ventajoso utilizar un simple posicionador de varillas con clavillas que correspondan al diámetro exterior del arriostramiento tubular.
Las cuadernas intermedias pueden ahora colocarse en su lugar, correctamente niveladas tanto a través de las cuadernas como longitudinalmente, utilizando la marca de la flotación de proyecto indicada en el arriostramiento en el eje longitudinal de las dos cuadernas maestras como marca de referencia. Los tirantes y patas de quilla se fijan de la manera indicada anteriormente.
Una vez que el eje central vertical de cada cuaderna montada coincide con el centro de la quilla se utiliza una pletina de 50 x 6 mm a lo largo del eje longitudinal por encima del arriostramiento transversal superior y se suelda por puntos a cada cuaderna. Se retiran los espaciadores de varillas provisionales una vez unidas las cuadernas mediante la soldadura de varillas de 8 mm dentro de la cara del alma por encima del arriostramiento tubular. También se utiliza una varilla de 8 mm en la curva de pantoque pasándola por encima de cada varilla de cuaderna y a través de las vagras y varengas antes de soldarla a cada costado de la embarcación. Con ayuda de una plomada como antes, conviene comprobar que cada cuaderna está en posición recta y vertical y tiene las dimensiones debidas, es decir, que se encuentra a 600 mm de la cuaderna contigua.
Por último, cuando se ha colocado en su lugar la última cuaderna del grupo, el espacio entre los centros de cada cuaderna medido desde cualquier punto debe ser de 600 mm. De no ser así, debe investigarse dónde se ha cometido el error y corregirlo.
12. Construcción de las cuadernas y la roda
Cuadernas del extremo proel
Antes de colocar las cuadernas a proa de la cuaderna maestra popel habrá que colocar en posición la quilla vertical. La etapa inicial de la construcción de esa quilla consiste simplemente en tomar una varilla de 16 mm que se ha doblado dejando un margen de 12 mm para el forro del casco, debidamente arriostrada y que una vez colocada en su lugar pasará a través del eje longitudinal de las cuadernas adyacentes así como del espejo. Por lo tanto, deberá hacerse una entalla de 16 mm de anchura en cada una de ellas, 8 mm a cada lado del eje longitudinal a través de las varillas de las cuadernas. La quilla vertical, una vez colocada en su lugar, deberá sujetarse con dos soportes en pirámide, uno por debajo,del extremo del espejo y el segundo, provisional, en un punto intermedio. Deben estar bien afirmados al suelo y a la varilla de tal quilla.
El procedimiento de montaje en el extremo popel puede aplicarse, igual que anteriormente, en las cuadernas de la parte popel, comprobando nuevamente que el eje longitudinal es correcto y que las alturas, niveles y distancias entre ellas son las debidas.
El espejo de popa
El espejo quedará terminado con un alma de refuerzo y la colocación en su lugar de la capa exterior de varillas de 6 mm. Así sería en el caso de que el contorno ampliado no exigiera ninguna modificación. Pero tratándose del primer casco de este modelo que se construye es útil colocar en la forma del punto de proa un simple marco arriostrado hecho de varilla y colocado temporalmente junto a popa del punto popel. Las varillas de 8 mm utilizadas como varillas de alineación se unen con alambre de enlace a distancia de 150 mm entre centros a lo largo de todo el cuerpo popel del casco hasta la varilla de la cuaderna del punto popel.
Las varillas de la cuaderna del espejo pueden insertarse entonces individualmente para empalmar con las varillas de la quilla y en el interior de las varillas de alineación, comprobando que su posición longitudinal es correcta y que las marcas de la línea de arrufo coinciden. Si hubiere que realizar alguna modificación del contorno de las varillas de la cuaderna del espejo lo más probable es que sea en la curva de pantoque. Como esas varillas están sueltas en esta etapa de construcción, es fácil doblarlas de nuevo a babor y estribor hasta lograr la forma perseguida. Una vez conseguida ésta las varillas pueden devolverse a la plantilla original del espejo que se ha modificado para ajustarse a la nueva forma. Cada modificación necesaria puede ser tan sólo de unos pocos milímetros pero el esfuerzo vale la pena atendiendo a la suavidad de la línea.
Una vez corregida la forma de las varillas del espejo pueden insertarse en el lugar necesario, dejando un margen para el espesor del forro a proa del punto popel.
13. Plantilla del punto popel y construcción del espejo de popa
Antes de su colocación definitiva, habrá que revisar el espejo para que esté totalmente a escuadra con el eje longitudinal. Ello se realiza independientemente de las demás cuadernas utilizando un listón (al igual que con las cuadernas maestras) y comprobando la distancia entre la marca de arrufo y un punto del eje longitudinal, bien en la quilla, bien más fácilmente, utilizando el eje longitudinal dispuesto en la parte superior del arriostramiento de las cuadernas que consiste en una pletina de acero dulce de 50 x 6 mm a lo largo de todo el casco.
A continuación nos ocuparemos del alma de las gambotas de popa, que estarán representadas en el dibujo en sección de la cuaderna y en el plano de construcción del casco. Pueden insertarse ahora varillas verticales de 12 mm en el espejo en los centros de dichas gambotas.
Si el proyecto del casco comprende una zona plana en el cintón de defensa coincidiendo con la parte superior de la línea de cubierta y el codillo, se dispondrán varillas de 12 mm a lo largo de estas dos líneas atravesando el espejo hasta la brusca de la cubierta en este punto. Ello da lugar a una reducción de la distancia entre las dos varillas de 12 mm que compensa por la adición posterior del armazón del casco y el mortero con lo que la anchura final vuelve a ser la proyectada.
Estas dos varillas transversales de 12 mm se hacen penetrar 6 mm en la varilla de la varenga de la bovedilla de forma que la capa exterior de varillas de 6 mm que se aplicará posteriormente que enrasada con el exterior de las varillas de 6 mm. La varillas verticales de 12 mm del alma no solamente forman la base del alma sino que dividen la anchura del espejo en centros apropiados cuando se suelda la capa exterior de varillas de 6 mm al armazón del espejo.
La plantilla provisional de las cuadernas del punto popel se mantiene en su lugar hasta que el espejo ha sido nuevamente reforzado por la adición del elemento de la línea de arrufo y se han conectado los tirantes a las esquinas del espejo.
Se adosa ahora a las gambotas un angular desmontable de 24 x 24 x 3 mm que contribuirá a mantener la zona plana del espejo a nivel y al mismo tiempo indicará a los enlucidores el espesor que deben dar a las gambotas. Se terminan ahora provisionalmente el armazón y borde de las gambotas a unos 100 mm por encima del interior del casco, si es que deben continuar hasta la parte interior del armazón del casco para dar resistencia adicional al extremo popel del casco. Esta parte puede ahora dejarse y pasar a trabajar a proa de la cuaderna maestra proel.
Roda y cuadernas de proa
La roda, que ya ha sido construida en su forma básica, se coloca ahora en su lugar. Se recordará que el extremo popel de la varilla de 16 mm de la roda debe coincidir exactamente con el punto en que se cortó la varilla central de la quilla. Al mismo tiempo la varilla de 16 mm del alefriz debe enlazar con la continuación de la varilla del alefriz a través de la quilla.
Como la roda lleva marcadas la flotación de proyecto, las líneas de arrufo, las marcas de las cuadernas y algunas de las líneas de agua por encima de dicha flotación, resulta relativamente fácil fijar su altura trazando una línea a través de la flotación de proyecto de la embarcación y fijar la proa y la popa con las marcas de las cuadernas en la cama de la quilla. De la misma manera, su emplazamiento se fijará con precisión utilizando una plomada en el punto proel de la embarcación y fijando el extremo superior de la varilla de la roda 12 mm a popa del punto popel.
El principal aspecto que hay que comprobar es que la roda queda recta desde su extremo superior hasta la quilla y que se mantiene en el eje longitudinal. Ambos aspectos pueden comprobarse fijando soportes en pirámide, como se hizo con las cuadernas maestras esta vez uniendo uno de ellos al extremo superior de la roda y el segundo junto al punto de la flotación de proyecto, manteniéndolo al mismo tiempo bien afirmado al suelo. Estos soportes en pirámide, aunque se hayan retirado temporalmente para facilitar el refuerzo del casco, se mantendrán en su lugar durante el moldeo del casco.
Una vez montada satisfactoriamente la roda pueden colocarse las restantes cuadernas de proa en el lugar que les corresponde. Como el tamaño de las cuadernas se va reduciendo pero su altura crece, el nivelado no se realizará a partir de la flotación de proyecto sino en las líneas de agua superiores y la línea de arrufo, motivo por el cual deben marcarse líneas de agua adicionales en la roda, como se dijo anteriormente. La plentina de acero dulce de 50 x 6 que se extiende a lo largo del eje longitudinal se prolongará y escalonará en caso necesario hasta la roda. Las cuadernas se afianzarán provisionalmente utilizando varilla de 8 mm soldada en el extremo superior del arriostramiento tubular, así como a través de un punto medio en las bulárcamas a babor y a estribor.
A estas alturas es importante comprobar que todas las cuadernas están debidamente espaciadas, son verticales y están a escuadra con el eje longitudinal. La precisión conseguida en este momento evitará problemas en el momento de armar el casco.
La línea de arrufo o la regala en algunos modelos coinciden y forman parte de la línea de amurada. Para el constructor de buques tal vez sea ésta la línea de la embarcación que atraerá principalmente su atención y, por lo tanto, hay que procurar conseguir una línea bien armónica.
14. Varilllas de alineación de la roda, el arrufo, el codillo y las cuadernas
Por la cartilla de trazado del casco se observará que el espesor total de éste debe ser de 30 mm. Se prepara en el suelo un angular de 30 x 30 x 3 mm. Como se conseguirá una línea más armónica utilizando cada vez un angular largo, se preparan dos juegos unos 600 mm más largos que la línea de arrufo y se unen debidamente. Las uniones se rectificarán a paño por la cara sobre la que descansará el espesor del casco. Tras los taladros pertinentes se ponen unos espárragos hexagonales de 8 mm por 30 mm con tuercas y arandelas de espira sencilla de 8 mm a una distancia de 225 mm entre centros de forma que el primero y último taladro queden a unos 75 mm de la roda y el espejo de popa.
Para obtener un apoyo al que soldar las tuercas de los angulares se utiliza una pletina de acero dulce de 25 x 30 x 6. Ésta se coloca frente a las varillas de las cuadernas por la parte exterior y unos 10 mm por debajo de las marcas de arrufo realizadas en las cuadernas. (Estas distancias se obtienen teniendo en cuenta el espesor de la tuerca más el de dos arandelas elásticas de espira sencilla de 8 mm).
La pletina se sujeta provisionalmente en su lugar con unas mordazas y se comprueba la alineación de la parte superior de la pletina. Se realizan las modificaciones que sean necesarias y a continuación se suelda doblemente la pletina a cada varilla de cuaderna. Después se cortan los extremos de todas las varillas a ras con la cara alta de la pletina .
El angular de 30 x 30 x 3 puede colocarse ahora ya a nivel con el borde superior de la pletina. Utilizando una simple herramienta de fabricación casera, puede ejercerse la presión necesaria para mantener el angular en la posición correcta sobre la pletina y centrar aquél con el centro del espesor del forro, soldando por puntos al mismo tiempo las tuercas únicamente a la cara alta de la pletina. Mantener el ángulo exigirá un cierto trabajo y utilización de apoyos, empezando desde la roda alrededor del arrufo mientras se realiza la soldadura.
El angular se mantendrá a escuadra con la vertical del casco en cualquier punto a lo largo del arrufo.
El angular del espejo en el extremo popel se habrá montado y rebajado para poder instalar los angulares laterales. Terminada esta operación, estos angulares se pueden rebajar de forma que estén alineados con el punto exterior del angular del espejo. Las soldaduras de las esquinas del espejo se rebajan con muela abrasiva para que ofrezcan un borde limpio al enlucir.
La función del codillo es ofrecer una sección plana a fin de facilitar el montaje de los cintones de defensa y para mantenerlos en el ángulo que probablemente se recibirá cualquier choque.
Ello supone normalmente que será necesario disponer un codillo desde la roda hasta la mitad del cuerpo paralelamente a la línea de arrufo o de cubierta, así como también paralelamente a la línea de cubierta a popa, en un punto especialmente contiguo al espejo donde muchas veces el contorno del casco presenta una rápida inflexión. En algunos proyectos será necesario también un codillo a través del espejo de popa.
El codillo proel se construye acoplando y soldando una varilla de 12 mm a 6 mm dentro de cada varilla de cuaderna hasta el lugar en que el contorno del casco es vertical, en situación paralela al codillo y a una distancia por debajo del arrufo hacia el extremo inferior de la varilla. Debe disponerse un margen de 10 mm para la anchura especificada para la malla y el cemento.
En particular, las varillas de 12 mm del codillo proel deberán doblarse previamente hasta la forma de la semimanga para evitar su distorsión al ser soldadas en el lugar correspondiente. Estas varillas deben estar alineadas no solamente en planta sino también en el plano horizontal.
El codillo popel es una línea formada por la varilla superior de 12 mm colocada 10 mm por debajo del extremo superior de la línea de cubierta desde la cuaderna central hasta el espejo de popa. La varilla inferior de 12 mm, debido a la forma de la cuaderna, arrancará mucho más hacia popa debido a la forma natural de las cuadernas. Las varillas de 12 mm se fijarán a 10 mm hacia el interior de la anchura final deseada. Cada varilla, al igual que para el extremo proel, se fija 6 mm dentro de las varillas de cuadernas y se suelda permanentemente una vez comprobada la armonía del contorno.
Para acabar el armazón la varilla de 12 mm a nivel de la cubierta a popa se une a la varilla de 12 mm al codillo central proel superior.
Como se dijo anteriormente con respecto a la alineación de las varillas del espejo de popa, habrá que proceder ahora a la alineación del resto de las cuadernas.
Las varillas de 8 mm se unen provisionalmente a todas las cuadernas de babor y estribor en puntos situados a unos 150 mm entre centros. La alineación que habrá que hacer normalmente será del orden de 0 - 6 mm en unas pocas cuadernas.
Las discrepancias consistirán probablemente en que una cuaderna se habrá quedado un poco corta, y ello puede haber sido causado por una combinación de factores, a saber, errores cometidos durante la fabricación de las cuadernas, el montaje de las mismas o el trazado de las formas.
Se trata ahora de asegurar que la totalidad del casco presenta una forma bien armónica antes de aplicar cualquier refuerzo al forro.
En esta etapa es siempre mejor alinear hacia afuera que hacia dentro para evitar tener que cortar las varillas de cuadernas, las vagras o las varengas. Ello puede conseguirse aflojando las varillas de alineación de forma que sigan una curva natural del casco y predoblar una sección de longitud suficiente de la varilla de 8 mm o 6 mm que se colocará junto a la varilla de cuaderna de que se trate. Después de comprobar que el trozo nuevo de varilla consigue el contorno correcto, se suelda la varilla al lado de la varilla de cuaderna. Terminada esta operación se desmontan las varillas provisionales de alineación de 8 mm.
Cuando un casco de ferrocemento deba llevar una cubierta de madera hay que pensar en el método seguido para ello.
Si en el casco no se han instalado almas por encima del nivel del durmiente, ello puede conseguirse empernando un durmiente de madera al casco en toda la eslora del mismo.
En el caso de la mayor parte de los cascos de buques pesqueros (véanse por ejemplo los gráficos del anexo IND 101 p4a,b,c), la popa de la cubierta principal tendrá almas de ferrocemento que discurren a lo largo del emplazamiento de la cubierta hasta la cara inferior de la traca superior de cintón de defensa. De ello se desprende que el durmiente de madera consistirá en unas piezas cortas insertadas entre las bulárcamas.
En este caso, por lo tanto, se romperá la continuidad de la resistencia. Para solucionarlo se dispone en esta zona un durmiente de ferrocemento que no solamente dará una mayor resistencia al casco en la zona posiblemente más vulnerable de un buque pesquero sino también apoyo vertical para las piezas durmientes de madera y los extremos de los baos de cubierta.
El durmiente de ferrocemento consiste en un alma construida con el borde superior montado en la parte inferior de la posición correspondiente a los baos de madera. El espesor del durmiente de ferrocemento para buques de una eslora comprendida entre 12 y 17 m será de 30 mm y exigirá, por lo tanto, la inclusión de dos capas de varillas de 6 mm. Para contribuir a la construcción de una superficie plana a la que conectar las varillas de 6 mm, como puede verse en la figura 15, el durmiente tiene dos largos de barra cuadrada de acero dulce de 12 mm x 12 mm que discurren a todo lo largo de la estructura del durmiente.
A fin de ofrecer una orientación a los enlucidores se utiliza, como anteriormente, angular de acero dulce de 30 x 30 x 3 mm en el borde interior con espárragos hexagonales de 8 mm, tuercas y arandelas dispuestas a una distancia de 225 mm entre centros.
La líneas del durmiente y la brusca correspondientes a cada cuaderna puede determinarse con las marcas realizadas en la etapa de construcción las cuadernas en las varillas de éstas y en la cara interior de la pletina desmontable de las vagras.
Antes de instalar ningún refuerzo, puede marcarse la cara alta del durmiente de ferrocemento en cada cuaderna y comprobar su alineación. Vale la pena llevar el durmiente una cuaderna hacia proa del extremo del durmiente de madera, para conseguir una buena línea con el durmiente de ferrocemento. El angular de 30 mm puede montarse en su justo lugar en las caras de las bulárcamas y soldarse a la pletina de las mismas. Las varillas de 8 mm de las bulárcamas tendrán que cortarse cuidadosamente para permitir la colocación de la barra cuadrada interior de 12 mm antes de soldarla centralmente a las tuercas dispuestas en la cara interna del angular. La barra cuadrada exterior se prolonga dentro de todas las varillas de cuadernas y a través de todas las bulárcamas.
Puede ahora introducirse la varilla inferior de 6 mm, en zigzag y a 115 mm de distancia entre centros a lo largo del durmiente y soldándola por turnos a cada cara interior de las barras cuadradas de 12 mm. Las dos varillas superiores de 6 mm se fijan equidistantes entre las barras cuadradas de 12 mm.
Se redondea la zona de las esquinas del espejo de popa para dar una buena forma y acabado a la unión entre el durmiente lateral y el curvado del espejo.
Una vez terminada la estructura de acero del durmiente de ferrocemento convendrá marcar la posición de los baos de cubierta en el angular del durmiente ya que será muy útil en el momento del armamento. Estas marcas pueden transferirse al durmiente terminado después de su curación y antes de desmontar definitivamente el angular unido al borde interior del durmiente. Al mismo tiempo, se sujetarán con pernos los baos de madera al durmiente de ferrocemento aproximadamente en el centro de ambos. Es posible comprobar más fácilmente si existe alguna varilla que obstruye los lugares en que deben ir los pernos, y si es así conviene cortar los cabos que estorben, lo que facilitará la labor de taladrar el durmiente para las operaciones de armamento.
Figura 15 Construcción del durmiente de 30 mm de espesor
17. Colocación de malla en el durmiente
Puede que la viga de ferrocemento tenga ahora tres capas de malla de 13 x 13 mm y del calibre 19 aplicadas a cada lado de la estructura de acero; la capa superior y la inferior se extenderán, según lo previsto, 40 mm dentro del casco y en las bulárcamas para cuando se recorte la malla. En cuanto a la malla de las bulárcamas, el borde interior de la malla debe mantenerse alejado de la cara interior del angular unos 3 mm. El solape puede doblarse sobre la cara superior e inferior del durmiente, con cáracter provisional hasta que las varillas de refuerzo del casco hayan sido colocadas en su lugar.
El forro del casco de los buques pesqueros de 12-17 m de eslora tendrá un espesor de 30 mm. Dicho espesor está compuesto por 2 mm de mortero, 7 mm de malla, 2 varillas de 6 mm, 7 mm de malla y 2 mm de mortero. (A los efectos prácticos tres capas de malla del calibre 19, una vez grapadas y colocadas, suponen 7 mm de espesor dentro de la estructura del forro).
La colocación de dos capas de varillas variará según la técnica de construcción seguida. Es normal colocar una varilla de 6 mm en el lado exterior de las varillas de cuadernas en dirección longitudinal. La segunda capa puede colocarse en dirección vertical transversal dentro de la varillas longitudinales de 6 mm, lo que permite llevar las varillas interiores a la parte superior de la quilla como una pieza continua de refuerzo. Las varillas de cuadernas que se extienden por encima de la parte superior de las bulárcamas deben mantenerse dentro del borde interior del angular de 30 mm de la regala.
Alternativamente, una segunda capa de varillas puede colocarse en el exterior de la primera capa y disponerse diagonalmente desde el arrufo a la quilla. Ello afectará la colocación del angular desmontable del arrufo y la posición de los pernos para alinearlas con el forro, así como el margen que debe concederse para el forro a partir de las varillas de cuadernas.
El primer método exige dejar un margen de 12 mm para el forro y el segundo de 18 mm.
Las tres capas de malla del exterior del casco se estirarán longitudinalmente hasta las varillas exteriores del casco y las tres capas interiores se colocarán transversalmente entre las cuadernas. Al colocar la malla de esta manera significa que el refuerzo de varillas puede terminarse antes de aplicar la malla al forro, evitando así que la galvanización de ésta resulte un estorbo cuando se suelden las varillas en su lugar y pudiéndose así conseguir una buena forma de las varillas sin interferencia visual.
Todas estas operaciones tienen una influencia en la alineación y acabado final del refuerzo.
Varillas exteriores del casco
El espejo de popa es normalmente la primera zona en la que se colocan las varillas, caso de que esta operación no haya sido realizada en una etapa anterior de la construcción. Las varillas de 6 mm se espacian a 50 mm en una línea horizontal a través del espejo y terminan en los bordes del mismo.
La colocación de las VEFS de 6 mm de diámetro en el exterior de las varillas de cuadernas se empieza enlazando provisionalmente una varilla en las cuadernas en un lugar próximo y paralelo al alefriz. Los extremos proel y de popel en especial se colocan para producir una superficie lisa. Una vez obtenido un buen resultado, las varillas pueden soldarse por puntos a cada cuaderna. El espaciamiento para las demás varillas se ha fijado en 50 mm entre centros. Usando colgaderos y la herramienta adecuada para introducir las varillas (véase la figura 13), las varillas de 6 mm pueden fijarse gradualmente en todo el recorrido hasta las cuadernas.
En el caso en que las varillas necesiten unirse, se colocarán solapadas de 180 a 200 mm y se soldarán por puntos un mínimo de tres veces. Está permitido realizar cuatro uniones consecutivas de varillas en una cuaderna.
Debe evitarse el solape de varillas de refuerzo adyacentes sobre la misma cuaderna hasta que haya ocho varillas continuas entre ellas.
En la práctica ocurrirá muchas veces que la curva natural del casco escalonará normalmente las uniones requeridas. Hay que prestar una atención continua en mantener las varillas en línea uniforme. Ello se consigue con la práctica y procurando que el soldador tenga un ayudante que no solamente sostenga el espaciador en su debida posición al soldar las varillas sino que las sostenga mientras se enfría la soldadura para evitar distorsiones innecesarias.
Las varillas van describiendo una curva con el arrufo o el codillo a medida que progresa su colocación. Ello permite que las varillas de proa pueden terminarse en la varilla del alefriz y posteriormente en la varilla de 12 mm que se encuentra en la base del codillo.
En el extremo de popel, las varillas se curvarán de forma menos acentuada pero se terminarán y doblarán alrededor de la varilla de la varenga de la bovedilla para terminar en la cara de ésta. Las varillas restantes terminarán en las varillas de 12 mm del codillo.
18. Primera capa de varillas y refuerzo de la quilla
Los proyecto en los que no haya codillo, las varillas se llevarán hasta el extremo inferior de la pletina del arrufo o la regala y se terminarán allí.
Los proyectos en los que haya codillo, las varillas exteriores de 6 mm colocadas entre el arrufo y el codillo se terminarán una vez instalada la capa interior de varillas.
La roda puede terminarse continuando las varillas ya aplicadas al casco alternativamente alrededor de la roda para unirse nuevamente a la varilla del alefriz o, como en este proyecto donde hay un alefriz y un radio acusados en la parte principal de la roda, será más fácil prefabricar un número de piezas de varilla con radio idéntico y acercarlas a la soldadura de la roda en el eje longitudinal y unir los extremos a cada lado del alefriz solapando las varillas del casco según sea necesario. Ello puede realizarse entre la base del caperol de la roda y el arranque del pie de la quilla.
La estructura de acero alrededor del caperol de la roda se adaptará a la forma determinada por el accesorio que se utilice.
Las varillas de 8 mm provisionales utilizadas en la etapa de montar las cuadernas para espaciarlas por encima de su arriostramiento y en la zona de sentina podrán retirarse a medida que ya no resulten necesarias y se avance en la colocación de varillas del casco.
19. Primera capa de varillas en la roda y el codillo
La quilla
La construcción del refuerzo de la quilla vendrá impuesta por la marcha de los trabajos de instalación del tubo interior de la bocina y la terminación del refuerzo principal de la quilla y las chumaceras del túnel. Es corriente que el refuerzo de la quilla se termine en el extremo de la parte plana paralela de la misma (véase la figura 12) que en la mayor parte de los buques termina bien a popa. En el caso de que se necesite instalar chumaceras del túnel, el refuerzo se terminará provisionalmente delante de la chumacera proel.
Como se prevé pasar las tres capas interiores de malla a través de la cara alta de la quilla, habrá que disponer otras tres capas por el lado de la quilla hasta el alefriz antes de unir cualquier varilla longitudinal a las patas de la quilla.
Se comprenderá que como la zona de la quilla será una sección encajonada, hay que programar el orden de los trabajos para que la aplicación de los refuerzos sea lo más fácil posible.
Los tirantes roscados de la quilla junto a cada pata de las cuadernas pueden reducirse ahora en un 50% ya que es poco probable que la estructura de acero se mueva en esta etapa de la construcción.
20. Refuerzo de la quilla por el costado de babor y colocación de las varillas del alefriz
La varilla de 16 mm tendida a lo largo del eje longitudinal que llevará las varillas de 6 mm a través de la quilla se debe fijar en posición y soldar a la varilla transversal inferior adosada a cada varilla de cuaderna. Como será más fácil rematar y solapar la capa de varillas interior en la zona de la quilla, se sueldan trozos cortos de varilla de 6 mm en el extremo superior de la varilla del alefriz en el eje longitudinal, a 50 mm de distancia entre centros, cortados de forma que se ajusten a la anchura interior de la quilla.
Se observará que grapar toda la malla en la zona de la quilla será mucho más difícil si se trabaja simultáneamente a ambos lados de la quilla. Por lo tanto, el refuerzo de la quilla se termina, incluido el grapado de la malla exterior a un lado, en primer lugar.
Se estiran las tres capas de malla de 13 x 13 mm y calibre 19 y se atan con alambre a las patas de la quilla a un lado de ésta. Consultando los dibujos de los detalles del refuerzo del casco, se observará que procede utilizar una sola capa de VEFS de 8 mm. Estas varillas se espacian de forma que la inferior permita el uso de grapas al aplicar las capas exteriores de malla.
Las restantes varillas de 8 mm, al igual que las varillas del casco, se espacian a 50 mm entre centros y se sueldan por puntos a través de las capas interiores de malla a las patas de la quilla.
Las tres capas exteriores de malla se aplican a la parte inferior del refuerzo de la quilla en una etapa anterior. Se dobla ahora suavemente el área de malla sobrante a lo largo de la quilla en la mayor parte de la longitud de la quilla coincidirá con los solapes del casco. Una vez la malla queda perfectamente plana en el lateral de la quilla, puede graparse a las varillas de 8 mm y a través de la malla interior de la quilla en una sola operación. La operación puede realizarse porque el otro lado de la quilla está abierto todavía en esta etapa. Deberá cortarse la malla y preparar los solapes justo a proa de la chumacera del túnel.
21. Grapado de la malla exterior por el lado de babor de la quilla
Ahora puede ya procederse con el otro lado de la quilla de la misma manera. La única diferencia será que la malla deberá graparse por detrás por motivos de acceso. Ello puede conseguirse doblando las grapas en forma de un signo de interrogación y enganchando la malla alrededor de la varilla y volviendo a la malla hasta que los extremos de la grapa puedan retorcerse juntos
El refuerzo de la quilla está ahora terminado hasta la chumacera proel del túnel a partir de la roda. En el caso de que se hayan instalado el tubo interior de la bocina y las chumaceras del túnel puede proseguir el trabajo a popa de la misma forma que se describió para la quilla, cortando, solapando y colocando la malla y las varillas según proceda.
Varillas internas del casco
Cuando las varillas interiores de 6 mm deban colocarse transversalmente, y todo casco presenta un gran cambio de contorno en su longitud, habrá que predoblar las varillas para evitar distorsión de la capa exterior de varillas. Es aconsejable contar el número de varillas necesarias para terminar la labor entre las cuadernas.
Cuando las cuadernas tengan una clara de 600 mm habrá que doblar 14 varillas por lado y por clara. Ello supone una varilla situada aproximadamente a 25 mm de una varilla de cuaderna, lo que contribuirá a que la malla esté bien grapada cerca de los centros de las cuadernas. Es posible que en la zona de proa la separación de 50 mm tenga que ajustarse debido a diferentes anchuras medidas entre las varillas de cuadernas en la quilla y las medidas alrededor del contorno del casco en el codillo.
22. Colocación de las varillas interiores del casco entre las cuadernas
El área comprendida entre la línea de arrufo y las varillas del codillo puede ir provista de varillas de 6 mm soldadas desde la cara interior de la pletina del arrufo hasta la parte superior de la varilla de 12 mm del codillo manteniendo enrasados los bordes interiores desde la roda al espejo de popa, varillas que consisten en piezas cortas a proa y piezas más largas desde la parte central hasta el extremo popel. Una vez terminada la zona del codillo cabe colocar en posición las varillas exteriores de 6 mm y soldarlas. (Realizándolo de esta forma, especialmente en el extremo proel, la capa interior de las varillas verticales determinará la curva necesaria de las varillas exteriores).
Una vez dobladas las varillas interiores de 6 mm para que adquieran el contorno de la cuaderna, debe hacerse una marca de posición en la línea de arrufo o de cubierta, lo que ayudará a colocar la varilla debidamente en el interior del casco. Se ponen ahora las varillas interiores en su lugar con el número de grapas que sea necesario para sostenerlas junto a las varillas exteriores. Debe procurarse saltear las grapas ya que de lo contrario se deformará el contorno del casco entre las cuadernas.
Se cortan los extremos de las varillas en la longitud necesaria y se sueldan al fondo de la varilla del codillo y a paño con la cara interior. A continuación se solapa el extremo inferior de cada varilla y se suelda por puntos para ajustarse a las varillas de 6 mm anteriormente colocadas en la varilla del alefriz en la cara alta de la quilla y la roda
Se colocan las varillas interiores de 6 mm separándolas verticalmente a 50 mm entre centros en el espejo de popa caso de no haber realizado esta operación anteriormente.
23. Colocación de las varillas interiores y remate de la malla exterior de la quilla
Terminado el refuerzo de varillas, se practican agujeros de 12 mm en la pletina de 25/30 x 6 mm del arrufo y se separan a una distancia aproximada de 450 mm entre centros, manteniendo el primer y último agujero adyacentes a la roda y el espejo de popa. Dichos agujeros se utilizarán en el momento del armamento para la capa superior de pernos de sujeción del cintón de defensa superior y el durmiente proel.
Imbornales, guíacabos y agujeros para accesorios del forro
Una vez terminado el refuerzo de varillas del casco, cabe consultar los planos de construcción para comprobar el número, emplazamiento y tamaño de los imbornales, aberturas de los guíacabos y los agujeros para los necesarios accesorios del forro.
Para un casco de 13 m las aberturas proyectadas para los imbornales serán de 200 mm x 80 mm. Estos agujeros se consiguen doblando un trozo de pletina de 30 x 3 mm en la forma deseada y se perfora para introducir seis pernos de 8 mm, tuercas y arandelas, haciendo así la pletina desmontable después del moldeo. Se suelda una varilla de 6 mm a las tuercas de manera que esté alineada con las varillas exteriores del casco. La parte inferior de cada imbornal se alinea con la cara alta de la línea de cubierta, ubicándose todos los imbornales a proa y a popa según sea necesario y según una línea continua antes de su afirmado definitivo.
El marco interior de los imbornales puede retirarse después del proceso de curación sacando los pernos, cortando la pletina y empujándolo hacia dentro.
Los guíacabos pueden hacerse de dos maneras. La primera consiste en hacer un agujero del tamaño necesario en el refuerzo y utilizando una plantilla obturadora y luego sujetando con pernos una unidad a la abertura, o bien fabricando una pletina de acero inoxidable, dando a los bordes interiores forma convexa y soldando permanentemente el guíacabos de acero inoxidable al refuerzo del casco, así como disponiendo unas orejetas de sujeción cortas soldadas por los bordes a intervalos alrededor del canto exterior de la pletina de acero inoxidable.
24. Colocación del marco interior de los imbornales
En todas las embarcaciones es preciso hacer agujeros para accesorios del forro. En esta etapa conviene comprobar detenidamente que los dibujos de construcción del casco muestran todas las aberturas necesarias, así como su posición correcta. Como el diámetro exterior de los accesorios del forro varía de un proveedor a otro, también convendría tener a mano una lista de los accesorios seleccionados
Se cortan unos trozos cortos de tubo de 30 mm de largo y cuyo diámetro interior sea 3 mm mayor que el diámetro exterior del accesorio. Dichos trozos de tubo se sueldan al refuerzo del casco después de hacer con precisión un agujero en las varillas del casco. Hay que colocar cuidadosamente los anillos ya que es más fácil rectificar el mal emplazamiento de las aberturas antes que después del moldeo.
Cuando exista alguna duda sobre el tamaño correcto del accesorio antes del moldeo, debe aplazarse la inserción en el agujero hasta después del moldeo y curado del casco, aún cuando sea más difícil practicar el agujero en una etapa posterior.
Malla interior del casco
25. Colocación de la malla entre las cuadernas y por encima del durmiente
Para seguir esta técnica se coloca la malla entre las cuadernas en el interior de las varillas de 6 mm ya colocadas. Para la zona comprendida entre el arrufo y el durmiente pueden prepararse piezas relativamente cortas, mientras que en las demás zonas la malla se extenderá desde el arrufo a la quilla o del durmiente a la quilla.
La manera más fácil de preparar la malla consiste en arrimar una capa por la parte exterior del casco y trazar con yeso la forma de la misma. Esta pieza de malla puede ahora colocarse en el suelo encima de otras dos capas y grapar las tres juntas. Las capas pueden ahora cortarse según la forma debida, con los solapes necesarios, y una vez terminada la operación se colocan en el casco adosadas a las varillas interiores. Conviene disponer las juntas a un lado de la quilla para que los solapes sean más fáciles de grapar al colocar la malla exterior. Los solapes de malla previamente preparados sobre las bulárcamas, varengas y durmientes pueden ahora colocarse sobre el refuerzo del casco a medida que avance el trabajo.
Se termina la colocación de la malla interior y se examinan las varillas del casco para comprobar que siguen una línea uniforme antes de iniciar el trabajo con la malla exterior.
Malla exterior del casco
La malla exterior se prepara superponiendo tres capas de malla de 13 x 13 mm y calibre 19 en el suelo, dejando un sobrante de longitud donde debe aplicarse la malla. Los bordes de cada capa se solapan en 40 mm. A continuación se grapa provisionalmente la malla en toda su longitud.
26. Configuración de la malla interior para colocarla entre las cuadernas
La malla exterior se aplica a la zona del arrufo hacia abajo y la malla de la quilla se solapa hacia arriba, dejando para lo último la sección del medio, donde la malla se deberá recortar y los solapes cortar para adaptarse a la capa de la malla anterior ya colocada.
Se termina la colocación de la malla en el espejo de popa y se grapa, cortándose el solape en las tres capas que discurren paralelamente al borde exterior del espejo.
Puede iniciarse ya la colocación de la malla longitudinal en el arrufo o la quilla, o en ambas zonas caso de que se disponga de un número suficiente de operarios. Se conecta la malla a los extremos de cada franja de tres capas al mismo tipo de polea que se utilizó para montar las cuadernas. La polea, a su vez, se conecta a una varilla, doblada alrededor de un tubo o viga que se coloca desde las viguetas del techo hasta el suelo sin que toque a ninguno de los extremos del casco, y a la malla con un gancho preformado y hecho de varilla de 6 ó 8 mm.
Se colocan las poleas a estima para que alcancen hasta los tablones de manera que la malla quede lo más estirada posible en una línea uniforme alrededor del lugar del casco que corresponde, y colocándola de forma que se reduzcan al mínimo los recortes.
La franja de malla de tres capas se centra en el medio del casco en sentido longitudinal. La experiencia ha demostrado la utilidad de asignar dos parejas de operarios, una pareja a proa y la otra a popa, apartados de la cuaderna central y arriba y abajo de la anchura de la malla, utilizando las grapas con una separación de 125 mm entre centros. La malla debe trabajarse arriba y abajo para evitar que puedan producirse desigualdades en el interior o el exterior.
27. Estirado de la malla exterior empezando por el alefriz
Las grapas de calibre 16 se aplican desde el exterior y la persona situada en el interior retuerce y corta los extremos lo más cerca posible de la malla interior de forma que todos los extremos de las grapas queden bajo la superficie del mortero interior, evitando así que se produzcan puntos de oxidación. Debe procurar igualmente que todos los extremos sueltos, los solapes y flecos de malla estén grapados ya que de lo contrario al moldear sobresaldrían por la superficie y serían un punto oxidación.
La persona en el lado exterior recorta la malla hasta las aberturas del arrufo, los imbornales, etc y los demás solapes necesarios, dejando una cuaderna por delante del lugar donde ha grapado.
La malla del casco en la popa se corta desde la varilla del alefriz y se disponen solapes de 40 mm en cada capa. Se prepara una sección de tres capas de malla que cubra el largo y contorno de la roda hasta los solapes preparados.
Se recortan los extremos de la malla de la roda de acuerdo con los solapes dispuestos en la malla del casco y luego se grapa ésta al refuerzo de la roda de modo uniforme.
En el extremo popel la malla se adapta alrededor de las esquinas del espejo para cubrir su cara popel y se cortan las capas de malla dejando un solape de 40 mm.
29. Malla exterior ya terminada en la roda
Se examina la totalidad del casco para ver si hay algunas zonas en que la malla ha quedado suelta o las grapas no se han reforzado suficientemente o algunos extremos que han quedado demasiado largos. Debe prestarse especial atención a las superficies alrededor de las vagras , varengas y solapes de la malla para que no quede ninguna parte de malla suelta en el casco.
El objeto de los tubos interiores es permitir la libre retirada de la bocina y la caja de limera para efectuar reparaciones o sustituciones y ofrecer un lugar para los dispositivos de la bocina y la caja en la construcción en ferrocemento.
En general los tubos interiores se hacen con tubo de acero dulce y en los extremos llevan bridas del mismo acero, o bien en las embarcaciones en serie cabe instalar tubo de fibra de vidrio correctamente proyectado y también pueden instalarse bridas aunque éstas y el exterior del tubo deben ir acabados con una resina epoxídica para evitar toda reacción del mortero fresco ante la resina de poliéster.
Los requisitos del tubo interior vendrán impuestos por el proyectista que habrá tomado debida nota de las dimensiones del eje y la espiga que exijan el equipo suministrado localmente.
30. El enmallado de popa está casi terminado
Figura 16 Tubo interior de la bocina
Las bridas de acero tendrán las mismas dimensiones que las de bronce manganoso, y el tamaño de los agujeros de cada una se ajustará al tamaño de la espiga del accesorio interior y exterior, procurando que esté terminado a máquina.
Se sueldan unos vástagos suficientemente largos de varilla de acero dulce y del diámetro apropiado a la cara adecuada de cada brida que se ha taladrado y aterrajado de forma que se ajuste al tamaño de los orificios para los pernos y al emplazamiento de las unidades de bronce manganoso. Ello ofrece una longitud roscada superior a la que permitiría por sí sólo el espesor de una brida de acero dulce (véase la figura 16).
La longitud total de brida a brida se toma de los datos del proyectista y se conectan con un tubo de acero cuyo diámetro interior sea superior al diámetro de la clavija de las unidades de bronce. Se suelda el tubo a la bridas y finalmente se coloca en un torno y se refrentan las bridas para que estén con las caras paralelas y a la correcta longitud total. El interior de los tubos debe estar bien engrasado antes de moldear el casco o de insertar los dispositivos del timón y de popa.
El espesor de la pared del tubo de acero dulce y el de la brida será proporcional a la longitud y peso del equipo que vaya a instalarse, datos que normalmente facilita el proyectista.
Instalación del tubo interior de la bocina
El requisito especial que debe tenerse en cuenta al instalar el tubo interior de la bocina es la precisión de su emplazamiento. Ello significa que la alineación con el eje geométrico del eje de la hélice y la posición longitudinal del tubo interior son críticas para evitar correcciones costosas en una etapa posterior.
El tubo interior de la bocina se comprueba en primer lugar para ver si ajusta bien. Como algunas bocinas tienen bridas circulares, conviene marcar el centro superior de las bridas del tubo interior de acero. Han ocurrido casos en que el tubo interior se ha instalado con la parte superior situada al lado o el fondo de su posición correcta, lo que ha causado grandes dificultades posteriormente al instalar la alimentación de grasa o agua, según el tipo utilizado, aparte de entorpecer el acceso al prensaestopas.
El tubo interior se sitúa en una posición aproximada de forma que pueda mantenerse tensa una cuerda de piano o similar entre dos puntos que representan el centro real de la línea de ejes. Una vez situada correctamente y comprobada la línea, el tubo interior puede centrarse con respecto a la línea de ejes y situarse en sentido longitudinal.
Se comprueba la distancia entre la cara popel del tubo y el emplazamiento de la cara popel del semiacoplamiento de la caja de cambios para comprobar que la distancia es correcta. Esta medida debe ser especialmente precisa si se ha recibido ya la estructura de popa y también para evitar que los pies del motor y los pernos de cimentación de la bancada del motor estén desalineados.
Deberá sujetarse el tubo de revestimiento con carácter provisional pero firmemente mientras se fabrica la fijación permanente.
Si se deja que el eje central del tubo interior se descentre 1 mm supondrá un error aproximado de 20 mm en el extremo proel de la bancada del motor. En esta fase de la construcción hay que comprobar siempre la alineación en toda su extensión.
La cara popel del tubo interior puede apuntalarse mediante un bastidor montado en el lugar del empernado de la brida, arriostrado transversalmente según sea necesario y afirmado al suelo y a la cama de la quilla si con ello se consigue una mayor estabilidad.
31. Tubo interior de la bocina colocado en posición
El extremo proel del tubo interior está arriostrado y soldado al fondo del bastidor o las patas de la quilla más próximas al lado popel de la brida proel. En caso necesario pueden acoplarse riostras provisionales al bastidor y al suelo del taller para impedir todo movimiento. Esto se tendrá que desmontar cuando el resto del refuerzo de la quilla esté dispuesto para su terminación.
Una vez conseguida la inmovilidad del extremo popel del tubo interior se podrá terminar el refuerzo de la quilla.
La varilla de 16 mm de la quilla situado en el eje longitudinal se suelda al centro del extremo superior e inferior de la brida popel del tubo interior dejando espacio suficiente entre los bordes de la brida y la cara popel de la varilla para rematar el refuerzo y aplicar el mortero.
Para que la quilla proporcione una corriente de agua que llegue sin turbulencia a la hélice se redondea y conifica por encima del tubo interior de la bocina y se redondea y remata de acuerdo con la anchura que tenga en el talón del codaste por debajo de dicho tubo.
Se doblan previamente dos pares más de varillas de 12 mm siguiendo la forma de estas dos zonas. Luego se sueldan a la cara proel de la brida del tubo interior de la bocina para que terminen en el lado proel de la cuaderna por encima de aquel tubo, y se utilizarán para rematar y controlar la anchura del refuerzo en el talón del codaste por debajo del tubo interior y proporcionar al mismo tiempo un radio en el canto popel de la quilla.
Para disponer este radio en el canto popel de las varillas de la quilla, las zonas situadas por encima y debajo del tubo interior pueden ser consolidadas con varillas de 6 mm predobladas con un radio decreciente.
32. Vista posterior del tubo interior de la bocina y refuerzo de la quilla
Instalación del tubo interior del timón y del talón del codaste
Aunque el tubo interior del timón puede mantenerse en su lugar mediante un eje artificial, es preferible disponer ya del mecanismo completo del timón (véase la figura 17). En esta etapa dicho mecanismo comprenderá:
- el talón del codate y el cojinete inferiorEl prensaestopas del timón, el tubo y la brida inferior de bronce manganoso se acoplan provisionalmente al tubo interior de acero dulce. Este conjunto se introduce luego en su lugar a través del forro del casco tras haber practicado un orificio en las varillas de refuerzo y en el lugar correcto.
- la pala y la madre
- la mecha
- el acoplamiento o manguito de la mecha
- el tubo interior con brida, de acero dulce
- el prensaestopas, incluido el tubo de enlace y la brida inferior
El talón del codaste que descansará sobre la cama de la quilla se coloca en paralelo con el eje longitudinal de la posición del timón marcada en la cama. Se completan las varillas de refuerzo que hay en el talón del codaste y se insertan tubos interiores de acero dulce, colocándolos de modo que coincidan con las posiciones de empernado del talón del codaste. Se arregla y grapa la malla de éste. Esta labor supondrá la introducción y retirada del talón del codaste varias veces.
34. Instalación del timón y refuerzo interior del casco
Una vez terminada la labor de refuerzo, se coloca finalmente en posición el talón del codaste después de haber engrasado las caras interiores y se suelda ligeramente por puntos para evitar movimientos imprevistos. Deben biselarse ligeramente los lados del talón a fin de ofrecer un ángulo que permita tirar en caso necesario.
Se inserta la mecha a través del conjunto del prensaestopas y se introduce por el manguito de unión hasta la madre del timón, afirmando debidamente la madre y la mecha en el chavetero y el manguito provistos al efecto. Se desliza la madre hasta el cojinete del talón del codaste y se centra la totalidad del mecanismo.
El tubo interior de la bocina, si se han tomado bien todas las medidas, se encontrará junto al borde proel de la brida inferior, apenas separado del refuerzo del casco. Después de comprobar que la alineación es correcta y que el timón gira con facilidad, puede soldarse ya la varilla de la quilla al tubo interior. Por dentro, se instala una zona reforzada como la indicada en el plano de construcción del casco para crear un bloque abierto de refuerzo cuya construcción ofrecerá los tirantes que mantendrán la brida superior del tubo interior de la bocina en su lugar.
Como precaución adicional para que no se mueva el eje del timón durante el moldeo, puede instalarse un manguito provisional y arriostramiento en el extremo alto del eje superior.
Figura 17 Mecanismo del timól - Disposición general

35. Instalación del mecanismo del timón
Según sea la forma del casco, la brida inferior del tubo interior deberá reforzarse para formar una curva cóncava desde la brida hasta el refuerzo del casco. Unas varillas de 6 mm adicionales permitirán ordenar la malla del casco en esta zona.
Debe observarse que después del moldeo y curado, el mecanismo del timón se retirará del casco para que el prensaestopas de manganeso, el tubo de enlace y la brida inferior se junten y afirmen correctamente al tubo interior de acero dulce, antes de instalar el resto del mecanismo del timón definitivamente.
En muchos proyectos, debido a la ubicación del motor, es necesario colocar un eje largo. Para superar el problema de la distorsión del eje debido a su longitud, se incorporan unos soportes de las chumaceras en el ferrocemento y en centros predeterminados dentro de la estructura del casco.
Dichos soportes son bloques que llevarán encima, afirmadas bien y con precisión, las chumaceras del eje.
Por lo tanto, es preciso conocer exactamente el tipo y dimensiones de las chumaceras del eje que van a utilizarse antes de instalar la pieza de ferrocemento.
El plano de la construcción del casco indicará el lugar de los bloques necesarios.
Se disponen entramados de las dimensiones necesarias, de varillas de 12 mm, teniendo en cuenta el espesor del forro en el bloque, y se colocan paralelamente al lado de las cuadernas indicadas en las dimensiones necesarias, por debajo de la línea de ejes. Conviene dejar margen para introducir un obturador de 25 mm entre el lado inferior de la chumacera y el superior de su soporte de ferrocemento.
Se toman dos pernos del diámetro y longitud debidos, se introducen en el refuerzo de cada soporte y se sueldan permanentemente utilizando un caballete para mantener los centros correctos con respecto a la línea de ejes y entre sí, dejando la parte roscada del perno hacia arriba. (El caballete puede utilizarse posteriormente para conseguir una superficie plana del mortero encima de los bloques al moldear el casco).
A continuación, el entramado de varillas de 12 mm es consolidado con varillas de 6 mm conectadas a la cara de la varenga y a continuación se ponen tres capas de malla de 13 x 13 mm y del calibre 19 con solape en la cara de la varenga y dejando acceso en la parte superior para rellenar posteriormente durante la operación de moldeo.
Dada la dificultad usual de colocar los bloques en un lugar debajo del casco, es preferible construir los soportes de chumaceras después de colocar el tubo interior de la bocina y antes de terminar el refuerzo de la quilla en la zona en que vayan a instalarse.
Una vez terminada la instalación del tubo interior de la bocina y las chumaceras puede ya colocarse, como anteriormente, la malla interior de la quilla a un lado y consolidarla con varillas hasta el alefriz. Lo mismo que antes, la malla se coloca,, corta, une y grapa del modo necesario. El otro lado puede a continuación rematarse de la misma manera.
Las bancadas de ferrocemento no solamente permiten fijar y alinear el motor con precisión sino que confieren también una consideradable resistencia longitudinal y complementaria al casco.
El proyecto indicará normalmente el emplazamiento del motor dentro del casco y tal vez la posición del eje longitudinal central de los pies del motor. Esta información es insuficiente para colocar los pernos de sujeción en la bancada de ferrocemento. Como ocurre muy a menudo, las instrucciones del fabricante del motor no son correctas o bien no ofrecen información suficiente.
La mejor solución de este problema, caso de que se plantee, consiste en tener a mano el motor un mes antes de iniciar la construcción del casco o poder examinar un motor provisto de toma de fuerza y comprobar las dimensiones y ubicación de los pies del motor con respecto a un punto de referencia, como por ejemplo, el semiacoplamiento de la caja de cambios (siempre que ésta sea del mismo tipo que la que va a utilizarse).
No es posible exagerar la importancia de disponer de esa información lo antes posible, ya que una vez moldeadas las bancadas del motor en el casco su modificación sería difícil y supondría más gastos.
La forma ideal de construcción de un buque pesquero consiste en afirmar el motor a una plancha de acero, que a su vez se sujeta a la bancada de ferrocemento mediante pernos bien soldados en el refuerzo de la bancada antes de moldearla.
Normalmente se deja un margen de 50 mm de espesor para insertar un obturador de madera dura entre la cara alta de la bancada y la cara inferior de la chapa de acero utilizada para afirmar los pies del motor (véase la figura 18). Ello ofrece dos ventajas:
a) Contribuye a reducir las vibraciones transmitidas al casco, aunque la mayoría de las vibraciones producidas por el motor será absorbida por la masa de la bancada, especialmente en la construcción de pesqueros de ferrocemento.La precisión es de una importancia primordial porque queda muy poco margen para la alineación en sentido lateral pues la mayor parte de los motores dejan muy poco espacio entre las caras interiores de la bancada.b) La forma y espesor de la empaquetadura de madera puede ajustarse para tener en cuenta un cierto margen de error que puede haber entre la línea de ejes y la cara alta de la bancada de ferrocemento del motor si la alineación no es satisfactoria.
Figura 18 Disposición de la bancada del motor

La construcción en ferrocemento de la bancada del motor es una operación fácil siempre que se observen las siguientes precauciones:
i) Comprobar que el tubo interior de la bocina ha sido bien instalado y está correctamente alineado con la línea de ejes.37. Preparación de la pletina de acero y los pernos de cimentación de la bancada del motorii) Se hace un caballete con la pletina de acero en la que se acoplará finalmente el motor y se perforan los orificios para los pernos de cimentación de la bancada de ferrocemento del motor que estarán situados al lado de cada pie del motor, toma de fuerza y caja de cambios. El caballete debe reforzarse provisional pero adecuadamente para que se mantenga recto, plano y paralelo a la línea de ejes.
iii) La longitud de los pernos de cimentación está determinada por la cantidad de obturador que se ponga, el espesor de la pletina, la altura de las dos tuercas de 20 mm y arandelas de 3 mm de espesor, más un margen.
La suma de estas medidas da una longitud de 120 mm desde la cara alta de la bancada de ferrocemento. Además, la longitud requerida desde ese punto hasta 12 mm del forro del casco puede ser comprobada y prolongada para que los pernos tengan la longitud debida. El extremo superior de cada perno debe estar roscado lo suficiente para tener en cuenta los reajustes que exija la posición final de la cara alta de la pletina de acero en relación con la línea de ejes.
iv) Antes de colocar el entramado de la bancada de un motor en su lugar hay que comprobar de nuevo la exactitud con respecto a la línea de ejes de las varillas verticales de 12 mm introducidas en las varengas de cada cuaderna para afirmar el refuerzo longitudinal de la bancada, que se introdujeron durante la construcción de la cuaderna.
38. Instalación de la pletina superior en la bancada del motor
Todas estas operaciones pueden realizarse ya sea fuera del casco o antes de iniciar la construcción de la bancada del motor principal.
Una vez terminado el refuerzo del casco se coloca sobre su canto una pletina de 25 ó 30 x 6 mm a 10 mm por debajo de la altura terminada del mortero, a lo largo de las barras verticales de 12 mm de las varengas y paralelamente a la línea de ejes en los cuatro costados de la bancada del motor. Los extremos cónicos de la bancada llevan pletinas dispuestas de la misma manera.
Se pasan ahora las VEFS de 6 ó 8 mm de diámetro a través de las cuadernas, empezando por la varilla más próxima a la pletina de la bancada del motor que se coloca a unos 25 mm por debajo de la cara inferior de la plancha y a partir de este punto a 50 mm entre centros. Se colocan otras varillas verticales de 12 mm centradas aproximadamente entre dos cuadernas por la cara interior de cada lado de la bancada y se sueldan al casco, así como a las varillas y la plancha de la bancada del motor.
39. Refuerzo de la bancada del motor y pernos de cimentación colocados
El caballete de la bancada del motor, con los pernos de 20 mm ya colocados a la debida altura por encima del mortero acabado, utilizando una tuerca soldada al perno más próximo a la cara inferior del caballete, se baja sobre la pletina ya colocada en la bancada del motor. La cara inferior de la plancha se coloca a 10 mm por encima de las pletinas longitudinales a la misma distancia por debajo de la línea de ejes como se indica el plano de construcción del casco, que será la cara inferior de los pies del motor que se utilizará.
Se coloca el caballete paralelamente a la línea de ejes y su ubicación longitudinal se establece por la posición del semiacoplamiento de la caja de cambios, marcada en el caballete y medida a partir de la cuaderna más próxima.
Antes de finalizar la posición, puede comprobarse la longitud total entre la marca del caballete correspondiente a dicho semiacoplamiento y la cara popel de la brida del tubo interior de la bocina para asegurarse de que las distancias son las requeridas.
Una vez comprobada la buena posición general de los pernos de cimentación se sueldan éstos a los tirantes insertados en el refuerzo de la bancada del motor. Dichos tirantes deben soldarse bien al refuerzo y los pernos. Si éstos no tienen cabeza debe soldarse una varilla corta en su extremo inferior para que en el caso improbable de que las soldaduras se rompan durante o después del moldeo, el perno de cimentación no pueda girar o salirse del mortero.
Puede retirarse ahora el caballete de la bancadas del motor y limpiarse y pintarse las caras altas de las pletinas en preparación para la etapa de moldeo.
Pueden disponerse ahora las groeras necesarias a lo largo de la bancada del motor en la forma indicada por el proyecto.
Se enmallan ahora los lados de la bancada del motor utilizando tres capas de malla de 13 x 13 mm y del calibre 19 en las caras interior y exterior de cada bancada. La malla se solapa unos 40 mm sobre el casco y las varengas y luego se grapa. Se recorta el borde de la malla paralela a la parte superior de las bancadas y se dobla una capa hacia abajo hasta la primera varilla de 6 mm en la parte interior de la bancada del motor, grapándose debidamente, dejando así la parte superior de las bancadas accesible al relleno posterior con un mortero.
La anchura y altura de la bancada de ferrocemento del motor vendrán normalmente determinadas por el proyectista. Si la instalación del motor resulta difícil por la falta de información y lo permite la profundidad de la bancada, la altura de la pieza de ferrocemento puede reducirse de forma que pueda fabricarse una cuna de acero que llene el espacio entre la parte inferior de los pies del motor y el extremo superior de las bancadas.
40. Colocación de las mallas sobre la bancada del motor
Ello permitirá una flexibilidad de instalación pero al mismo tiempo hay que tener cuidado en conferir una resistencia suficiente a la bancada reducida para la instalación del motor, así como la resistencia que se desea en todo el casco.
Figura 19 Construcción de la quilla de balance en la sección central

Las quillas de balance pueden construirse de diversas maneras. Al igual que las bancadas del motor, pueden proyectarse y construirse de tal forma que confieran una mayor resistencia y protección al casco.
Si bien el sistema que vamos a describir no es el más sencillo para construir una quilla de balance, ofrece una forma duradera y fuerte que encaja bien con el casco.
La forma a la que nos referimos se representa en la figura 19 que es una quilla bien redondeada de 100 mm de anchura y 150 mm de profundidad. La longitud y ubicación de las quillas vendrá indicada en los planos de construcción.
La primera etapa de construcción consiste en doblar un número suficiente de varillas de 12 mm que se ajusten a la dimensión interna de cada quilla de balance, dejando el margen correspondiente al espesor del forro. Cada una de estas varillas de 12 mm se suelda directamente a la parte exterior de la varilla de cuadernas en el lugar indicado por el plano. Naturalmente, estas patas de 12 mm tendrán una longitud disminuida hacia cada extremo de la quilla para formar un contorno que armonice con el casco.
41. Estructura de acero preliminar de la quilla de balance
Análogamente, se doblan las patas de varillas de 8 mm siguiendo el contorno de la quilla, que se utilizarán para dividir por la mitad el espaciamiento de las patas de las cuadernas, con lo que se conferirá un soporte complementario a la varillas longitudinales de 8 mm que se agregarán más tarde.
Se suelda una varilla de 12 mm a la parte interior de la pata curvada sobre el eje longitudinal de la quilla de balance, dejándola desvanecerse en el casco por los extremos, puntos por los que atraviesa el forro y se suelda adecuadamente a la cuaderna o refuerzo local.
Las quillas de balance se consolidan con VEFS de 8 mm. La primera varilla se coloca paralelamente y a una distancia de 10 mm del exterior del refuerzo del casco a ambos lados de cada quilla.
42. Enmallado de la quilla de balance
Se coloca una capa de malla de 13 x 13 mm y del calibre 19 en cada quilla, marcándose su forma con yeso y cortándola como plantilla para las dos capas de malla restantes. La capa exterior de malla de cada quilla se corta de forma que queda un solape de 40 mm hacia dentro del casco.
Dada las curvas compuestas que forman el contorno de la quilla de balance habrá que adaptar y grapar la malla cuidadosamente para que adquiera la forma deseada.
Se hace el número necesario de agujeros del tamaño apropiado desde el interior del refuerzo del casco para ganar acceso a las quillas con los vibradores cuando se moldee al casco.
Muchos pesqueros de arrastre ganarán con la adición de una tobera que les conferirá mayor empuje y los requisitos para su instalación estriban en disponer bastantes puntos de anclaje de manera que la tobera quede firmemente sujeta al casco de ferrocemento.
El proyecto puede exigir que la ubicación de los pernos del talón del codaste proporcione el punto de anclaje necesario para la parte inferior de la tobera.
43. Bloque de fijación para la parte superior de una tobera
En la parte superior habrá que elegir entre el empernado directo a la superficie del caco o bien disponer una prolongación fuerte hacia abajo separada de la quilla vertical de manera que la tobera pueda empernarse al bloque provisto y las uniones no penetren el forro del casco. Normalmente se utiliza este último método.
El contorno de la tobera en el borde proel sobre el eje longitudinal será el punto más elevado frente a la quilla vertical y a continuación se inclinará atrás hacia la quilla. La forma de la quilla vertical sigue un proceso inverso. Se dispone una forma triangular apropiada para incorporar el bloque reforzado necesario para sujetar la tobera.
Se construye un entramado de varillas de 12 mm que se monta en el casco y la quilla vertical, reduciéndose su anchura total para tener en cuenta el espesor del forro en cada costado. El entramado se afirma bien al refuerzo del casco después de alinearlo cuidadosamente conforme al eje longitudinal y al ángulo necesario de forma que quede paralelo a la parte superior de la tobera.
Se corta un par de plantillas para las caras del bloque y se practican los orificios apropiados al tamaño y número de elementos de sujeción.
Se preparan tubos de revestimiento que se ajusten al diámetro exterior de los pernos de sujeción y se sueldan al entramado de refuerzo utilizando las plantillas para su ubicación.
Una vez terminada esta soldadura, se sueldan VEFS de 6 mm al entramado de varillas de 12 mm y se conectan al refuerzo del casco. A continuación se cortan tres capas de malla de 13 x 13 mm y del calibre 19, se grapan y se deja que solapen 40 mm sobre la malla del casco.
Las plantillas se vuelven a colocar después del engrasado y se empernan a los tubos de revestimiento, lo que ofrece una guía segura en cuanto a la anchura del bloque así como un perfil para los enlucidores que deben proceder al acabado.
Es esencial organizar debidamente el periodo de moldeo. Para ello hay que proceder a una labor preparatoria que incluirá las operaciones siguientes, susceptibles de ser olvidadas u omitidas y por ello de ocasionar problemas mientras se moldea el casco:
a) en el caso de que el enlucido se realice por contrata hay que disponer las medidas necesarias, fecha y hora con la debida antelación;Prepárense medios opcionales en caso de averías en el suministro de electricidad, la hormigonera, vibradores, etc.b) comprobar todas las soldaduras del arriostramiento de las cuadernas, especialmente en las zonas que sean muy transitadas al mover la mezcla alrededor del casco durante el periodo de moldeo;
c) comprobar el refuerzo del casco; verificar que las grapas están apretadas y no sobresalen; no hay que dejar ningún extremo, faldón o solape sin grapar;
d) comprobar que no hay restos ni pedazos de materiales en el casco, especialmente en la quilla o debajo de ella entre el espacio que la separa de la cama de construcción;
e) engrasar o lubricar ligeramente la cara alta de la cama de la quilla, el talón del codaste y el timón. Cúbrase el conjunto del prensaestopas con una hoja de politeno o material parecido; protéjanse las bridas del tubo interior de la bocina; colóquense pernos engrasados en todas las bridas; retírense, engrásense y colóquense de nuevo el caperol de la roda o las plantillas;
f) compuébese de nuevo la línea de ejes con relación a las bancadas del motor y las chumaceras; colóquense en la debida posición las planchas superiores de las bancadas del motor y la empaquetadura de madera; cúbranse con cinta las roscas expuestas de los pernos en la bancada y los bloques;
g) compuébese de nuevo el lugar de los orificios de unión en el forro del casco y su número total;
h) compruébese que todas las herramientas necesarias para el moldeo están a mano, por ejemplo, cubos, poleas, palustres, tablas portamezclas, etc.;
i) compruébese y póngase en marcha el material de moldeo, como, por ejemplo, hormigoneras, motores de los vibradores y extremos de los agitadores;
j) compruébense los proyectores de luz adicionales, cables, etc. que puedan ser necesarios;
k) compruébese que se dispone de arena en la cantidad, calidad y limpieza necesarias y tamícese y límpiese en caso necesario;
l) compruébese que los tanques de agua están perfectamente limpios antes de llenarlos;
m) compruébense las existencias de cemento y colóquense cerca del lugar de mezcla;
n) móntese un andamiaje alrededor y por encima de la embarcación; dispóngase dos zonas por encima del arriostramiento de las cuadernas para distribuir el mortero junto a las poleas para izar los cubos;
o) compruébe el método y los preparativos para curar el casco, como, por ejemplo, suministro de agua, trapos de arpillera, etc.;
p) compruébese la estructura del edificio para impedir que surjan dificultades creadas por la lluvia, el sol o el viento; q) compruébese que se dispone de aditivos y hielo antes de iniciar el moldeo;
r) límpiense todas las zonas del piso en el casco y a su alrededor; humedézcase la zona del piso en caso necesario.
El periodo para llevar a cabo estos preparativos se va acortando con la proximidad del día previsto para el moldeo. Sin embargo, debe dedicarse tiempo a los preparativos para que todo esté listo dentro de lo posible antes de iniciar el moldeo.
44. Casco listo para el moldeo
Es evidente que la resistencia y el acabado finales del buque dependerán de la destreza y disciplina con que hayan trabajado los operarios y supervisores durante el moldeo. Por lo tanto, es fundamental organizar la mano de obra antes de proceder esa operación.
He aquí una orientación general en cuanto a la importancia numérica de los trabajadores necesarios para enlucir el casco de un pesquero de arrastre de 12 - 14 m:
Equipo de hormigonera
- 2 hombres para llenar las cajas de cemento y arena - peonesEquipo de manipulación
- 2 hombres en la hormigonera - operarios especializados
- 2 hombres con carretilla - peonesEquipo de vibradores
- 2 hombres para el polipasto - peones
- 1 hombre encima de la embarcación para la distribución - peón
- 5 hombres para vibradores - operarios especializadosEquipo del interior
- 5 hombres para la inspección - operarios especializados
- 5 hombres en andamios - operarios especializadosEquipo del exterior
- 5 hombres para el aplanado y acabado - enlucidores
- 14 enlucidoresEquipo de limpieza
- 4 hombres que limpien y preparen para la curación - peonesTotal mano de obra:
|
Peones |
7 |
|
Especialistas |
17 |
|
Enlucidores |
19 |
|
Limpiadores |
4 |
|
|
47 hombres |
Para calcular el número de operarios necesarios para moldear un casco deberá conocerse su productividad, así como la dificultad del casco que debe moldearse. Evidentemente, el moldeo de un casco de dimensiones parecidas con un forro cuyo espesor esté determinado por la construcción con una varilla única y conste de bancas de motor y varengas pequeñas exigirá mucho menos mano de obra.
A pesar de ello, cuando se lleva a cabo el primer moldeo será mejor pecar por exceso que por defecto y después podrá apreciarse la mano de obra necesaria en los moldeos posteriores. Para conseguir un buen moldeo deben seguirse las instrucciones siguientes:
Equipo de hormigonera
Debe encargarse a un hombre de confianza que vigile la calidad y cantidades de los materiales utilizados en cada mezcla. Dicho operario se encargará de que la mezcla permanezca en la hormigonera únicamente el tiempo necesario y de vigilar asimismo el consumo de forma que la mezcla esté siempre fresca en el momento de utilizarla.
Equipo de manipulación
La tarea principal del equipo de manipulación es encargarse de llevar la mezcla al casco y al punto de uso con la mayor rapidez posible. La mezcla no debe ponerse en cubos y dejarla por mucho tiempo ya que se habrá producido el primer fraguado y los demás trabajadores tendrán dificultades en conseguir la penetración del mortero.
Equipo de vibradores
El equipo de vibradores debe ser consciente de la conveniencia de aplicar el vibrador el menor tiempo posible para conseguir la penetración y que debe trabajar siempre junto con un operario que inspecciones las zonas exteriores que son objeto de vibrado.
Equipo del interior
El equipo del interior rellena la malla entre las zonas vibradas y sigue al equipo de vibradores para conseguir una superficie razonablemente lisa en el interior del casco y dispuesta para el toque final de los enlucidores.
Equipo del exterior
El equipo exterior de lucidores se mantiene detrás del equipo del interior y aplica la capa exterior de mortero cuando el equipo del interior haya conseguido la penetración del refuerzo.
Los enlucidores del exterior son responsables de obtener una capa uniforme de mortero y el acabado deseado. Un supervisor puede comprobar el espesor con un simple testigo de profundidad.
45. Comprobación del equipo antes del moldeo
Equipo de limpieza
Deberá organizarse un equipo de limpieza que retire del suelo el cemento sobrante, las herramientas y equipo durante y después del moldeo, y que empiece a aplicar la arpillera antes de iniciar el proceso de curación.
Por supuesto, debería nombrarse una persona encargada de supervisar el moldeo de forma que cada uno de los operarios realice la tarea asignada en el momento oportuno.
He aquí algunas ideas útiles para la persona encargada de supervisar el moldeo:
1. En el caso de que deba utilizarse hielo, éste debe encontrarse en la obra una hora antes de empezar el moldeo.46. La calidad de la mezcla es esencial2. Asígnese a todos los operarios un turno de 12 horas de promedio (este periodo variará según las condiciones climáticas locales y el tamaño del casco). Será necesario utilizar juntas para el casco y cubiertas en las embarcaciones más grandes, así como moldear los mamparos por separado, y es aconsejable mantener la calidad del moldeo en los cascos de más de 12 m de eslora.
3. Los salarios de todos los operarios, incluido el trabajo a contrata, particularmente si el trabajo debe llevarse a cabo en horas desusadas, deben convenirse antes de iniciar el trabajo.
4. Las pausas en el trabajo deben concederse de forma ordenada, de manera que no hay más de cinco miembros del equipo ausentes del trabajo en cualquier momento.
El moldeo, como se indicó anteriormente, debe llevarse a cabo de forma ordenada, y de poco sirve asignar un número excesivo de operarios para el casco en las primeras etapas del trabajo.
Es normal escalonar el tiempo de comenzar el trabajo de los operarios de forma que el trabajo y los operarios sigan un orden progresivo.
El mortero puede aplicarse desde el exterior del casco pero, en la práctica, es mejor empezar desde dentro, con lo que podrá comprobarse que le cemento ha penetrado debidamente en todas las zonas del refuerzo.
Después de comprobar las primeras mezclas producidas por la hormigonera, el equipo de manipulación puede llevar la mezcla a la zona del espejo de popa de forma que pueda aplicarse el mortero al bloque del timón, el peto y la quilla vertical.
Esos componentes se vibran al mismo tiempo que se llena y vibra la zona situada por debajo del tubo interior de la bocina. Esta zona será posiblemente la más difícil de llenar y fraguar. Debe comprobarse bien que dicha zona no presenta espacios vacíos. Ello es igualmente de aplicación a la zona del talón del codaste y la quilla en general.
Después de vibrar y comprobar cada cuaderna, sección de quilla y sección de durmiente, el equipo de vibradores puede pasar a la sección siguiente y el equipo del interior puede iniciar su trabajo.
47. Procedimiento de moldeo en el interior del casco
Cuando cada uno de esos equipos ha seguido hacia adelante, pueden comenzar a trabajar los enlucidores del exterior pero siempre detrás de la labor que se realiza en el interior.
Una vez las primeras superficies han fraguado debidamente, puede iniciarse la labor de acabado en el interior de forma que haya cuatro equipos de operarios dedicados a operaciones en la secuencia correcta.
El grupo de enlucidores del exterior se dividirá en grupos más pequeños a medida que progrese el trabajo exterior; uno de los grupos se dedicará a la mezcla, otro a alisar con talochas de madera y un tercero se encargará del acabado.
A medida que progrese el trabajo del casco, además de éste y del forro habrá que rellenar y acabar las quillas de balance y las bancadas del motor. Una vez rellenas de cemento estas últimas, se afirmarán empaquetadura de madera y las planchas de acero encima de las tuercas soldadas en los pernos de cimentación para ofrecer una superficie plana uniforme en la parte superior de la bancada. La empaquetadura de madera ofrecerá una guía a los enlucidores en cuanto a la anchura de la bancada.
48. Acabado del espejo de popa y remate del casco
En el momento de llegar a la roda es muy posible que el extremo de popa esté ya terminado. Conviene comprobar que el mortero colocado en las zonas del bloque del timón y el dormido de la quilla no se seca demasiado rápidamente. Estas zonas tal vez necesiten ser humedecidas a intervalos para retardar la velocidad de fraguado hasta iniciar el proceso de curación.
Al llegar a la roda el equipo de operarios suele estar cansado y este es el momento en el que debe prestarse mayor atención para evitar que se produzcan huecos y disminuya la calidad del acabado.
49. La zona de la roda casi terminada
El número de operarios que trabajan en el casco va reduciéndose gradualmente a medida que disminuye la zona que queda por moldear. En la roda habrá que proceder con pericia para mantener la forma deseada desde el caperol hasta la cama de construcción de la quilla.
Ahora puede procederse a quitar el mortero excedente en todas las groeras, orificios para el paso de tubos, bordes de las cuadernas, durmiente y bordes del arrufo.
El proceso de curación reviste la máxima importancia para la resistencia final del mortero. La curación puede realizarse empleando métodos a base de agua o vapor.
La curación a base de agua debe mantenerse entre 14 y 28 días, según las condiciones locales, la temperatura y el tipo de cemento utilizado. Tratándose de cemento Portland ordinario, el periodo será de 28 días y para el Portland de fraguado rápido, 14 días.
Durante el periodo de curación, la temperatura debe mantenerse constante en la mayor medida posible por encima de 10ºC.
La totalidad del interior y exterior del casco debe mantenerse cubierta con una tela de arpillera en estrecho contacto con la superficie de ferrocemento. Se empapa la tela con agua hasta que esté totalmente saturada. Después de empaparla inicialmente, habrá que rociar el casco a intervalos regulares, noche y día, para conservar la humedad.
50. Casco totalmente moldeado y listo para la curación
En el caso de que haya un suministro de agua abundante puede utilizarse un sistema de aspersión continua.
La temperatura del agua debe ser idealmente también superior a 10ºC.
Si se emplea un método a base de vapor, la estructura de ferrocemento deberá cubrirse enteramente con una lámina de plástico o un material similar que forme una especie de tienda de campaña que se llenará con vapor húmedo a baja presión. Manteniendo constante el suministro de vapor durante todo el periodo de curación todas las partes del casco estarán sometidas a las mismas condiciones.
Una vez iniciada la curación, la temperatura del vapor se elevará gradualmente desde un punto inicial de 10ºC medido en la superficie del casco, aumentándola y reduciéndola no más de 10ºC por hora, hasta alcanzar los 70ºC después de seis horas. Esta temperatura de +/- 5ºC, debe mantenerse durante otro periodo mínimo de 96 horas para bajarla después gradualmente a lo largo de seis horas hasta 10ºC.
51. Curación del casco por agua
El casco no debe ser sometido a fuerzas externas hasta por lo menos 24 horas después de terminar el proceso de curación por vapor.
Siempre será útil obtener de los suministradores de equipo datos referentes al medio ambiente para la curación por vapor, además de observar las prescripciones al respecto de las sociedades de clasificación si el buque se construye según normas de las mismas
Terminada la curación, pueden retirarse los materiales empleados.
Los agujeros de montaje practicados en el forro y las aberturas de los tubo interiores se sellan provisionalmente por debajo de la flotación de proyecto. Debe apuntalarse el casco por debajo de las quillas de balance o de la forma más práctica. A continuación se llena el casco de agua hasta la flotación de proyecto marcada en los cantos de las cuadernas y el arriostramiento del eje longitudinal. Se mantendrá el agua en el casco durante todo un día para ver si hay alguna fuga.
No es corriente que se produzcan fugas cuando el casco ha sido bien moldeado, pero de producirse deberán rectificarse (véase la sección 7 - Reparaciones y juntas en el ferrocemento).
Una vez terminada la prueba se achica el agua. Se limpia el interior del casco mientras está todavía húmedo para retirar las impurezas generales, espuma o manchas que hayan podido producirse con la tela de arpillera.
Pueden retirarse ahora los elementos desmontables de cantear las groeras, imbornales, bulárcamas y varengas, las riostras de las cuadernas y los angulares del alefriz y el durmiente después de soltar los tirantes. Éstos se limpian y se almacenan para usarlos en ocasiones posteriores. La parte superior de la bancada del motor y las chumaceras se levantan para ver si hay algunos huecos en la superficie y se engrasan de nuevo los pernos de cimentación. A continuación se limpian las bridas del tubo interior de la bocina para poder instalar ésta.
Se retiran de los cantos las arandelas elásticas de 8 mm de todos los perfiles y los huecos que han dejado, cuando el casco está lo suficientemente seco, se rellenan con una masilla a base de resina. A menos que estos puntos se vayan a utilizar como sujeción en la etapa de armamento, el saliente de la rosca será por lo general insuficiente para estos fines.
52. Casco del que se han desmontado los elementos de cantear y las riostras
Puede corregirse toda irregularidad que presente la superficie del ferrocemento a condición de no exponer la malla. Si se ha hecho bien la estructura de acero y los enlucidores han dejado un buen acabado habrá muy poco que corregir.
La parte inferior de la quilla únicamente puede inspeccionarse cuando se ha retirado la cama de construcción. Para ello habrá que cortar los sujetadores roscados de las varillas colocados en la quilla, rebajándolos con la muela y rellenando el hueco. Los espaciadores dispuestos para mantener una distancia de 10 mm entre el refuerzo de la quilla y la parte superior de la cama, como se explicó anteriormente, se pueden dejar donde están o retirar, en cuyo caso habrá que rellenar el hueco.
Para impedir que el borde de la quilla se desconche al desplazar el casco o deslizar la embarcación conviene biselar los bordes rebajando con la muela unos 10 mm.
Ahora puede ya retirarse el talón del mecanismo del timón e inspeccionar la enquilladura. Se instala nuevamente el talón utilizando el material de asiento adecuado. Se limpian las bridas del tubo interior de la bocina para la instalación final de dicho mecanismo.